Votre courriel a été envoyé.
144 E 44th St 1 025–13 300 pi² d'espace disponible • New York, NY 10017



Certaines informations ont été traduites automatiquement.
Tous les espaces disponibles(4)
Afficher les taux de location en
- Espace
- Taille
- Terme
- Taux de location
- Utilisation de l’espace
- Aménagement
- Disponible
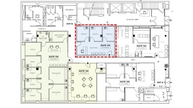
144 East 44th Street offers turnkey, street-level retail and medical space in a boutique, owner-operated Midtown East building, designed for a modern medical, cosmetic, or professional service user. With direct street presence, dual access points, and full-service in-house construction capabilities, tenants can achieve a customized, move-in ready space faster and more cost-effectively than traditional landlord delivery models. Ideal for medical, wellness, or professional users seeking high visibility, operational efficiency, and speed to market in a prime Grand Central location.
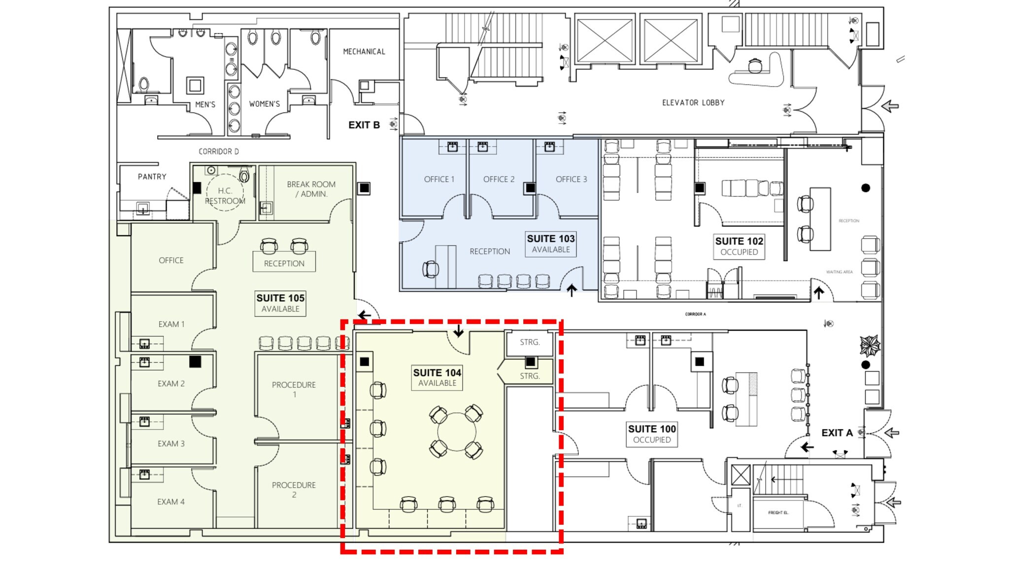
Turn-Key Office / Medical Suite Near Grand Central Position your business in a well-maintained, owner-operated boutique office building just steps from Grand Central Terminal in the heart of Midtown East. This thoughtfully designed, move-in ready suite is ideal for professional services, medical users, or boutique office tenants seeking a functional and efficient layout in a prime location. The space features six (6) private offices, a dedicated conference room, and a welcoming reception area, providing a strong first impression for clients and visitors. A private ADA-compliant restroom within the suite offers convenience and exclusivity, while the pantry/break area supports daily operations for staff. Designed for flexibility and efficiency, the layout supports a wide range of uses including medical practices, therapy groups, law firms, financial services, and general office users. The suite can be delivered fully built-out and customized by ownership’s in-house design + construction team, allowing for a seamless, turn-key occupancy experience.
This recently renovated pre-built office suite features a modern, efficient layout constructed with architectural finishes that maximize natural light and create a clean, private, and professional aesthetic. The space includes new tenant-controlled VRF HVAC and upgraded air filtration systems, ensuring optimal comfort and energy efficiency. Recent building improvements on the 5th floor include a redesigned elevator lobby and upgraded common areas with custom millwork, decorative lighting, and access to a large board room. The suite is turnkey and fully wired for electric and data and can be delivered fully furnished for immediate occupancy. Suite 502 offers true plug-and-play convenience for tenants seeking a contemporary, boutique office environment just steps from Grand Central Station.7-8 private offices Open Workstation area for 12-20 persons, Reception & Waiting Area, Pantry with separate breakroom/lounge, 2 conference rooms, and dedicated IT server closet in premises.
- Le taux inscrit peut ne pas comprendre certains services publics, les services de bâtiment et les dépenses immobilières.
- Disposition du plan d’étage ouverte en général
- 2 salles de conférence
- Espace en excellent état
- Air central et chauffage
- Accès aux ascenseurs
- Espace en coin
- Plafond exposé
- Lumière naturelle
- Cote de rendement énergétique - A
- Entièrement construit comme Bureau de services professionnels
- 6 bureaux privés
- 20 postes de travail
- Clé en main
- Aire de réception
- Salle d’impression/Photocopie
- Hauts plafonds
- Éclairage encastré
- Éclairage accentué
- Plan ouvert
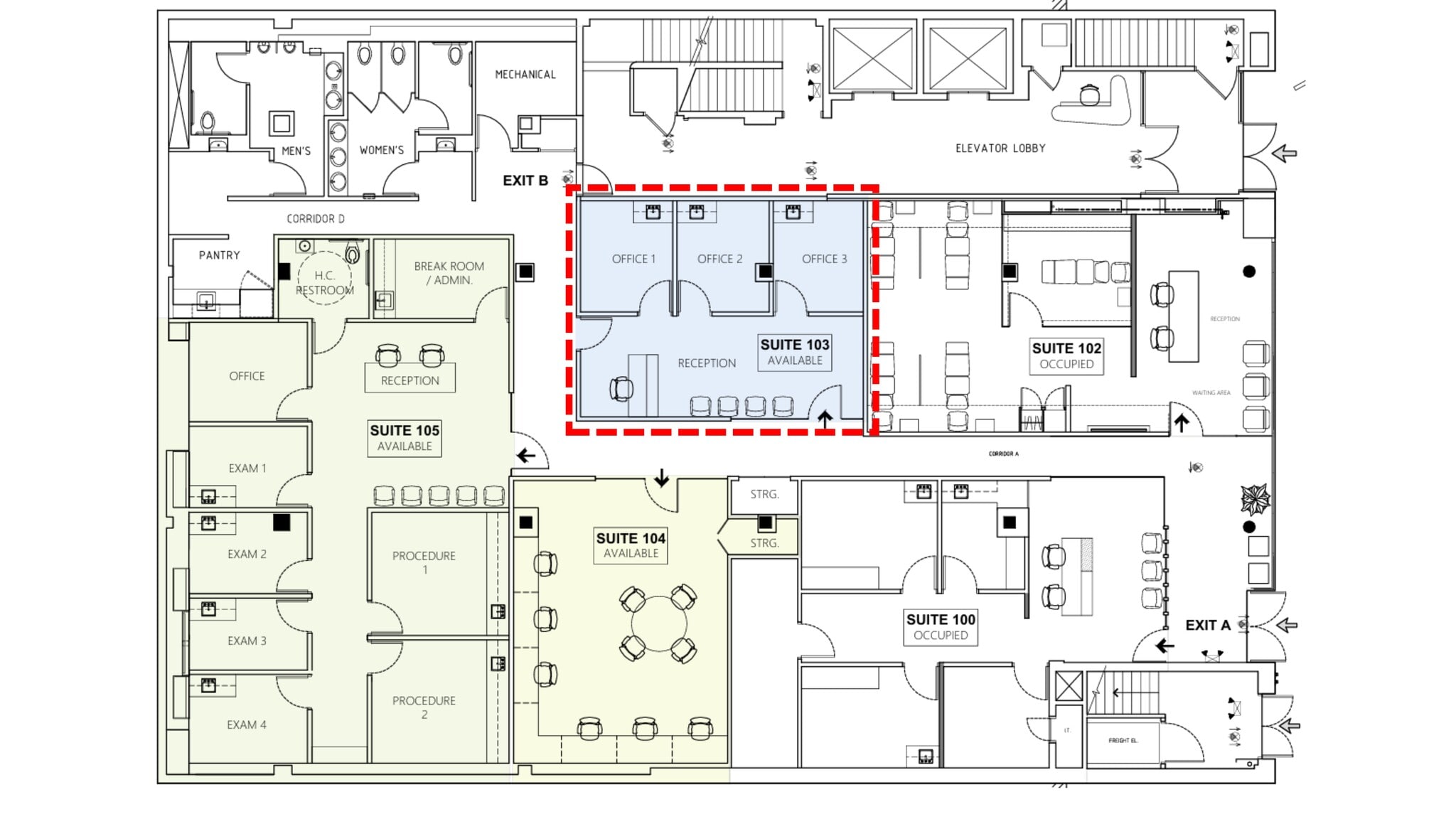
144 East 44th Street presents a rare opportunity to lease fully built, move-in ready office and medical space in a professionally managed building located steps from Grand Central Station. This office suite is delivered with modern finishes, strong glass-line presence, and efficient layouts that maximize usable space. Ownership offers an integrated, full-service platform providing in-house design, construction, and property management—allowing for seamless customization and occupancy. Conveniently located steps from Grand Central Terminal, the building provides exceptional access to transportation, dining, and Midtown East amenities.
- Le taux inscrit peut ne pas comprendre certains services publics, les services de bâtiment et les dépenses immobilières.
- 1 salle de conférence
- 6 bureaux privés
- Espace en excellent état
| Espace | Taille | Terme | Taux de location | Utilisation de l’espace | Aménagement | Disponible |
| 1er étage, ste Retail Suite | 1 025 à 2 400 pi² | Négociable | 75,76 $ CAD/pi²/an 6,31 $ CAD/pi²/mois 181 830 $ CAD/an 15 153 $ CAD/mois | Bureau/Médical | selon spécifications | Maintenant |
| 3e étage, ste Suite # 302 | 2 800 pi² | Négociable | Sur demande Sur demande Sur demande Sur demande | Bureau/Médical | - | 2026-04-19 |
| 5e étage, ste Suite # 502 | 3 875 à 4 450 pi² | Négociable | 66,12 $ CAD/pi²/an 5,51 $ CAD/pi²/mois 294 234 $ CAD/an 24 520 $ CAD/mois | Bureau | construction complète | Maintenant |
| 7e étage, ste Suite # 703 | 3 650 pi² | Négociable | 71,63 $ CAD/pi²/an 5,97 $ CAD/pi²/mois 261 450 $ CAD/an 21 787 $ CAD/mois | Bureau/Médical | construction complète | Maintenant |
1er étage, ste Retail Suite
| Taille |
| 1 025 à 2 400 pi² |
| Terme |
| Négociable |
| Taux de location |
| 75,76 $ CAD/pi²/an 6,31 $ CAD/pi²/mois 181 830 $ CAD/an 15 153 $ CAD/mois |
| Utilisation de l’espace |
| Bureau/Médical |
| Aménagement |
| selon spécifications |
| Disponible |
| Maintenant |
3e étage, ste Suite # 302
| Taille |
| 2 800 pi² |
| Terme |
| Négociable |
| Taux de location |
| Sur demande Sur demande Sur demande Sur demande |
| Utilisation de l’espace |
| Bureau/Médical |
| Aménagement |
| - |
| Disponible |
| 2026-04-19 |
5e étage, ste Suite # 502
| Taille |
| 3 875 à 4 450 pi² |
| Terme |
| Négociable |
| Taux de location |
| 66,12 $ CAD/pi²/an 5,51 $ CAD/pi²/mois 294 234 $ CAD/an 24 520 $ CAD/mois |
| Utilisation de l’espace |
| Bureau |
| Aménagement |
| construction complète |
| Disponible |
| Maintenant |
7e étage, ste Suite # 703
| Taille |
| 3 650 pi² |
| Terme |
| Négociable |
| Taux de location |
| 71,63 $ CAD/pi²/an 5,97 $ CAD/pi²/mois 261 450 $ CAD/an 21 787 $ CAD/mois |
| Utilisation de l’espace |
| Bureau/Médical |
| Aménagement |
| construction complète |
| Disponible |
| Maintenant |
1er étage, ste Retail Suite
| Taille | 1 025 à 2 400 pi² |
| Terme | Négociable |
| Taux de location | 75,76 $ CAD/pi²/an |
| Utilisation de l’espace | Bureau/Médical |
| Aménagement | selon spécifications |
| Disponible | Maintenant |
144 East 44th Street offers turnkey, street-level retail and medical space in a boutique, owner-operated Midtown East building, designed for a modern medical, cosmetic, or professional service user. With direct street presence, dual access points, and full-service in-house construction capabilities, tenants can achieve a customized, move-in ready space faster and more cost-effectively than traditional landlord delivery models. Ideal for medical, wellness, or professional users seeking high visibility, operational efficiency, and speed to market in a prime Grand Central location.
3e étage, ste Suite # 302
| Taille | 2 800 pi² |
| Terme | Négociable |
| Taux de location | Sur demande |
| Utilisation de l’espace | Bureau/Médical |
| Aménagement | - |
| Disponible | 2026-04-19 |
Turn-Key Office / Medical Suite Near Grand Central Position your business in a well-maintained, owner-operated boutique office building just steps from Grand Central Terminal in the heart of Midtown East. This thoughtfully designed, move-in ready suite is ideal for professional services, medical users, or boutique office tenants seeking a functional and efficient layout in a prime location. The space features six (6) private offices, a dedicated conference room, and a welcoming reception area, providing a strong first impression for clients and visitors. A private ADA-compliant restroom within the suite offers convenience and exclusivity, while the pantry/break area supports daily operations for staff. Designed for flexibility and efficiency, the layout supports a wide range of uses including medical practices, therapy groups, law firms, financial services, and general office users. The suite can be delivered fully built-out and customized by ownership’s in-house design + construction team, allowing for a seamless, turn-key occupancy experience.
5e étage, ste Suite # 502
| Taille | 3 875 à 4 450 pi² |
| Terme | Négociable |
| Taux de location | 66,12 $ CAD/pi²/an |
| Utilisation de l’espace | Bureau |
| Aménagement | construction complète |
| Disponible | Maintenant |
This recently renovated pre-built office suite features a modern, efficient layout constructed with architectural finishes that maximize natural light and create a clean, private, and professional aesthetic. The space includes new tenant-controlled VRF HVAC and upgraded air filtration systems, ensuring optimal comfort and energy efficiency. Recent building improvements on the 5th floor include a redesigned elevator lobby and upgraded common areas with custom millwork, decorative lighting, and access to a large board room. The suite is turnkey and fully wired for electric and data and can be delivered fully furnished for immediate occupancy. Suite 502 offers true plug-and-play convenience for tenants seeking a contemporary, boutique office environment just steps from Grand Central Station.7-8 private offices Open Workstation area for 12-20 persons, Reception & Waiting Area, Pantry with separate breakroom/lounge, 2 conference rooms, and dedicated IT server closet in premises.
- Le taux inscrit peut ne pas comprendre certains services publics, les services de bâtiment et les dépenses immobilières.
- Entièrement construit comme Bureau de services professionnels
- Disposition du plan d’étage ouverte en général
- 6 bureaux privés
- 2 salles de conférence
- 20 postes de travail
- Espace en excellent état
- Clé en main
- Air central et chauffage
- Aire de réception
- Accès aux ascenseurs
- Salle d’impression/Photocopie
- Espace en coin
- Hauts plafonds
- Plafond exposé
- Éclairage encastré
- Lumière naturelle
- Éclairage accentué
- Cote de rendement énergétique - A
- Plan ouvert
7e étage, ste Suite # 703
| Taille | 3 650 pi² |
| Terme | Négociable |
| Taux de location | 71,63 $ CAD/pi²/an |
| Utilisation de l’espace | Bureau/Médical |
| Aménagement | construction complète |
| Disponible | Maintenant |
144 East 44th Street presents a rare opportunity to lease fully built, move-in ready office and medical space in a professionally managed building located steps from Grand Central Station. This office suite is delivered with modern finishes, strong glass-line presence, and efficient layouts that maximize usable space. Ownership offers an integrated, full-service platform providing in-house design, construction, and property management—allowing for seamless customization and occupancy. Conveniently located steps from Grand Central Terminal, the building provides exceptional access to transportation, dining, and Midtown East amenities.
- Le taux inscrit peut ne pas comprendre certains services publics, les services de bâtiment et les dépenses immobilières.
- 6 bureaux privés
- 1 salle de conférence
- Espace en excellent état
Aperçu de la propriété
Le 144 E 44th Street est un immeuble de bureaux moderne situé à seulement un demi-pâté de maisons à l'est de la gare Grand Central, entre Lexington et 3rd Avenue. La propriété est occupée par un groupe restreint d'entreprises réputées et novatrices qui créent une atmosphère professionnelle au sein de l'établissement. Cet immeuble boutique est exceptionnellement entretenu et géré, offrant une excellente alternative pour ceux qui veulent éviter la foule et la congestion des tours de grande hauteur. En tant qu'installation exploitée par le propriétaire, le locateur fournit aux locataires une équipe sur place composée de personnel expérimenté et fiable de maintenance, de gestion et de location. Notre équipe de services immobiliers entièrement intégrée fournit aux locataires une source unique de communication et de fiabilité tout au long du cycle de location. Notre équipe peut aider les locataires potentiels à gérer tous les aspects du processus de location en fournissant des services de planification, de conception, de construction et d'exploitation.
- Accès 24 heures
- Ligne d'autobus
- Métro
Faits sur la propriété
Présenté par
144 E 44th St
Hmm, il semble y avoir eu une erreur lors de l’envoi de votre message. Veuillez réessayer.
Merci! Votre message a été envoyé.












