Votre courriel a été envoyé.
Certaines informations ont été traduites automatiquement.
Faits saillants
- À distance de marche de la promenade Third Street, de la jetée Santa Monica et du Metro Rail.
- Stationnement mensuel directement de l'autre côté de la rue dans les parcs de stationnement publics de la ville de Santa Monica.
- Bâtiment autonome et sécurisé qui offre une sécurité optimale et un accès facile.
- Accès immédiat à une gamme d'équipements de classe mondiale.
- Excellent potentiel de signalisation extérieure.
- L'espace en question est situé au-dessus du restaurant North Italia.
Tous les espaces disponibles(2)
Afficher les taux de location en
- Espace
- Taille
- Terme
- Taux de location
- Utilisation de l’espace
- État
- Disponible
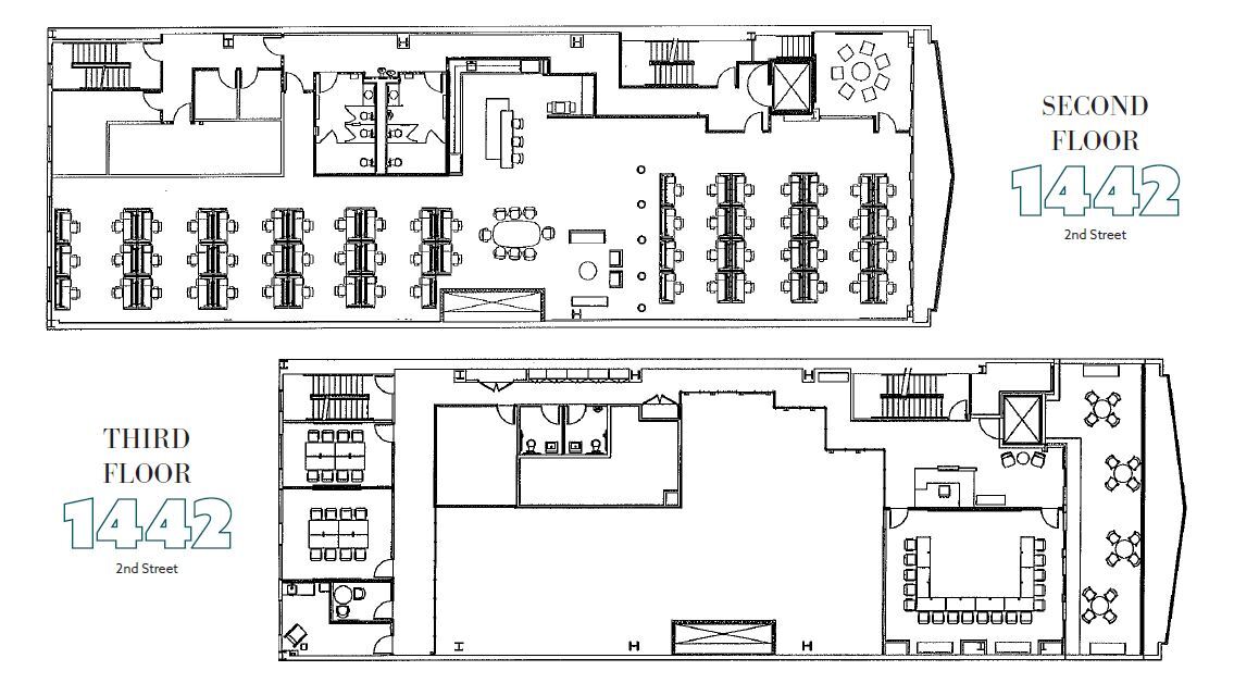
Downtown Santa Monica creative office space available! ±9,700 square feet (non-divisible) over two floors. Negotiable rent on a triple net basis. The subject space includes conference rooms, a gourmet kitchen, private offices, open areas, storage, IT room, and more. One [1] private elevator with the ability to customize access.
- Le taux de location ne comprend pas les services publics, les services de bâtiment ou les dépenses immobilières.
- Disposition du plan d’étage ouverte en général
- 4 bureaux privés
- Peut être associé à un ou plusieurs espaces supplémentaires pour obtenir jusqu’à 9 700 pi² d’espace adjacent.
- Salle de bains privée
- Fenêtres utilisables avec vue partielle sur l'océan
- Toilettes privées à chaque étage
- Entièrement construit comme Bureau standard
- Convient pour 15 à 46 personnes
- 1 salle de conférence
- Cuisine
- Balbalcon extérieur donnant sur la 2nd St.
- Hauts plafonds avec éclairage à la fine pointe de la technologie
- Planification par le propriétaire de la réfection des aires communes
Downtown Santa Monica creative office space available! ±9,700 square feet (non-divisible) over two floors. Negotiable rent on a triple net basis. The subject space includes conference rooms, a gourmet kitchen, private offices, open areas, storage, IT room, and more. One [1] private elevator with the ability to customize access.
- Le taux de location ne comprend pas les services publics, les services de bâtiment ou les dépenses immobilières.
- Disposition du plan d’étage ouverte en général
- 4 bureaux privés
- Peut être associé à un ou plusieurs espaces supplémentaires pour obtenir jusqu’à 9 700 pi² d’espace adjacent.
- Salle de bains privée
- Operable windows with partial ocean views
- Private restrooms on each floor
- Entièrement construit comme Bureau standard
- Convient pour 10 à 32 personnes
- 3 salles de conférence
- Cuisine
- Exterior balcony overlooking 2nd St.
- High ceilings with state-of-the art lighting
- Landlord planning on common area refurbishment
| Espace | Taille | Terme | Taux de location | Utilisation de l’espace | État | Disponible |
| 2e étage | 5 733 pi² | 1-10 ans | 49,45 $ CAD/pi²/an 4,12 $ CAD/pi²/mois 283 519 $ CAD/an 23 627 $ CAD/mois | Bureau | construction complète | Maintenant |
| 3e étage | 3 967 pi² | 1-10 ans | 49,45 $ CAD/pi²/an 4,12 $ CAD/pi²/mois 196 184 $ CAD/an 16 349 $ CAD/mois | Bureau | construction complète | Maintenant |
2e étage
| Taille |
| 5 733 pi² |
| Terme |
| 1-10 ans |
| Taux de location |
| 49,45 $ CAD/pi²/an 4,12 $ CAD/pi²/mois 283 519 $ CAD/an 23 627 $ CAD/mois |
| Utilisation de l’espace |
| Bureau |
| État |
| construction complète |
| Disponible |
| Maintenant |
3e étage
| Taille |
| 3 967 pi² |
| Terme |
| 1-10 ans |
| Taux de location |
| 49,45 $ CAD/pi²/an 4,12 $ CAD/pi²/mois 196 184 $ CAD/an 16 349 $ CAD/mois |
| Utilisation de l’espace |
| Bureau |
| État |
| construction complète |
| Disponible |
| Maintenant |
2e étage
| Taille | 5 733 pi² |
| Terme | 1-10 ans |
| Taux de location | 49,45 $ CAD/pi²/an |
| Utilisation de l’espace | Bureau |
| État | construction complète |
| Disponible | Maintenant |
Downtown Santa Monica creative office space available! ±9,700 square feet (non-divisible) over two floors. Negotiable rent on a triple net basis. The subject space includes conference rooms, a gourmet kitchen, private offices, open areas, storage, IT room, and more. One [1] private elevator with the ability to customize access.
- Le taux de location ne comprend pas les services publics, les services de bâtiment ou les dépenses immobilières.
- Entièrement construit comme Bureau standard
- Disposition du plan d’étage ouverte en général
- Convient pour 15 à 46 personnes
- 4 bureaux privés
- 1 salle de conférence
- Peut être associé à un ou plusieurs espaces supplémentaires pour obtenir jusqu’à 9 700 pi² d’espace adjacent.
- Cuisine
- Salle de bains privée
- Balbalcon extérieur donnant sur la 2nd St.
- Fenêtres utilisables avec vue partielle sur l'océan
- Hauts plafonds avec éclairage à la fine pointe de la technologie
- Toilettes privées à chaque étage
- Planification par le propriétaire de la réfection des aires communes
3e étage
| Taille | 3 967 pi² |
| Terme | 1-10 ans |
| Taux de location | 49,45 $ CAD/pi²/an |
| Utilisation de l’espace | Bureau |
| État | construction complète |
| Disponible | Maintenant |
Downtown Santa Monica creative office space available! ±9,700 square feet (non-divisible) over two floors. Negotiable rent on a triple net basis. The subject space includes conference rooms, a gourmet kitchen, private offices, open areas, storage, IT room, and more. One [1] private elevator with the ability to customize access.
- Le taux de location ne comprend pas les services publics, les services de bâtiment ou les dépenses immobilières.
- Entièrement construit comme Bureau standard
- Disposition du plan d’étage ouverte en général
- Convient pour 10 à 32 personnes
- 4 bureaux privés
- 3 salles de conférence
- Peut être associé à un ou plusieurs espaces supplémentaires pour obtenir jusqu’à 9 700 pi² d’espace adjacent.
- Cuisine
- Salle de bains privée
- Exterior balcony overlooking 2nd St.
- Operable windows with partial ocean views
- High ceilings with state-of-the art lighting
- Private restrooms on each floor
- Landlord planning on common area refurbishment
Aperçu de la propriété
Magnifique bâtiment créatif avec de hauts plafonds, lumière naturelle partout, balcons, fenêtres exploitables, disposition flexible permettant de nombreuses utilisations, salles de bains à chaque étage, cuisine, salles de conf et bien plus encore NON DIVISIBLE
- Restaurant
- Balcon
Faits sur la propriété
Sélectionner des locataires
- Étage
- Nom du locataire
- Secteur
- 1ᵉʳ
- North Italia
- Hébergement et services alimentaires
- Multiple
- Salesforce
- Information
Présenté par
1442 2nd St
Hmm, il semble y avoir eu une erreur lors de l’envoi de votre message. Veuillez réessayer.
Merci! Votre message a été envoyé.







