Se Connecter/S’inscrire
Votre courriel a été envoyé.
1455 Willow Creek Rd Immeuble de 17 500 pi² • Spécialité • À vendre 3 763 100 $ CAD • Prescott, AZ 86301



Certaines informations ont été traduites automatiquement.
Faits saillants de l'investissement
- 25,000 Traffic Count
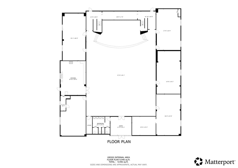
- 18,252 SF
- 6 Bathrooms
Résumé de l'annonce
Premier 3.9-Acre Campus in the Heart of Prescott - Versatile Use & Prime Access Discover 1455 Willow Creek Rd, a unique institutional campus offering nearly 4 acres of level, usable land. This property represents a rare ''in-fill'' opportunity in a high-demand area. Located directly on Willow Creek Road, the site benefits from exceptional accessibility and is surrounded by a thriving mix of residential neighborhoods, professional medical offices, and major shopping hubs. Whether you are looking to continue its legacy as a vibrant school/church or exploring the potential of its SF-9 zoning, the infrastructure is already in place. With 50 existing parking spots and room for significant expansion, the site can accommodate large gatherings or growing student bodies. The proximity to Willow Lake, Embry-Riddle Aeronautical University, and local parks makes this a lifestyle-centric location for any organization. Current owners are open to a lease-back arrangement, offering a seamless transition for the next steward of this landmark property.
Faits sur la propriété
Commodités
- Affichage
- Climatisation
- Détecteur de fumée
1 1
Impôts fonciers
| Numéro de lot | 116-17-270C | Évaluation des bâtiments | 4 161 879 $ CAD |
| Évaluation du terrain | 305 396 $ CAD | Évaluation totale | 4 467 275 $ CAD |
Impôts fonciers
Numéro de lot
116-17-270C
Évaluation du terrain
305 396 $ CAD
Évaluation des bâtiments
4 161 879 $ CAD
Évaluation totale
4 467 275 $ CAD
1 de 97
Vidéos
Visite extérieure 3D Matterport
Visite 3D Matterport
Photos
Vue depuis la rue
Rue
Carte
1 de 1
Présenté par
1455 Willow Creek Rd
Vous êtes déjà membre? Connectez-vous
Hmm, il semble y avoir eu une erreur lors de l’envoi de votre message. Veuillez réessayer.
Merci! Votre message a été envoyé.
Votre message a été envoyé !
Activez votre compte LoopNet dès maintenant pour suivre les propriétés, recevoir des alertes en temps réel, gagner du temps sur vos demandes futures et bien plus encore.
