Se Connecter/S’inscrire
Votre courriel a été envoyé.
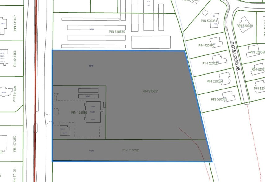
14582 Highway 23-431 Hwy 10 000 pi² 100% Loué Commerce de détail Immeuble Hazel Green, AL 35750 7 216 776 $ CAD (721,68 $ CAD/pi²)



Certaines informations ont été traduites automatiquement.
Résumé de l'annonce
Trois parcelles totalisant 11,6 acres +/- avec 2 immeubles et deux mini-immeubles d'entreposage en face de Walmart. Le bâtiment principal mesure 10 085 pi2, le bâtiment de deux étages mesure 4 630 pi2 et les 2 mini-immeubles d'entreposage totalisent 2 200 pi2 avec 24 unités. Tous les baux de locataires sont mensuels. 620 pi +/- de façade. Le nombre de trafic est d'environ 28 311 VPD. Égout disponible. Pas de zonage. Il y a aussi un panneau d'affichage sur la propriété. PIN #s 518651, 518652 et 139896.
Faits sur la propriété
Type de vente
Investissement ou propriétaire utilisateur
Type de propriété
Commerce de détail
Taille du bâtiment
10 000 pi²
Classe d’immeuble
C
Année de construction
1998
Prix
7 216 776 $ CAD
Prix par pi²
721,68 $ CAD
Pourcentage loué
100%
Hauteur du bâtiment
1 étage
Coefficient d’occupation des sols de l’immeuble
0,11
Taille du lot
2,10 AC
Zonage
None
Principaux détaillants à proximité
Impôts fonciers
| Numéro de lot | 03-04-19-0-000-001.001 | Évaluation des bâtiments | 283 244 $ CAD |
| Évaluation du terrain | 29 843 $ CAD | Évaluation totale | 313 086 $ CAD |
Impôts fonciers
Numéro de lot
03-04-19-0-000-001.001
Évaluation du terrain
29 843 $ CAD
Évaluation des bâtiments
283 244 $ CAD
Évaluation totale
313 086 $ CAD
1 de 4
Vidéos
Visite extérieure 3D Matterport
Visite 3D Matterport
Photos
Vue depuis la rue
Rue
Carte
Présenté par
14582 Highway 23-431 Hwy
Vous êtes déjà membre? Connectez-vous
Hmm, il semble y avoir eu une erreur lors de l’envoi de votre message. Veuillez réessayer.
Merci! Votre message a été envoyé.
Votre message a été envoyé !
Activez votre compte LoopNet dès maintenant pour suivre les propriétés, recevoir des alertes en temps réel, gagner du temps sur vos demandes futures et bien plus encore.
