Se Connecter/S’inscrire
Votre courriel a été envoyé.
13,600 SF Prime Wade Hampton Retail Space 14629 E Wade Hampton Blvd 13 800 pi² Commerce de détail Immeuble Greer, SC 29651 2 182 784 $ CAD (158,17 $ CAD/pi²)



Certaines informations ont été traduites automatiquement.
Faits saillants de l'investissement
- Prime Wade Hampton Blvd frontage with 23,600–34,700 VPD for outstanding visibility
- Tenant in place on 5-year term occupying the 2nd floor
- Corner lot, monument signage, strong exposure, and ample parking
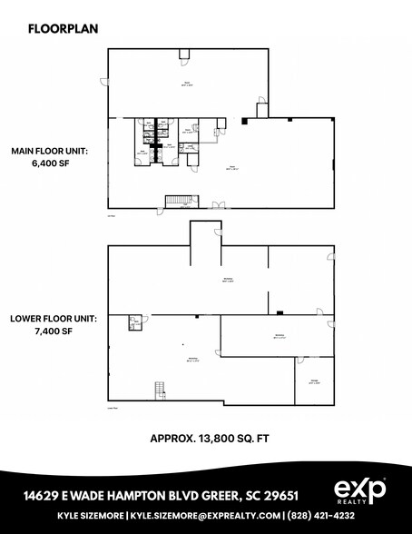
- 13,600 SF freestanding building with two fully separated suites for multi-tenant or owner-user flexibility
- Downstairs 7,400+ SF with two large bay doors, hydraulic car lift, office, restroom, and extensive storage or warehouse space
- C-3 zoning supporting a wide range of commercial uses including fitness, automotive, retail, trades, warehouse, studio, and flex
Résumé de l'annonce
High traffic Wade Hampton location with true multi-occupancy flexibility
This 13,800 SF freestanding commercial building offers outstanding visibility on Wade Hampton Blvd and features a fully separated two-suite layout suited for a wide range of commercial users.
Tenant in place for entire 2nd floor on a 5-year lease with first right of refusal. Cigar distribution outfit with a small retail space up front (no smoking on the premises).
The downstairs provides 7,400+ SF with two large bay doors that can be reopened for drive-in access. This level includes a hydraulic car lift, an office, a restroom, and extensive storage or warehouse capacity, making it well-suited for automotive, trades, flex, or distribution users.
The configuration supports a wide range of potential tenants including fitness and training centers, physical therapy and wellness, automotive service and detailing, contractors and trades, home goods or equipment showrooms, specialty retail, indoor recreation studios, content or production studios, and e-commerce or light distribution users.
With a newer roof, updated mechanicals, 105 feet of frontage, monument signage, a corner lot, ample parking, and 34,700-43,000 VPD along Wade Hampton Blvd, this property delivers strong exposure and long-term adaptability. The layout allows owner-occupancy with additional rental income or a multi-tenant investment approach with minimal near-term capital needs.
Schedule a tour to explore how this adaptable commercial building can support your vision and long-term strategy.
This 13,800 SF freestanding commercial building offers outstanding visibility on Wade Hampton Blvd and features a fully separated two-suite layout suited for a wide range of commercial users.
Tenant in place for entire 2nd floor on a 5-year lease with first right of refusal. Cigar distribution outfit with a small retail space up front (no smoking on the premises).
The downstairs provides 7,400+ SF with two large bay doors that can be reopened for drive-in access. This level includes a hydraulic car lift, an office, a restroom, and extensive storage or warehouse capacity, making it well-suited for automotive, trades, flex, or distribution users.
The configuration supports a wide range of potential tenants including fitness and training centers, physical therapy and wellness, automotive service and detailing, contractors and trades, home goods or equipment showrooms, specialty retail, indoor recreation studios, content or production studios, and e-commerce or light distribution users.
With a newer roof, updated mechanicals, 105 feet of frontage, monument signage, a corner lot, ample parking, and 34,700-43,000 VPD along Wade Hampton Blvd, this property delivers strong exposure and long-term adaptability. The layout allows owner-occupancy with additional rental income or a multi-tenant investment approach with minimal near-term capital needs.
Schedule a tour to explore how this adaptable commercial building can support your vision and long-term strategy.
Faits sur la propriété
Type de vente
Investissement ou propriétaire utilisateur
Type de propriété
Commerce de détail
Sous-type de propriété
Taille du bâtiment
13 800 pi²
Classe d’immeuble
C
Année de construction
1977
Prix
2 182 784 $ CAD
Prix par pi²
158,17 $ CAD
Location
Unique
Hauteur du bâtiment
2 étages
Coefficient d’occupation des sols de l’immeuble
0,50
Taille du lot
0,63 AC
Zonage
C-3 - Greer-C3 : Autoroute commerciale
Stationnement
10 places (0,72 places par 1 000 pi² loué)
Commodités
- Lot de coin
- Visibilité de l'autoroute
- Système de sécurité
- Affichage
- CVCA contrôlé par le locataire
- Accessible aux fauteuils roulants
- Affichage sur monument
- Climatisation
- Internet par fibre optique
- Détecteur de fumée
Assez praticable à pied
40/100
Moyennement facile d’accès en voiture
70/100
Assez praticable en vélo
20/100
Principaux détaillants à proximité
Impôts fonciers
| Numéro de lot | 9-03-09-047.00 | Évaluation des bâtiments | 25 134 $ CAD |
| Évaluation du terrain | 9 893 $ CAD | Évaluation totale | 35 027 $ CAD |
Impôts fonciers
Numéro de lot
9-03-09-047.00
Évaluation du terrain
9 893 $ CAD
Évaluation des bâtiments
25 134 $ CAD
Évaluation totale
35 027 $ CAD
1 de 42
Vidéos
Visite extérieure 3D Matterport
Visite 3D Matterport
Photos
Vue depuis la rue
Rue
Carte
Présenté par
13,600 SF Prime Wade Hampton Retail Space | 14629 E Wade Hampton Blvd
Vous êtes déjà membre? Connectez-vous
Hmm, il semble y avoir eu une erreur lors de l’envoi de votre message. Veuillez réessayer.
Merci! Votre message a été envoyé.
