Votre courriel a été envoyé.
1465 Tharp Rd, Suite C 1465 Tharp Rd 2 656 pi² d'espace disponible • Commerce de détail • Yuba City, CA 95993



Certaines informations ont été traduites automatiquement.
Disponibilité de l’espace (1)
Afficher les taux de location en
- Espace
- Taille
- Plafond
- Terme
- Taux de location
- Type de loyer
| Espace | Taille | Plafond | Terme | Taux de location | Type de loyer | |
| 1er étage, ste C | 2 656 pi² | 10’ - 18’ | Négociable | 26,10 $ CAD/pi²/an 2,18 $ CAD/pi²/mois 69 328 $ CAD/an 5 777 $ CAD/mois | Loyer hypernet |
1er étage, ste C
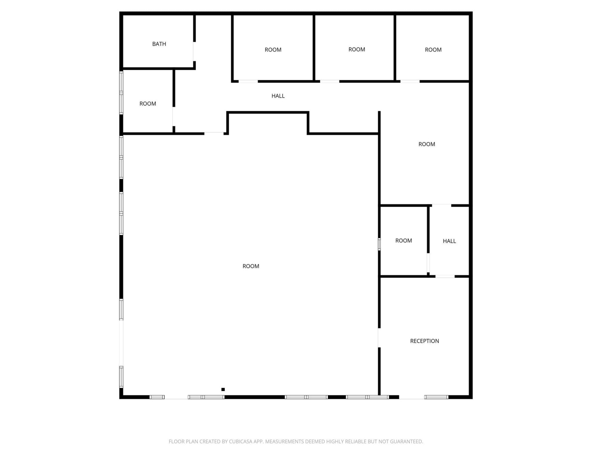
Prime Office/Retail Space for Lease. Previously occupied by PureJoy Yoga, Suite C offers 2,656 SF of highly functional space, with a flexible layout suitable for a wide range of professional, medical, service, or retail uses. This corner suite features excellent visibility with expansive storefront glass and outstanding curb appeal. The well-designed floor plan includes five private rooms, welcoming reception area, a large open room (approximately 36’ x 36’), wash area and private restroom. The space also offers exceptional storage options, including large mezzanine areas, maximizing functionality. Additional features include 18’ ceilings, laminate flooring, Brita Hydration Station, alarm system, fire suppression system and security roll-up doors. The suite is fully built out, clean, and well maintained, offering a true move-in ready opportunity. Located in one of Yuba City’s most desirable commercial corridors, the property is anchored by New Earth Market and benefits from strong traffic counts, high visibility, and a signalized intersection for convenient access. An excellent opportunity for businesses seeking a professional setting with outstanding exposure.
- Le taux de location ne comprend pas les services publics, les services de bâtiment ou les dépenses immobilières.
- Espace en excellent état
- Air central et chauffage
- Salle de bains privée
- Système de sécurité
- Espace en coin
- Hauts plafonds
- Plafond suspendu
- Plafond exposé
- Entreposage sécurisé
- CVCA disponible après les heures de travail
- Plafonds finis: 10’ - 18’
- Conforme DDA
- Détecteur de fumée
- Accessible aux fauteuils roulants
- 2,656 SF turn-key office/retail suite.
- Previously occupied by PureJoy Yoga.
- Built out and fully functional.
Types de loyers
Le type et le montant du loyer que le locataire (preneur) est tenu de payer au propriétaire (bailleur) sur la durée du bail sont négociés avant la signature du bail par les deux parties. Le type de loyer varie selon les services fournis. Par exemple, le prix d’un loyer hypernet est habituellement inférieur à celui d’un bail à service complet puisque le locataire est tenu d’assumer des dépenses additionnelles par rapport au loyer de base. Contactez le courtier inscripteur pour tout connaître sur les frais connexes et additionnels associés à chaque type de loyer.
1. Service complet: Un taux de location qui comprend des services standards liés à l’immeuble fournis par le propriétaire dans le cadre d’une location annuelle de base.
2. Loyer supernet: Le locataire paie seulement deux des frais de l’immeuble. Le propriétaire et le locataire déterminent ces frais spécifiques avant la signature du bail.
3. Loyer hypernet: Un bail en vertu duquel le locataire est responsable de tous les frais liés à sa part proportionnelle d’occupation de l’immeuble.
4. Brut modifié: Le loyer brut modifié désigne un type général de taux de location dans lequel le locataire est habituellement responsable de sa part proportionnelle d’un ou de plusieurs frais. C’est le propriétaire qui paie les frais restants. Considérez les structures tarifaires courantes suivantes applicables aux loyers bruts modifiés: 4. Plus les services: Un type de bail brut modifié suivant lequel le locataire est responsable de sa part proportionnelle des coûts des services publics, en plus du loyer. 4. Plus le nettoyage: Un type de bail brut modifié suivant lequel le locataire est responsable de sa part proportionnelle des coûts de nettoyage, en plus du loyer. 4. Plus l'électricité: Un type de bail brut modifié suivant lequel le locataire est responsable de sa part proportionnelle des coûts d’électricité, en plus du loyer. 4. Plus l’électricité et le nettoyage: Un type de bail brut modifié dans lequel le locataire est responsable de sa part proportionnelle des coûts d’électricité et de nettoyage, en plus du loyer. 4. Plus les services publics et le nettoyage: Un type de bail brut modifié dans lequel le locataire est responsable de sa part proportionnelle des coûts des services publics et de nettoyage, en plus du loyer. 4. Bail industriel brut: Un type de bail brut modifié dans lequel le locataire paie un ou plusieurs des frais, en plus du loyer. Le propriétaire et le locataire déterminent ces frais spécifiques avant la signature du bail.
5. L’électricité est à la charge du locataire: Le propriétaire paie pour tous les services et le locataire est responsable de sa propre utilisation de l’éclairage et des prises électriques dans l’espace qu’il occupe.
6. Négociable ou sur demande: Cette option est utilisée lorsque le contact de location ne précise pas le type de loyer ou de service.
7. À déterminer: À déterminer ; utilisé pour les immeubles dont le type de services ou de loyer n’est pas connu, souvent quand l’immeuble n’est pas encore construit.
Plan de site
Sélectionner des locataires à 1465 Tharp Rd, Suite C
- Locataire
- Description
- Emplacements US
- Portée
- New Earth Market
- Hébergement et services alimentaires
- 1
- -
| Locataire | Description | Emplacements US | Portée |
| New Earth Market | Hébergement et services alimentaires | 1 | - |
Faits sur la propriété
| Superficie totale disponible | 2 656 pi² | Superficie commerciale brute | 25 090 pi² |
| Type de propriété | Commerce de détail | Année de construction | 2011 |
| Superficie totale disponible | 2 656 pi² |
| Type de propriété | Commerce de détail |
| Superficie commerciale brute | 25 090 pi² |
| Année de construction | 2011 |
À propos de la propriété
Located in one of Yuba City’s most desirable commercial corridors, the property is anchored by New Earth Market and benefits from strong traffic counts, high visibility, and a signalized intersection for convenient access. An excellent opportunity for businesses seeking a professional setting with outstanding exposure.
- Lot de coin
- Intersection avec signalisation
- Affichage sur monument
- Climatisation
Principaux détaillants à proximité
Présenté par
1465 Tharp Rd, Suite C | 1465 Tharp Rd
Hmm, il semble y avoir eu une erreur lors de l’envoi de votre message. Veuillez réessayer.
Merci! Votre message a été envoyé.



