Votre courriel a été envoyé.
14651 Ronald W Reagan Blvd - Shops At Ronald Raegan Unités de condo • 1 200-1 500 pi² • Cedar Park, TX 78641


Certaines informations ont été traduites automatiquement.
FAITS SAILLANTS DE L'INVESTISSEMENT
- Retail shopping center that is close to perfect games.
RÉSUMÉ DE L'ANNONCE
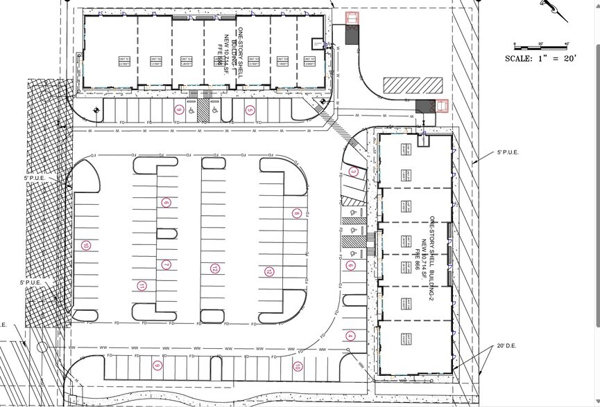
**SHOPS AT RONALD REAGAN / ESPACE COMMERCIAL À VENDRE OU À LOUER** **20 000 PI² D'ESPACE COMMERCIAL DISPONIBLE À LA VENTE OU À LA LOCATION** Les Shops at Ronald Reagan constituent un centre commercial de 20 000 pi² avec un accès direct à Ronald Reagan. Espaces de première génération avec un stationnement généreux de 112 places et des unités flexibles pouvant être combinées pour répondre à vos besoins. Zonage commercial général (Cedar Park) permettant une grande variété d'activités commerciales. Projet de développement flambant neuf situé le long de la route US 183, une artère très fréquentée à l'extérieur d'Austin, avec un trafic quotidien de plus de 23 000 véhicules. Plusieurs suites sont disponibles, avec des superficies allant de 1 094 pi² à 9 700 pi², pouvant accueillir une large gamme de locataires. Cedar Park connaît une croissance rapide, avec des revenus élevés par ménage et des dépenses moyennes totales dépassant 8,3 milliards de dollars dans un rayon de 10 miles.
FAITS SUR LA PROPRIÉTÉ
| Taille totale du bâtiment | 9 670 pi² | Superficie de plancher typique | 9 670 pi² |
| Type de propriété | Commerce de détail | Année de construction | 2026 |
| Sous-type de propriété | Bien à usage mixte | Taille du lot | 2,34 AC |
| Classe d’immeuble | B | Ratio de stationnement | 5,7/1 000 pi² |
| Planchers | 1 | ||
| Zonage | General Business - Affaires générales | ||
| Taille totale du bâtiment | 9 670 pi² |
| Type de propriété | Commerce de détail |
| Sous-type de propriété | Bien à usage mixte |
| Classe d’immeuble | B |
| Planchers | 1 |
| Superficie de plancher typique | 9 670 pi² |
| Année de construction | 2026 |
| Taille du lot | 2,34 AC |
| Ratio de stationnement | 5,7/1 000 pi² |
| Zonage | General Business - Affaires générales |
6 UNITÉS DISPONIBLES
Unité 103
| Taille de l’unité | 1 200 pi² | Type de vente | Investissement ou propriétaire utilisateur |
| Utilisation du condo | Commerce de détail | Nbre d’espaces de stationnement | 112 |
| Taille de l’unité | 1 200 pi² |
| Utilisation du condo | Commerce de détail |
| Type de vente | Investissement ou propriétaire utilisateur |
| Nbre d’espaces de stationnement | 112 |
Unité 104
| Taille de l’unité | 1 200 pi² | Type de vente | Investissement ou propriétaire utilisateur |
| Utilisation du condo | Commerce de détail |
| Taille de l’unité | 1 200 pi² |
| Utilisation du condo | Commerce de détail |
| Type de vente | Investissement ou propriétaire utilisateur |
Unité 105
| Taille de l’unité | 1 300 pi² | Type de vente | Investissement ou propriétaire utilisateur |
| Utilisation du condo | Bureau/Commerce de détail |
| Taille de l’unité | 1 300 pi² |
| Utilisation du condo | Bureau/Commerce de détail |
| Type de vente | Investissement ou propriétaire utilisateur |
Unité 106
| Taille de l’unité | 1 500 pi² | Type de vente | Investissement ou propriétaire utilisateur |
| Utilisation du condo | Bureau/Commerce de détail |
| Taille de l’unité | 1 500 pi² |
| Utilisation du condo | Bureau/Commerce de détail |
| Type de vente | Investissement ou propriétaire utilisateur |
Unité 107
| Taille de l’unité | 1 432 pi² | Type de vente | Investissement ou propriétaire utilisateur |
| Utilisation du condo | Commerce de détail |
| Taille de l’unité | 1 432 pi² |
| Utilisation du condo | Commerce de détail |
| Type de vente | Investissement ou propriétaire utilisateur |
Unité 108
| Taille de l’unité | 1 332 pi² | Type de vente | Investissement ou propriétaire utilisateur |
| Utilisation du condo | Bureau/Commerce de détail |
| Taille de l’unité | 1 332 pi² |
| Utilisation du condo | Bureau/Commerce de détail |
| Type de vente | Investissement ou propriétaire utilisateur |
RENSEIGNEMENTS IMPORTANTS SUR LE LOCATAIRE
| LOCATAIRE | pi² OCCUPÉ | DATE DE FIN DE BAIL |
|---|---|---|
| Indian Restaurant |
2 500 pi²
|
-
|
Présenté par
14651 Ronald W Reagan Blvd - Shops At Ronald Raegan
Hmm, il semble y avoir eu une erreur lors de l’envoi de votre message. Veuillez réessayer.
Merci! Votre message a été envoyé.
