Votre courriel a été envoyé.
14688 State Highway 121 Unité de condo • Bureau/Médical • 1 601 pi² • À vendre 1 173 165 $ CAD • Frisco, TX 75035



Certaines informations ont été traduites automatiquement.
Faits saillants de l'investissement
- Fully leased medical office investment
- Strong surrounding tenant mix and professional environment
- Prime Highway 121 and Independence Parkway location
- New 5-year lease extension in progress
Résumé de l'annonce
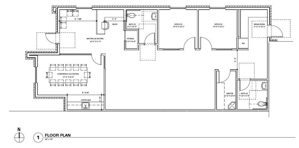
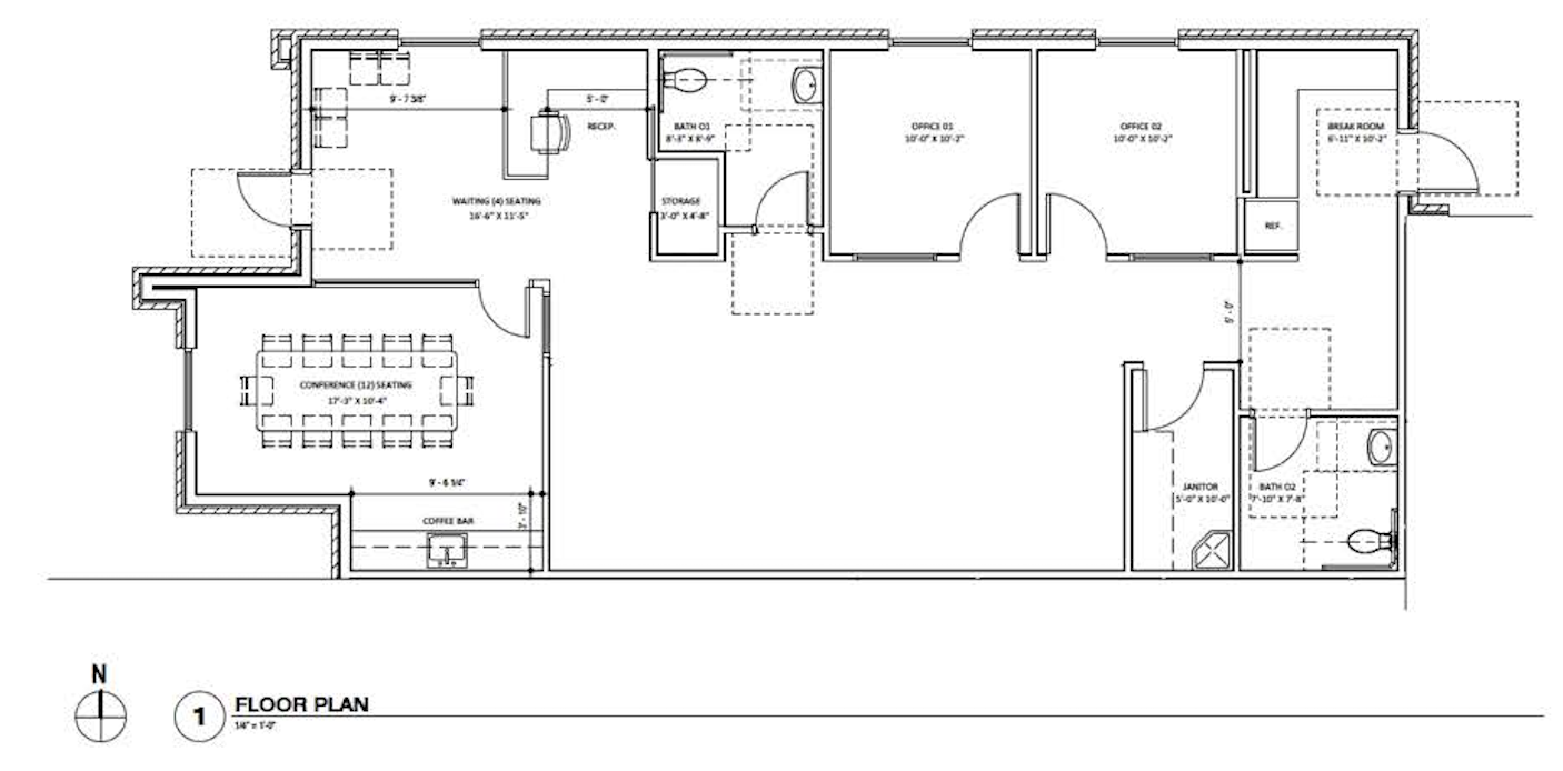
Excellent opportunity to acquire a fully leased, income-producing medical office condo in the highly desirable market of Frisco, Texas. This ±1,600 SF professional suite, built in 2017, is ideally located at the signalized intersection of State Highway 121 and Independence Parkway, offering exceptional visibility, accessibility, and strong surrounding demographics. The property is 100% leased to an established medical tenant, with a new 5-year lease extension currently in progress, providing investors with stable cash flow and long-term income security. This turnkey investment is well-suited for passive investors seeking reliable returns in a high-growth, healthcare-driven corridor. The suite features a functional layout including a reception area, private offices, conference room, bullpen workspace, and restrooms, along with high-quality finish-out and modern construction. Strategically positioned with direct access to State Highway 121 and the Dallas North Tollway, the property benefits from strong population growth, proximity to major healthcare providers, and a dense residential base. ?? A stabilized, low-management investment with long-term upside in one of North Texas’s most dynamic submarkets.
Salle de données Cliquez ici pour accéder à
1 Unité disponible
- Unité
- Taille de l’unité
- Utilisation du condo
- Prix
- Revenu net d’exploitation
| Type de vente | Investissement | Taux de capitalisation | 6,37% |
| Type de vente | Investissement |
| Taux de capitalisation | 6,37% |
- Fully leased medical office investment
- New 5-year lease extension in progress
- Approx. 1,600 SF built in 2017
- Prime Highway 121 and Independence Parkway location
- Modern construction with high-quality finish-out
- Excellent visibility with signage opportunities
- Strong surrounding tenant mix and professional environment
- Easy access to Dallas North Tollway and major growth corridors
Ideal passive investment in a high-demand medical market
Contact the broker for financials, lease details, and offering information.
| Unité | Taille de l’unité | Utilisation du condo | Prix | Revenu net d’exploitation |
| Unité 130 | 1 601 pi² | Bureau/Médical | 1 173 165 $ CAD (732,77 $ CAD/pi²) | 74 777,62 $ CAD |
Unité 130
| Taille de l’unité |
| 1 601 pi² |
| Utilisation du condo |
| Bureau/Médical |
| Prix |
| 1 173 165 $ CAD (732,77 $ CAD/pi²) |
| Revenu net d’exploitation |
| 74 777,62 $ CAD |
Unité 130
| Taille de l’unité | 1 601 pi² |
| Utilisation du condo | Bureau/Médical |
| Prix | 1 173 165 $ CAD (732,77 $ CAD/pi²) |
| Revenu net d’exploitation | 74 777,62 $ CAD |
| Type de vente | Investissement |
| Taux de capitalisation | 6,37% |
| Description | |
| New 5-year lease extension in progress. Excellent opportunity to acquire a fully leased, income-producing medical office condo in one of the most desirable commercial corridors in Frisco, Texas. Built in 2017, this 1,600 SF professional suite is located within a modern office park at the signalized intersection of State Highway 121 and Independence Parkway, offering exceptional visibility and accessibility.</li></ul> | |
| Notes sur la vente | |
| <ul style="list-style: disc; padding: 0px 0px 0px 40px"><li> Fully leased medical office investment<br> </li><li> New 5-year lease extension in progress<br> </li><li> Approx. 1,600 SF built in 2017<br> </li><li> Prime Highway 121 and Independence Parkway location<br> </li><li> Modern construction with high-quality finish-out<br> </li><li> Excellent visibility with signage opportunities<br> </li><li> Strong surrounding tenant mix and professional environment<br> </li><li> Easy access to Dallas North Tollway and major growth corridors<br> Ideal passive investment in a high-demand medical market<br> <br> Contact the broker for financials, lease details, and offering information.</li></ul> |
Faits sur la propriété
| Taille totale du bâtiment | 6 000 pi² | Superficie de plancher typique | 6 000 pi² |
| Type de propriété | Bureau (Condo) | Année de construction | 2017 |
| Sous-type de propriété | Médical | Taille du lot | 0,91 AC |
| Classe d’immeuble | B | Ratio de stationnement | 6,16/1 000 pi² |
| Planchers | 1 | ||
| Zonage | Commercial - Utilisations professionnelles, dentaires/médicales | ||
| Taille totale du bâtiment | 6 000 pi² |
| Type de propriété | Bureau (Condo) |
| Sous-type de propriété | Médical |
| Classe d’immeuble | B |
| Planchers | 1 |
| Superficie de plancher typique | 6 000 pi² |
| Année de construction | 2017 |
| Taille du lot | 0,91 AC |
| Ratio de stationnement | 6,16/1 000 pi² |
| Zonage | Commercial - Utilisations professionnelles, dentaires/médicales |
Commodités
- Accès 24 heures
- Affichage
- Cuisine
- Réception
- Chauffage central
- Lumière naturelle
- Clef en main
- Wi-Fi
- Affichage sur monument
- Climatisation
RENSEIGNEMENTS SUR LE LOCATAIRE DU LOYER HYPERNET Cliquez ici pour accéder à
| LOCATAIRE | pi² Occupé | DATE DE FIN DE BAIL |
|---|---|---|
| Airrosti |
-
|
Jan 0000
|
Présenté par
14688 State Highway 121
Hmm, il semble y avoir eu une erreur lors de l’envoi de votre message. Veuillez réessayer.
Merci! Votre message a été envoyé.
