Votre courriel a été envoyé.
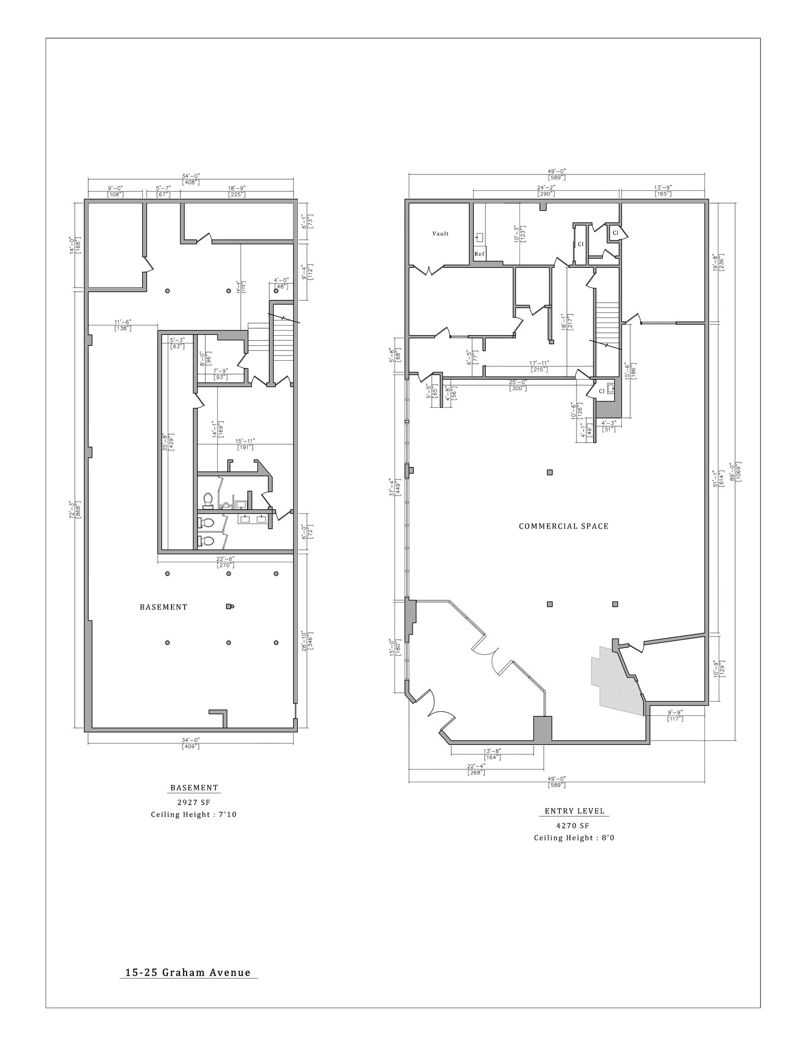
15 Graham Ave 4 270 pi² d'espace disponible • Commerce de détail • Brooklyn, NY 11206


Certaines informations ont été traduites automatiquement.
FAITS SAILLANTS
- Prime Williamsburg-Bushwick location with strong pedestrian flow
- Surrounded by vibrant retail, dining, and cultural destinations
- Minutes from Manhattan and key Brooklyn neighborhoods
- Excellent transit access via J, M, Z subway lines and major bus routes
- High-visibility frontage on a well-traveled Brooklyn avenue
DISPONIBILITÉ DE L’ESPACE (1)
Afficher les taux de location en
- ESPACE
- TAILLE
- TERME
- TAUX DE LOCATION
- TYPE DE LOYER
| Espace | Taille | Terme | Taux de location | Type de loyer | ||
| 1er étage | 4 270 pi² | Négociable | Sur demande Sur demande Sur demande Sur demande | Brut modifié |
1er étage
CORNER PARCEL WITH 80 FEET OF FRONTAGE Fully built out bank space for rent. Space is in excellent condition and is still utilized as an active bank. Bank vault on site, HVAC, bathrooms, partitioned offices, break rooms, offices and conference rooms, lighting, etc.
- Le taux inscrit peut ne pas comprendre certains services publics, les services de bâtiment et les dépenses immobilières.
- Entièrement construit comme Banque
- Espace en excellent état
- Climatisation centrale
- Bureaux partitionnés
- Salle de bains privée
- Salle d’impression/Photocopie
- Complètement tapissé
- Système de sécurité
- Espace en coin
- Plafond suspendu
- Éclairage encastré
- CVCA disponible après les heures de travail
- Sous-sol
- CORNER PARCEL WITH 80 FEET OF FRONTAGE
- HVAC
- Bathrooms
- Partitioned Offices
- TURN KEY BANK PROPERTY
Types de loyers
Le type et le montant du loyer que le locataire (preneur) est tenu de payer au propriétaire (bailleur) sur la durée du bail sont négociés avant la signature du bail par les deux parties. Le type de loyer varie selon les services fournis. Par exemple, le prix d’un loyer hypernet est habituellement inférieur à celui d’un bail à service complet puisque le locataire est tenu d’assumer des dépenses additionnelles par rapport au loyer de base. Contactez le courtier inscripteur pour tout connaître sur les frais connexes et additionnels associés à chaque type de loyer.
1. Service complet: Un taux de location qui comprend des services standards liés à l’immeuble fournis par le propriétaire dans le cadre d’une location annuelle de base.
2. Loyer supernet: Le locataire paie seulement deux des frais de l’immeuble. Le propriétaire et le locataire déterminent ces frais spécifiques avant la signature du bail.
3. Loyer hypernet: Un bail en vertu duquel le locataire est responsable de tous les frais liés à sa part proportionnelle d’occupation de l’immeuble.
4. Brut modifié: Le loyer brut modifié désigne un type général de taux de location dans lequel le locataire est habituellement responsable de sa part proportionnelle d’un ou de plusieurs frais. C’est le propriétaire qui paie les frais restants. Considérez les structures tarifaires courantes suivantes applicables aux loyers bruts modifiés: 4. Plus les services: Un type de bail brut modifié suivant lequel le locataire est responsable de sa part proportionnelle des coûts des services publics, en plus du loyer. 4. Plus le nettoyage: Un type de bail brut modifié suivant lequel le locataire est responsable de sa part proportionnelle des coûts de nettoyage, en plus du loyer. 4. Plus l'électricité: Un type de bail brut modifié suivant lequel le locataire est responsable de sa part proportionnelle des coûts d’électricité, en plus du loyer. 4. Plus l’électricité et le nettoyage: Un type de bail brut modifié dans lequel le locataire est responsable de sa part proportionnelle des coûts d’électricité et de nettoyage, en plus du loyer. 4. Plus les services publics et le nettoyage: Un type de bail brut modifié dans lequel le locataire est responsable de sa part proportionnelle des coûts des services publics et de nettoyage, en plus du loyer. 4. Bail industriel brut: Un type de bail brut modifié dans lequel le locataire paie un ou plusieurs des frais, en plus du loyer. Le propriétaire et le locataire déterminent ces frais spécifiques avant la signature du bail.
5. L’électricité est à la charge du locataire: Le propriétaire paie pour tous les services et le locataire est responsable de sa propre utilisation de l’éclairage et des prises électriques dans l’espace qu’il occupe.
6. Négociable ou sur demande: Cette option est utilisée lorsque le contact de location ne précise pas le type de loyer ou de service.
7. À déterminer: À déterminer ; utilisé pour les immeubles dont le type de services ou de loyer n’est pas connu, souvent quand l’immeuble n’est pas encore construit.
PLAN DE SITE
SÉLECTIONNER DES LOCATAIRES À 15 GRAHAM AVE, BROOKLYN, NY 11206
- LOCATAIRE
- DESCRIPTION
- EMPLACEMENTS US
- PORTÉE
- Popular Bank
- Autres services
- 27
- International
| LOCATAIRE | DESCRIPTION | EMPLACEMENTS US | PORTÉE |
| Popular Bank | Autres services | 27 | International |
FAITS SUR LA PROPRIÉTÉ
| Superficie totale disponible | 4 270 pi² | Superficie commerciale brute | 13 006 pi² |
| Type de propriété | Commerce de détail | Année de construction | 1951 |
| Sous-type de propriété | Bien à usage mixte |
| Superficie totale disponible | 4 270 pi² |
| Type de propriété | Commerce de détail |
| Sous-type de propriété | Bien à usage mixte |
| Superficie commerciale brute | 13 006 pi² |
| Année de construction | 1951 |
À PROPOS DE LA PROPRIÉTÉ
15 Graham Avenue is situated in the heart of Brooklyn’s vibrant Williamsburg-Bushwick corridor, a neighborhood known for its dynamic mix of residential, retail, and cultural destinations. This address offers exceptional visibility along a well-traveled avenue that connects to major thoroughfares, making it ideal for businesses seeking high foot traffic and strong neighborhood engagement. The building reflects the area’s eclectic character with a classic Brooklyn streetscape presence, surrounded by trendy cafes, boutique shops, and established retailers. Its proximity to the J, M, and Z subway lines ensures convenient access to Manhattan and other parts of Brooklyn, while nearby parks and creative hubs enhance the appeal for both local patrons and visitors. Positioned within one of New York City’s most sought-after neighborhoods, 15 Graham Avenue provides a compelling opportunity to establish a presence in a high-demand, culturally rich environment.
- Intersection avec signalisation
PRINCIPAUX DÉTAILLANTS À PROXIMITÉ
Présenté par
15 Graham Ave
Hmm, il semble y avoir eu une erreur lors de l’envoi de votre message. Veuillez réessayer.
Merci! Votre message a été envoyé.


