Votre courriel a été envoyé.
Certaines informations ont été traduites automatiquement.
Faits saillants
- Bureau 301 : 1 950 RSF. Configuration ouverte, 2 bureaux, salle de repos, salle des serveurs
- Beaucoup de fenêtres/lumière du soleil. Vues de la rivière Banana
- 168 Espaces de stationnement communs pavés, rayés et éclairés
- Suite 304:1 447 RF. Aire de réception, 4 bureaux privés, configuration ouverte
- 100 % par aspersion incendie. Accès par ascenseur et toilettes communes à chaque étage
- Inclut. 9,00$ PSF OPEX (comprend l'eau et les égouts)
Tous les espaces disponibles(3)
Afficher les taux de location en
- Espace
- Taille
- Terme
- Taux de location
- Utilisation de l’espace
- État
- Disponible
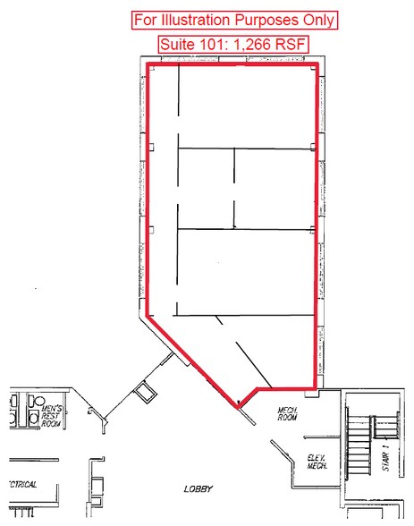
Suite 101 is 1,266 RSF. Interior includes a reception, 3 offices, conference room, and a break area. Drop ceiling and mix of carpet/tile throughout. First floor unit with direct parking lot and lobby access. Est. $7.89 PSF OPEX.
- Le taux de location ne comprend pas les services publics, les services de bâtiment ou les dépenses immobilières.
- Disposition intensive du bureau
- Espace en excellent état
- Aire de réception
- Plafond suspendu
- Reception, 3 Offices, Conference, Break Area
- Lots of Windows/Natural Light
- Entièrement construit comme Bureau standard
- Salles de conférence
- Climatisation centrale
- Espace en coin
- Lumière naturelle
- Direct Parking Lot & Lobby Access
- Est. $7.89 PSF OPEX
Suite 301 is 1,950 RSF. Interior is primarily open configuration with 2 private offices, a break room, and a server room. Lots of windows/sunlight... views of the surrounding canals and Banana River. Elevator access. Common restrooms. Est. $7.89 PSF OPEX.
- Le taux de location ne comprend pas les services publics, les services de bâtiment ou les dépenses immobilières.
- Disposition du plan d’étage ouverte en général
- Espace en excellent état
- Espace en coin
- Lumière naturelle
- Configuration ouverte, 2 bureaux privés, salle de repos
- Vues de la rivière Banana et des canaux environnants
- Entièrement construit comme Bureau standard
- 2 bureaux privés
- Climatisation centrale
- Plafond suspendu
- Plan ouvert
- Beaucoup de fenêtres/lumière du soleil
- Epest : 9,00$ par tranche OPEX
Unit 304 is 1,447 RSF. Interior includes a reception area, 4 private offices, and open configuration for cubes/storage. Lots of windows/sunlight. Views of the surrounding canals and Banana River. Elevator access. Common restrooms. Est. $7.89 PSF OPEX.
- Le taux de location ne comprend pas les services publics, les services de bâtiment ou les dépenses immobilières.
- 4 bureaux privés
- Climatisation centrale
- Lumière naturelle
- Beaucoup de fenêtres/lumière du soleil
- Epest : 9,00$ par tranche OPEX
- Entièrement construit comme Bureau standard
- Espace en excellent état
- Plafond suspendu
- Aire de réception et 4 bureaux privés
- Vues de la rivière Banana et des canaux environnants
| Espace | Taille | Terme | Taux de location | Utilisation de l’espace | État | Disponible |
| 1er étage, ste 101 | 1 266 pi² | Négociable | 20,71 $ CAD/pi²/an 1,73 $ CAD/pi²/mois 26 218 $ CAD/an 2 185 $ CAD/mois | Bureau | construction complète | 30 jours |
| 3e étage, ste 301 | 1 950 pi² | Négociable | 20,71 $ CAD/pi²/an 1,73 $ CAD/pi²/mois 40 383 $ CAD/an 3 365 $ CAD/mois | Bureau | construction complète | Maintenant |
| 3e étage, ste 304 | 1 447 pi² | Négociable | 20,71 $ CAD/pi²/an 1,73 $ CAD/pi²/mois 29 966 $ CAD/an 2 497 $ CAD/mois | Bureau | construction complète | Maintenant |
1er étage, ste 101
| Taille |
| 1 266 pi² |
| Terme |
| Négociable |
| Taux de location |
| 20,71 $ CAD/pi²/an 1,73 $ CAD/pi²/mois 26 218 $ CAD/an 2 185 $ CAD/mois |
| Utilisation de l’espace |
| Bureau |
| État |
| construction complète |
| Disponible |
| 30 jours |
3e étage, ste 301
| Taille |
| 1 950 pi² |
| Terme |
| Négociable |
| Taux de location |
| 20,71 $ CAD/pi²/an 1,73 $ CAD/pi²/mois 40 383 $ CAD/an 3 365 $ CAD/mois |
| Utilisation de l’espace |
| Bureau |
| État |
| construction complète |
| Disponible |
| Maintenant |
3e étage, ste 304
| Taille |
| 1 447 pi² |
| Terme |
| Négociable |
| Taux de location |
| 20,71 $ CAD/pi²/an 1,73 $ CAD/pi²/mois 29 966 $ CAD/an 2 497 $ CAD/mois |
| Utilisation de l’espace |
| Bureau |
| État |
| construction complète |
| Disponible |
| Maintenant |
1er étage, ste 101
| Taille | 1 266 pi² |
| Terme | Négociable |
| Taux de location | 20,71 $ CAD/pi²/an |
| Utilisation de l’espace | Bureau |
| État | construction complète |
| Disponible | 30 jours |
Suite 101 is 1,266 RSF. Interior includes a reception, 3 offices, conference room, and a break area. Drop ceiling and mix of carpet/tile throughout. First floor unit with direct parking lot and lobby access. Est. $7.89 PSF OPEX.
- Le taux de location ne comprend pas les services publics, les services de bâtiment ou les dépenses immobilières.
- Entièrement construit comme Bureau standard
- Disposition intensive du bureau
- Salles de conférence
- Espace en excellent état
- Climatisation centrale
- Aire de réception
- Espace en coin
- Plafond suspendu
- Lumière naturelle
- Reception, 3 Offices, Conference, Break Area
- Direct Parking Lot & Lobby Access
- Lots of Windows/Natural Light
- Est. $7.89 PSF OPEX
3e étage, ste 301
| Taille | 1 950 pi² |
| Terme | Négociable |
| Taux de location | 20,71 $ CAD/pi²/an |
| Utilisation de l’espace | Bureau |
| État | construction complète |
| Disponible | Maintenant |
Suite 301 is 1,950 RSF. Interior is primarily open configuration with 2 private offices, a break room, and a server room. Lots of windows/sunlight... views of the surrounding canals and Banana River. Elevator access. Common restrooms. Est. $7.89 PSF OPEX.
- Le taux de location ne comprend pas les services publics, les services de bâtiment ou les dépenses immobilières.
- Entièrement construit comme Bureau standard
- Disposition du plan d’étage ouverte en général
- 2 bureaux privés
- Espace en excellent état
- Climatisation centrale
- Espace en coin
- Plafond suspendu
- Lumière naturelle
- Plan ouvert
- Configuration ouverte, 2 bureaux privés, salle de repos
- Beaucoup de fenêtres/lumière du soleil
- Vues de la rivière Banana et des canaux environnants
- Epest : 9,00$ par tranche OPEX
3e étage, ste 304
| Taille | 1 447 pi² |
| Terme | Négociable |
| Taux de location | 20,71 $ CAD/pi²/an |
| Utilisation de l’espace | Bureau |
| État | construction complète |
| Disponible | Maintenant |
Unit 304 is 1,447 RSF. Interior includes a reception area, 4 private offices, and open configuration for cubes/storage. Lots of windows/sunlight. Views of the surrounding canals and Banana River. Elevator access. Common restrooms. Est. $7.89 PSF OPEX.
- Le taux de location ne comprend pas les services publics, les services de bâtiment ou les dépenses immobilières.
- Entièrement construit comme Bureau standard
- 4 bureaux privés
- Espace en excellent état
- Climatisation centrale
- Plafond suspendu
- Lumière naturelle
- Aire de réception et 4 bureaux privés
- Beaucoup de fenêtres/lumière du soleil
- Vues de la rivière Banana et des canaux environnants
- Epest : 9,00$ par tranche OPEX
Aperçu de la propriété
Situé au cœur de Cocoa Beach, à peu près à mi-chemin entre la base de la Force spatiale Patrick et Port Canaveral. La route nationale 520 et la route 528 se trouvent à proximité, et offrent toutes deux un accès immédiat à la US1 et à l'Interstate 95. Les employeurs à proximité comprennent le Kennedy Space Center, l'école secondaire Cocoa Beach et l'hôpital Cape Canaveral, pour n'en nommer que quelques-uns. Faites de cette maison la future maison de votre entreprise dès aujourd'hui !
- Accès 24 heures
- Atrium
- Cour
- Gestionnaire d'immeuble sur place
- Affichage sur monument
- Climatisation
Faits sur la propriété
Présenté par
ESO Tower | 150 Cocoa Isles Blvd
Hmm, il semble y avoir eu une erreur lors de l’envoi de votre message. Veuillez réessayer.
Merci! Votre message a été envoyé.












