Votre courriel a été envoyé.
Seven W Business Park Mentone, CA 92359 35 872–75 772 pi² d'espace disponible



Certaines informations ont été traduites automatiquement.
Faits saillants du parc
- Combined ±75,772 SF of office and industrial space.
- Industrial building includes ±3.5-acre yard.
- Convenient access to I-10 and I-210 freeways.
- Flexible office layouts with ample parking.
- Two grade-level doors and 14’ clear height.
- Separate ingress/egress for efficient site circulation.
Faits sur le parc
Caractéristiques et commodités
- Terrain clôturé
- Agents de sécurité sur place
Tous les espaces disponibles(2)
Afficher les taux de location en
- Espace
- Taille
- Terme
- Taux de location
- Utilisation de l’espace
- Aménagement
- Disponible
The office component of the property consists of three interconnected buildings totaling approximately ±35,872 SF. These buildings feature flexible layouts that can accommodate a range of business operations, from collaborative workspaces to private offices. The design allows for multiple configurations, making it suitable for single or multi-tenant occupancy. Ample on-site parking supports employee and visitor convenience, while the property’s location provides quick access to major freeways, including I-10 and I-210. This cluster of office buildings offers a functional and adaptable environment for businesses seeking a well-located, professional setting in Redlands.
- Entièrement construit comme Bureau standard
- Convient pour 90 à 287 personnes
- Flexible layouts for multiple configurations
- Convenient access to I-10 and I-210 freeways
- Disposition du plan d’étage ouverte en général
- Combined ±35,872 SF of office space across three b
- Ample on-site parking for staff and visitors
- Adaptable for single or multi-tenant use
| Espace | Taille | Terme | Taux de location | Utilisation de l’espace | Aménagement | Disponible |
| 1er étage | 35 872 pi² | Négociable | Sur demande Sur demande Sur demande Sur demande | Bureau | construction complète | Maintenant |
1500 Crafton Ave - 1er étage
- Espace
- Taille
- Terme
- Taux de location
- Utilisation de l’espace
- Aménagement
- Disponible
Expansive industrial space featuring ±3.5-acre yard, two grade-level doors, and 14’ clear height. Separate ingress/egress supports smooth logistics.
- 2 accès plain-pied
- Two grade-level loading doors
- Large yard for storage
- 14-foot interior clear height
| Espace | Taille | Terme | Taux de location | Utilisation de l’espace | Aménagement | Disponible |
| 1er étage | 39 900 pi² | Négociable | Sur demande Sur demande Sur demande Sur demande | Industriel | construction complète | Maintenant |
1500 Crafton Ave - 1er étage
1500 Crafton Ave - 1er étage
| Taille | 35 872 pi² |
| Terme | Négociable |
| Taux de location | Sur demande |
| Utilisation de l’espace | Bureau |
| Aménagement | construction complète |
| Disponible | Maintenant |
The office component of the property consists of three interconnected buildings totaling approximately ±35,872 SF. These buildings feature flexible layouts that can accommodate a range of business operations, from collaborative workspaces to private offices. The design allows for multiple configurations, making it suitable for single or multi-tenant occupancy. Ample on-site parking supports employee and visitor convenience, while the property’s location provides quick access to major freeways, including I-10 and I-210. This cluster of office buildings offers a functional and adaptable environment for businesses seeking a well-located, professional setting in Redlands.
- Entièrement construit comme Bureau standard
- Disposition du plan d’étage ouverte en général
- Convient pour 90 à 287 personnes
- Combined ±35,872 SF of office space across three b
- Flexible layouts for multiple configurations
- Ample on-site parking for staff and visitors
- Convenient access to I-10 and I-210 freeways
- Adaptable for single or multi-tenant use
1500 Crafton Ave - 1er étage
| Taille | 39 900 pi² |
| Terme | Négociable |
| Taux de location | Sur demande |
| Utilisation de l’espace | Industriel |
| Aménagement | construction complète |
| Disponible | Maintenant |
Expansive industrial space featuring ±3.5-acre yard, two grade-level doors, and 14’ clear height. Separate ingress/egress supports smooth logistics.
- 2 accès plain-pied
- Large yard for storage
- Two grade-level loading doors
- 14-foot interior clear height
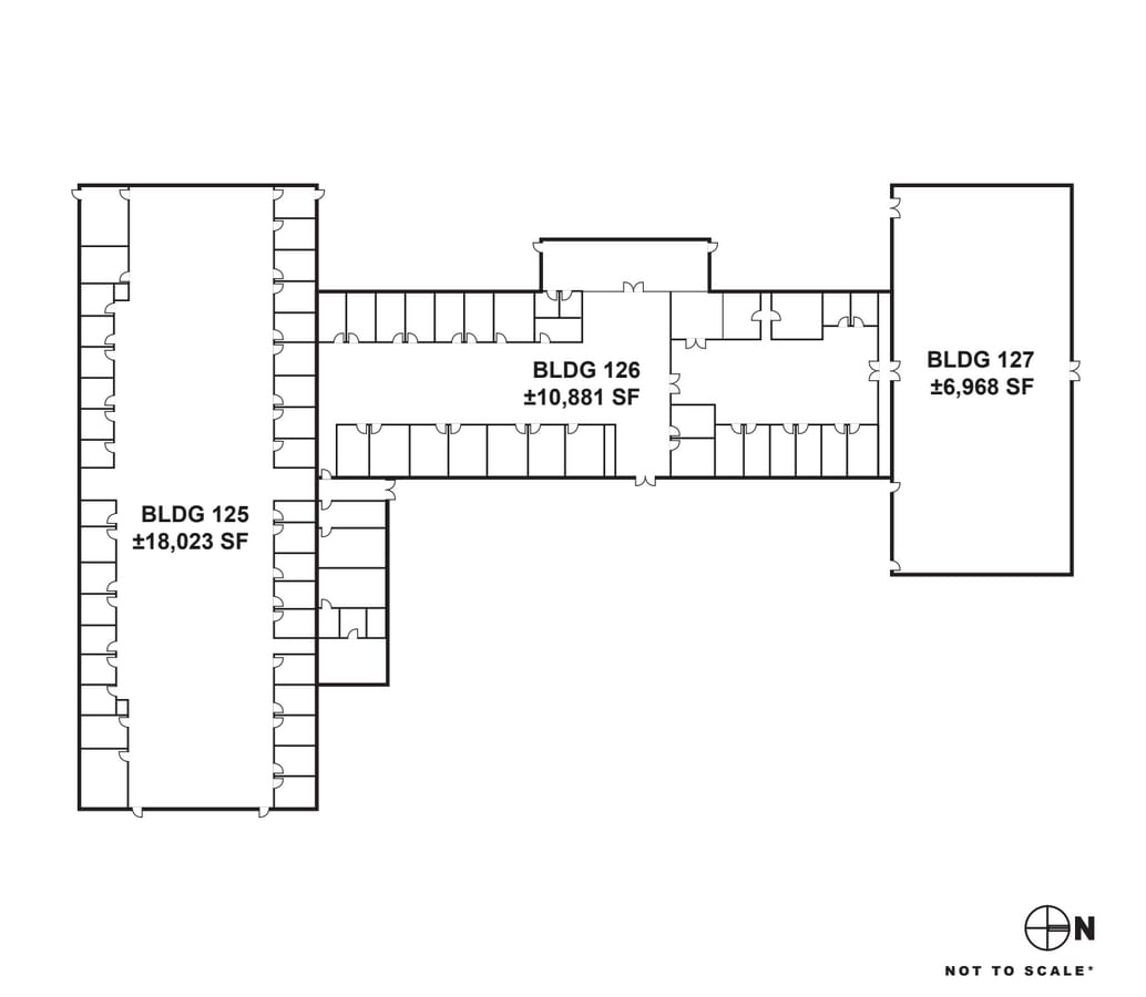
Plan de site
Aperçu du parc
Located at 1500 Crafton Avenue in Redlands, CA, this property offers a combined ±75,772 SF of office and industrial space across multiple buildings. The office component spans three buildings totaling ±35,872 SF, featuring flexible layouts and ample parking to accommodate a variety of business needs. The industrial building provides ±39,900 SF of functional space with a generous ±3.5-acre yard, two grade-level doors, and 14-foot clear height, ideal for distribution, storage, or light manufacturing. The site benefits from M2 zoning (verify) and separate ingress/egress for efficient traffic flow. Positioned minutes from the I-10 and I-210 freeways, the property ensures excellent regional connectivity and convenient access to major transportation routes, including Ontario International Airport and the Ports of Long Beach and Los Angeles. This versatile asset is well-suited for companies seeking a combination of office and industrial capabilities in a single, accessible location.
Présenté par
Seven W Business Park | Mentone, CA 92359
Hmm, il semble y avoir eu une erreur lors de l’envoi de votre message. Veuillez réessayer.
Merci! Votre message a été envoyé.






