Votre courriel a été envoyé.
Maker 1500 S St 908–7 595 pi² d'espace disponible • Commerce de détail • 4 étoiles • Sacramento, CA 95811



Certaines informations ont été traduites automatiquement.
Faits saillants
- Nouvelle construction : bâtiment à usage mixte de 7 étages au 1500, rue S, améliorant le corridor de la rue R
- Emplacement de choix : À un pâté de maisons du corridor de la rue R, près des blocs de glace, dans un quartier animé
- Charme historique : La rue R est passée d'un corridor industriel à un carrefour de la restauration, de l'art et de la créativité.
- Usage mixte : Locaux commerciaux de classe A de moins de 137 appartements
- Zone piétonne : Près des meilleurs restaurants, boutiques et commodités urbaines dans un quartier piétonnier reconnu à l'échelle nationale
- Faites partie du changement : Rejoignez le tout nouveau développement dans le cœur urbain florissant de Sacramento, attirant les résidents et les entreprises
Tous les espaces disponibles(6)
Afficher les taux de location en
- Espace
- Taille
- Terme
- Taux de location
- Utilisation de l’espace
- Aménagement
- Disponible
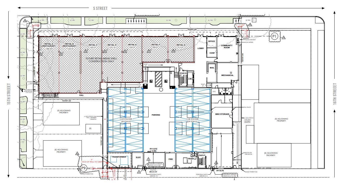
1580 SF of restaurant space.
- Le taux de location ne comprend pas les services publics, les services de bâtiment ou les dépenses immobilières.
- Espace en excellent état
- Situé en ligne avec d’autres commerces de détail
- Peut être associé à un ou plusieurs espaces supplémentaires pour obtenir jusqu’à 7 595 pi² d’espace adjacent.
1625 SF of restaurant space.
- Le taux de location ne comprend pas les services publics, les services de bâtiment ou les dépenses immobilières.
- Espace en excellent état
- Situé en ligne avec d’autres commerces de détail
- Peut être associé à un ou plusieurs espaces supplémentaires pour obtenir jusqu’à 7 595 pi² d’espace adjacent.
1251 SF of restaurant space.
- Le taux de location ne comprend pas les services publics, les services de bâtiment ou les dépenses immobilières.
- Espace en excellent état
- Situé en ligne avec d’autres commerces de détail
- Peut être associé à un ou plusieurs espaces supplémentaires pour obtenir jusqu’à 7 595 pi² d’espace adjacent.
- Le taux de location ne comprend pas les services publics, les services de bâtiment ou les dépenses immobilières.
- Peut être associé à un ou plusieurs espaces supplémentaires pour obtenir jusqu’à 7 595 pi² d’espace adjacent.
908 SF of restaurant space.
- Le taux de location ne comprend pas les services publics, les services de bâtiment ou les dépenses immobilières.
- Espace en excellent état
- Situé en ligne avec d’autres commerces de détail
- Peut être associé à un ou plusieurs espaces supplémentaires pour obtenir jusqu’à 7 595 pi² d’espace adjacent.
915 SF of restaurant space.
- Le taux de location ne comprend pas les services publics, les services de bâtiment ou les dépenses immobilières.
- Espace en excellent état
- Situé en ligne avec d’autres commerces de détail
- Peut être associé à un ou plusieurs espaces supplémentaires pour obtenir jusqu’à 7 595 pi² d’espace adjacent.
| Espace | Taille | Terme | Taux de location | Utilisation de l’espace | Aménagement | Disponible |
| 1er étage, ste B | 1 653 pi² | Négociable | 57,86 $ CAD/pi²/an 4,82 $ CAD/pi²/mois 95 634 $ CAD/an 7 970 $ CAD/mois | Commerce de détail | espace cloisonné | Maintenant |
| 1er étage, ste C | 1 625 pi² | Négociable | 57,86 $ CAD/pi²/an 4,82 $ CAD/pi²/mois 94 014 $ CAD/an 7 835 $ CAD/mois | Commerce de détail | espace cloisonné | Maintenant |
| 1er étage, ste D | 1 251 pi² | Négociable | 57,86 $ CAD/pi²/an 4,82 $ CAD/pi²/mois 72 377 $ CAD/an 6 031 $ CAD/mois | Commerce de détail | espace cloisonné | Maintenant |
| 1er étage, ste E | 1 243 pi² | Négociable | 57,86 $ CAD/pi²/an 4,82 $ CAD/pi²/mois 71 914 $ CAD/an 5 993 $ CAD/mois | Commerce de détail | - | Maintenant |
| 1er étage, ste F | 908 pi² | Négociable | 57,86 $ CAD/pi²/an 4,82 $ CAD/pi²/mois 52 532 $ CAD/an 4 378 $ CAD/mois | Commerce de détail | espace cloisonné | Maintenant |
| 1er étage, ste G | 915 pi² | Négociable | 57,86 $ CAD/pi²/an 4,82 $ CAD/pi²/mois 52 937 $ CAD/an 4 411 $ CAD/mois | Commerce de détail | espace cloisonné | Maintenant |
1er étage, ste B
| Taille |
| 1 653 pi² |
| Terme |
| Négociable |
| Taux de location |
| 57,86 $ CAD/pi²/an 4,82 $ CAD/pi²/mois 95 634 $ CAD/an 7 970 $ CAD/mois |
| Utilisation de l’espace |
| Commerce de détail |
| Aménagement |
| espace cloisonné |
| Disponible |
| Maintenant |
1er étage, ste C
| Taille |
| 1 625 pi² |
| Terme |
| Négociable |
| Taux de location |
| 57,86 $ CAD/pi²/an 4,82 $ CAD/pi²/mois 94 014 $ CAD/an 7 835 $ CAD/mois |
| Utilisation de l’espace |
| Commerce de détail |
| Aménagement |
| espace cloisonné |
| Disponible |
| Maintenant |
1er étage, ste D
| Taille |
| 1 251 pi² |
| Terme |
| Négociable |
| Taux de location |
| 57,86 $ CAD/pi²/an 4,82 $ CAD/pi²/mois 72 377 $ CAD/an 6 031 $ CAD/mois |
| Utilisation de l’espace |
| Commerce de détail |
| Aménagement |
| espace cloisonné |
| Disponible |
| Maintenant |
1er étage, ste E
| Taille |
| 1 243 pi² |
| Terme |
| Négociable |
| Taux de location |
| 57,86 $ CAD/pi²/an 4,82 $ CAD/pi²/mois 71 914 $ CAD/an 5 993 $ CAD/mois |
| Utilisation de l’espace |
| Commerce de détail |
| Aménagement |
| - |
| Disponible |
| Maintenant |
1er étage, ste F
| Taille |
| 908 pi² |
| Terme |
| Négociable |
| Taux de location |
| 57,86 $ CAD/pi²/an 4,82 $ CAD/pi²/mois 52 532 $ CAD/an 4 378 $ CAD/mois |
| Utilisation de l’espace |
| Commerce de détail |
| Aménagement |
| espace cloisonné |
| Disponible |
| Maintenant |
1er étage, ste G
| Taille |
| 915 pi² |
| Terme |
| Négociable |
| Taux de location |
| 57,86 $ CAD/pi²/an 4,82 $ CAD/pi²/mois 52 937 $ CAD/an 4 411 $ CAD/mois |
| Utilisation de l’espace |
| Commerce de détail |
| Aménagement |
| espace cloisonné |
| Disponible |
| Maintenant |
1er étage, ste B
| Taille | 1 653 pi² |
| Terme | Négociable |
| Taux de location | 57,86 $ CAD/pi²/an |
| Utilisation de l’espace | Commerce de détail |
| Aménagement | espace cloisonné |
| Disponible | Maintenant |
1580 SF of restaurant space.
- Le taux de location ne comprend pas les services publics, les services de bâtiment ou les dépenses immobilières.
- Situé en ligne avec d’autres commerces de détail
- Espace en excellent état
- Peut être associé à un ou plusieurs espaces supplémentaires pour obtenir jusqu’à 7 595 pi² d’espace adjacent.
1er étage, ste C
| Taille | 1 625 pi² |
| Terme | Négociable |
| Taux de location | 57,86 $ CAD/pi²/an |
| Utilisation de l’espace | Commerce de détail |
| Aménagement | espace cloisonné |
| Disponible | Maintenant |
1625 SF of restaurant space.
- Le taux de location ne comprend pas les services publics, les services de bâtiment ou les dépenses immobilières.
- Situé en ligne avec d’autres commerces de détail
- Espace en excellent état
- Peut être associé à un ou plusieurs espaces supplémentaires pour obtenir jusqu’à 7 595 pi² d’espace adjacent.
1er étage, ste D
| Taille | 1 251 pi² |
| Terme | Négociable |
| Taux de location | 57,86 $ CAD/pi²/an |
| Utilisation de l’espace | Commerce de détail |
| Aménagement | espace cloisonné |
| Disponible | Maintenant |
1251 SF of restaurant space.
- Le taux de location ne comprend pas les services publics, les services de bâtiment ou les dépenses immobilières.
- Situé en ligne avec d’autres commerces de détail
- Espace en excellent état
- Peut être associé à un ou plusieurs espaces supplémentaires pour obtenir jusqu’à 7 595 pi² d’espace adjacent.
1er étage, ste E
| Taille | 1 243 pi² |
| Terme | Négociable |
| Taux de location | 57,86 $ CAD/pi²/an |
| Utilisation de l’espace | Commerce de détail |
| Aménagement | - |
| Disponible | Maintenant |
- Le taux de location ne comprend pas les services publics, les services de bâtiment ou les dépenses immobilières.
- Peut être associé à un ou plusieurs espaces supplémentaires pour obtenir jusqu’à 7 595 pi² d’espace adjacent.
1er étage, ste F
| Taille | 908 pi² |
| Terme | Négociable |
| Taux de location | 57,86 $ CAD/pi²/an |
| Utilisation de l’espace | Commerce de détail |
| Aménagement | espace cloisonné |
| Disponible | Maintenant |
908 SF of restaurant space.
- Le taux de location ne comprend pas les services publics, les services de bâtiment ou les dépenses immobilières.
- Situé en ligne avec d’autres commerces de détail
- Espace en excellent état
- Peut être associé à un ou plusieurs espaces supplémentaires pour obtenir jusqu’à 7 595 pi² d’espace adjacent.
1er étage, ste G
| Taille | 915 pi² |
| Terme | Négociable |
| Taux de location | 57,86 $ CAD/pi²/an |
| Utilisation de l’espace | Commerce de détail |
| Aménagement | espace cloisonné |
| Disponible | Maintenant |
915 SF of restaurant space.
- Le taux de location ne comprend pas les services publics, les services de bâtiment ou les dépenses immobilières.
- Situé en ligne avec d’autres commerces de détail
- Espace en excellent état
- Peut être associé à un ou plusieurs espaces supplémentaires pour obtenir jusqu’à 7 595 pi² d’espace adjacent.
Faits sur la propriété
| Superficie totale disponible | 7 595 pi² | Style d’appartement | De hauteur moyenne |
| Nombre d’unités | 137 | Taille du bâtiment | 108 000 pi² |
| Type de propriété | Immeuble residentiel | Année de construction | 2024 |
| Sous-type de propriété | Appartement |
| Superficie totale disponible | 7 595 pi² |
| Nombre d’unités | 137 |
| Type de propriété | Immeuble residentiel |
| Sous-type de propriété | Appartement |
| Style d’appartement | De hauteur moyenne |
| Taille du bâtiment | 108 000 pi² |
| Année de construction | 2024 |
À propos de la propriété
Maker, située au 1500, rue S par Anthem United, continuera de changer le paysage autour du corridor de la rue R à Sacramento. S'élevant bien en évidence à l'angle des rues 15e et S, l'édifice est un immeuble à usage mixte de 7 étages de 171 384 pieds carrés qui offrira 137 appartements résidentiels et des espaces commerciaux de classe A très visibles. Arrivant au milieu de 2023, l'espace de vente au détail de Maker variera de 908 pieds carrés à 9 175 pieds carrés, visibles à la fois sur les rues S et 15e. Cette propriété passionnante est située à seulement un pâté de maisons du corridor de la rue R, au cœur de toutes les commodités les plus importantes et passionnantes de la rue R, y compris les blocs de glace. La propriété se trouve confortablement entre un mélange idéal de développements à usage mixte, de bureaux créatifs, de maisons et d'équipements urbains populaires. La rue R est une avenue d'anciens entrepôts industriels qui ont été transformés en une communauté de magasins de détail haut de gamme, de restaurants, d'unités résidentielles et d'espaces de bureaux créatifs. Au cours des cinq dernières années, des centaines de nouvelles unités résidentielles ont été ajoutées à la région immédiate. Ce quartier, déjà reconnu à l'échelle nationale comme l'un des quartiers d'affaires et résidentiels les plus propices à la marche en Amérique, siège officieux du mouvement de la ferme à la table et abritant plus de 100 restaurants et restaurants, est devenu encore plus populaire grâce au mélange d'artistes, de designers et de créatifs résidant et travaillant dans le couloir. Une partie de l'enthousiasme qui sous-tend l'émergence de R Street en tant que quartier dynamique et distinctif repose en partie sur l'histoire unique de la région en tant que premier corridor ferroviaire et industriel de l'État. De nombreux bâtiments, monuments et éléments de rue en briques reflètent encore l'ancienne activité commerciale ferroviaire qui existait depuis plus d'un siècle. Aujourd'hui, au lieu d'entrepôts et de boutiques industrielles, les structures historiques de la rue R abritent maintenant certains des meilleurs restaurants, cocktails, divertissements, œuvres d'art et design que Sacramento a à offrir. Pouvant se rendre à pied aux restaurants et commodités les plus branchés de Sacramento, les détaillants de Maker bénéficieront grandement de centaines de résidents, de milliers d'employés de bureau de jour et de divertissements nocturnes. Faites partie du nouveau développement qui transforme le cœur urbain de Sacramento !
Principaux détaillants à proximité
Présenté par
Maker | 1500 S St
Hmm, il semble y avoir eu une erreur lors de l’envoi de votre message. Veuillez réessayer.
Merci! Votre message a été envoyé.












