Se Connecter/S’inscrire
Votre courriel a été envoyé.
15009 Lancaster Hwy
Charlotte, NC 28277
Bureau Propriété À louer
·
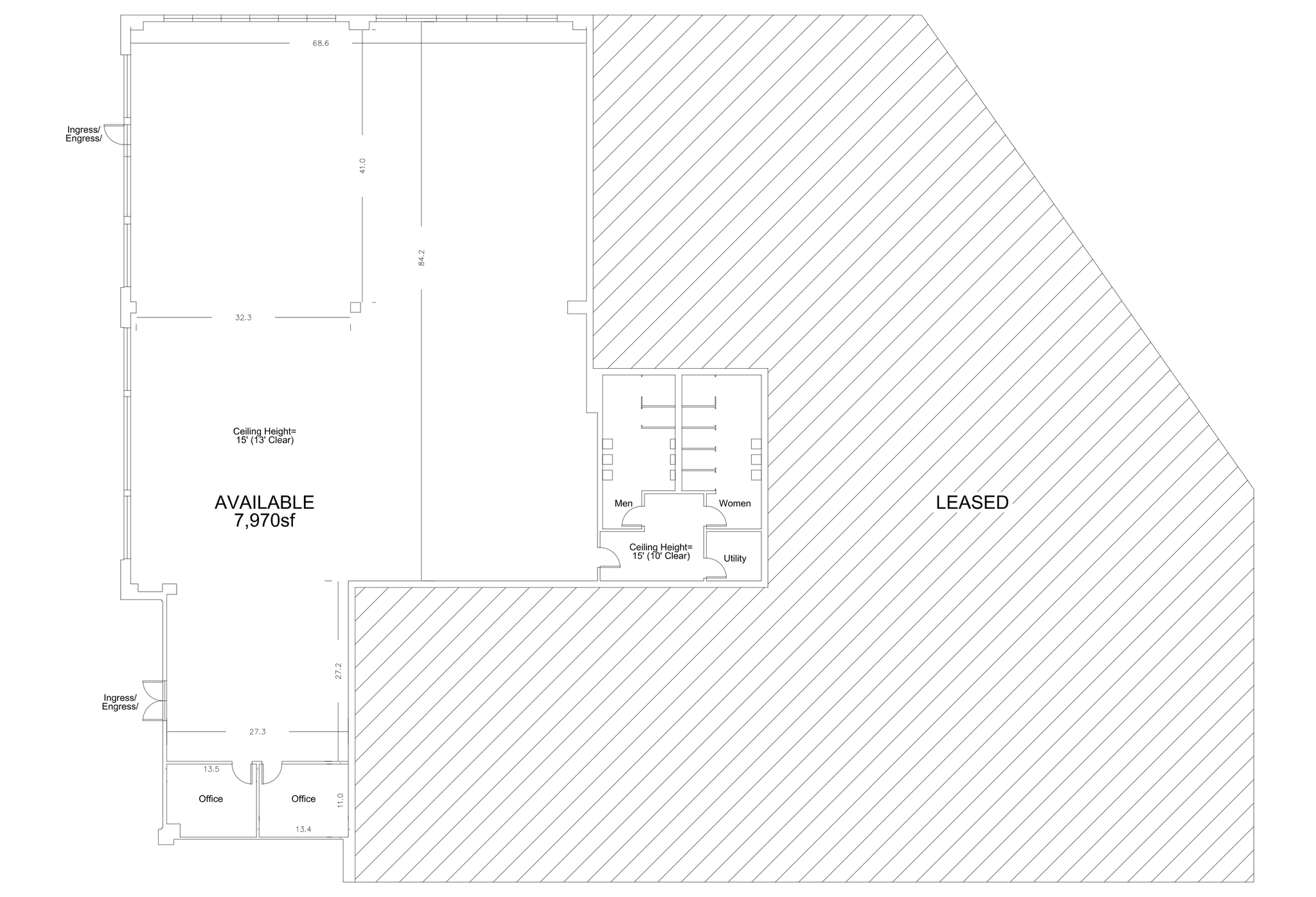
7 970 pi²


Certaines informations ont été traduites automatiquement.
Faits saillants
- Open layout with two private offices
- Ample parking
- Prominent signage opportunities
Aperçu de la propriété
Découvrez un espace de bureau polyvalent offrant une grande disposition ouverte, idéale pour être adaptée aux besoins de votre entreprise. Situé au cœur du centre-ville historique de Lancaster, cet emplacement est entouré d'un mélange de cabinets médicaux, de restaurants et de services de détail. Ce lieu de choix combine harmonieusement des commodités professionnelles et des avantages pratiques au quotidien, ce qui en fait une option idéale pour les entreprises à la recherche d'un environnement dynamique et accessible. Donnez un nouvel élan à vos activités dans un espace conçu pour stimuler la productivité et favoriser le succès.
Faits sur la propriété
Type de bâtiment
Bureau
Année de construction
2006
Hauteur du bâtiment
1 étage
Taille du bâtiment
20 000 pi²
Classe d’immeuble
B
Superficie de plancher typique
20 000 pi²
Hauteur du plafond non finie
15’
Stationnement
87 places de stationnement surface
1 de 9
Vidéos
Visite extérieure 3D Matterport
Visite 3D Matterport
Photos
Vue depuis la rue
Rue
Carte
