Votre courriel a été envoyé.
151 W Main St 606–5 420 pi² d'espace disponible • Bureau/Commerce de détail • Purcellville, VA 20132



Certaines informations ont été traduites automatiquement.
Faits saillants
- Circulation piétonnière intense
Disponibilité de l’espace (1)
Afficher les taux de location en
- Espace
- Taille
- Terme
- Taux de location
- Type de loyer
| Espace | Taille | Terme | Taux de location | Type de loyer | ||
| 1er étage | 606 à 5 420 pi² | Négociable | Sur demande Sur demande Sur demande Sur demande | Service complet |
1er étage
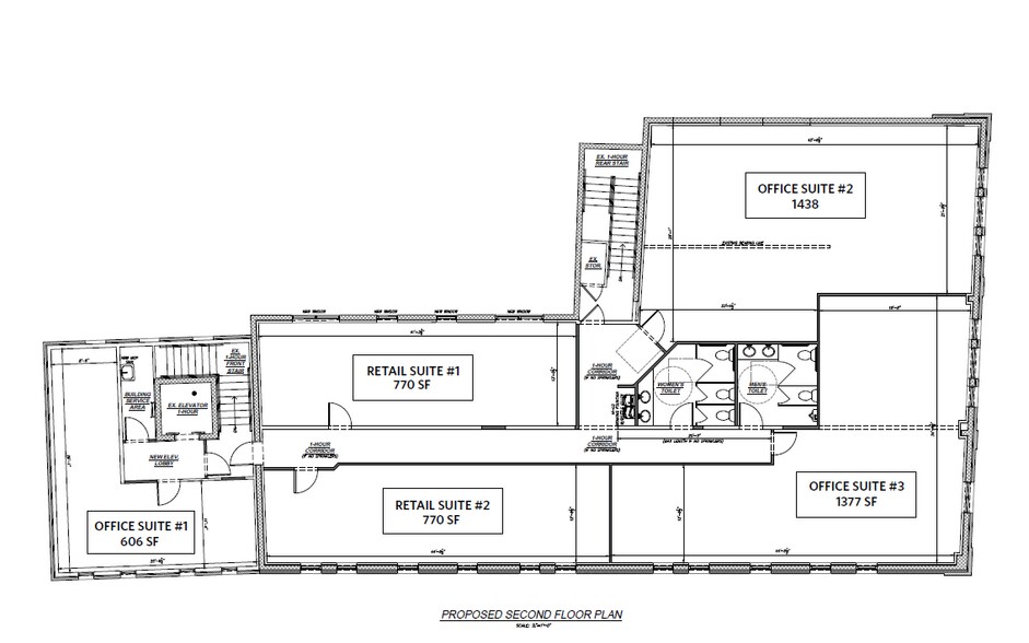
Recently renovated building with 5,420 SF of second floor office or retail space available. Prime location in the town of Purcellville. The space is divisible and has many layout possibilites. Rates- -Office: $26/SF - Full-service net of cleaning -Retail:$25/SF NNN
- Le taux comprend les services publics, les services de bâtiment et les dépenses immobilières.
- Disposition du plan d’étage ouverte en général
- Espace en excellent état
- Situé en ligne avec d’autres commerces de détail
- Emplacement privilégié
- Rénové tout juste
Types de loyers
Le type et le montant du loyer que le locataire (preneur) est tenu de payer au propriétaire (bailleur) sur la durée du bail sont négociés avant la signature du bail par les deux parties. Le type de loyer varie selon les services fournis. Par exemple, le prix d’un loyer hypernet est habituellement inférieur à celui d’un bail à service complet puisque le locataire est tenu d’assumer des dépenses additionnelles par rapport au loyer de base. Contactez le courtier inscripteur pour tout connaître sur les frais connexes et additionnels associés à chaque type de loyer.
1. Service complet: Un taux de location qui comprend des services standards liés à l’immeuble fournis par le propriétaire dans le cadre d’une location annuelle de base.
2. Loyer supernet: Le locataire paie seulement deux des frais de l’immeuble. Le propriétaire et le locataire déterminent ces frais spécifiques avant la signature du bail.
3. Loyer hypernet: Un bail en vertu duquel le locataire est responsable de tous les frais liés à sa part proportionnelle d’occupation de l’immeuble.
4. Brut modifié: Le loyer brut modifié désigne un type général de taux de location dans lequel le locataire est habituellement responsable de sa part proportionnelle d’un ou de plusieurs frais. C’est le propriétaire qui paie les frais restants. Considérez les structures tarifaires courantes suivantes applicables aux loyers bruts modifiés: 4. Plus les services: Un type de bail brut modifié suivant lequel le locataire est responsable de sa part proportionnelle des coûts des services publics, en plus du loyer. 4. Plus le nettoyage: Un type de bail brut modifié suivant lequel le locataire est responsable de sa part proportionnelle des coûts de nettoyage, en plus du loyer. 4. Plus l'électricité: Un type de bail brut modifié suivant lequel le locataire est responsable de sa part proportionnelle des coûts d’électricité, en plus du loyer. 4. Plus l’électricité et le nettoyage: Un type de bail brut modifié dans lequel le locataire est responsable de sa part proportionnelle des coûts d’électricité et de nettoyage, en plus du loyer. 4. Plus les services publics et le nettoyage: Un type de bail brut modifié dans lequel le locataire est responsable de sa part proportionnelle des coûts des services publics et de nettoyage, en plus du loyer. 4. Bail industriel brut: Un type de bail brut modifié dans lequel le locataire paie un ou plusieurs des frais, en plus du loyer. Le propriétaire et le locataire déterminent ces frais spécifiques avant la signature du bail.
5. L’électricité est à la charge du locataire: Le propriétaire paie pour tous les services et le locataire est responsable de sa propre utilisation de l’éclairage et des prises électriques dans l’espace qu’il occupe.
6. Négociable ou sur demande: Cette option est utilisée lorsque le contact de location ne précise pas le type de loyer ou de service.
7. À déterminer: À déterminer ; utilisé pour les immeubles dont le type de services ou de loyer n’est pas connu, souvent quand l’immeuble n’est pas encore construit.
Faits sur la propriété
| Superficie totale disponible | 5 420 pi² | Superficie commerciale brute | 10 840 pi² |
| Min. divisible | 606 pi² | Année de construction/rénovation | 1921/2021 |
| Type de propriété | Commerce de détail | Ratio de stationnement | 1,94/1 000 pi² |
| Sous-type de propriété | Bien à usage mixte |
| Superficie totale disponible | 5 420 pi² |
| Min. divisible | 606 pi² |
| Type de propriété | Commerce de détail |
| Sous-type de propriété | Bien à usage mixte |
| Superficie commerciale brute | 10 840 pi² |
| Année de construction/rénovation | 1921/2021 |
| Ratio de stationnement | 1,94/1 000 pi² |
À propos de la propriété
La rénovation vient de se terminer. Situé au cœur du comté de Loudoun, Purcellville offre le mélange parfait de charme d'une petite ville et de potentiel commercial moderne. Ce quartier historique florissant attire à la fois les habitants et les visiteurs, grâce à son centre-ville accessible à pied, sa scène de restauration dynamique et son sens aigu de la communauté. Avec une circulation piétonnière régulière, la proximité de la route 7 et un environnement propice aux affaires, c'est un endroit idéal pour les utilisateurs de bureaux, les détaillants et les fournisseurs de services qui cherchent à tirer parti d'une clientèle fidèle. Entouré de vignobles, de loisirs de plein air et d'un marché résidentiel en pleine croissance, Purcellville offre une occasion rare d'établir votre entreprise dans une destination recherchée avec un attrait local et régional.
- Affichage
- Climatisation
Principaux détaillants à proximité
Présenté par
151 W Main St
Hmm, il semble y avoir eu une erreur lors de l’envoi de votre message. Veuillez réessayer.
Merci! Votre message a été envoyé.



