Se Connecter/S’inscrire
Votre courriel a été envoyé.
Certaines informations ont été traduites automatiquement.
Faits saillants du parc
- Moins de 1 mille jusqu'à I-10.
- Niveau de nivellement et chargement élevé du quai.
- Hôtel et commerces de détail à proximité.
- Zonage I-1, Ville de Tempe.
Faits sur le parc
| Superficie totale disponible | 6 181 pi² | Type de parc | Parc industriel |
| Superficie totale disponible | 6 181 pi² |
| Type de parc | Parc industriel |
Tous les espaces disponibles(2)
Afficher les taux de location en
Mineral Road Industrial Center
6900 S Priest Dr - Bldg B
3 081 à 6 181 pi²
|
20,89 $ CAD/pi²/an
1,74 $ CAD/pi²/mois
224,80 $ CAD/m²/an
18,73 $ CAD/m²/mois
5 362 $ à 10 758 $ CAD/mois
64 347 $ à 129 090 $ CAD/an
Type de bâtiment
Industriel
Sous-type de bâtiment
Entrepôt
Taille du bâtiment
21 825 pi²
Taille du lot
1,52 AC
Année de construction
1982
Construction
Maçonnerie
Hauteur libre
20’
Baies d’entrée
9
Portes de quai
2
Système de gicleur
Humide
Alimentation électrique
Ampères: 200 Volts: 120-208 Phase: 3
Zonage
I-1,I-2 - Industrial, City of Tempe
- Espace
- Taille
- Terme
- Taux de location
- Utilisation de l’espace
- Aménagement
- Disponible
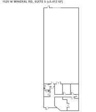
Reception, 1 Office, 2 Restrooms, (1) GL Door
- Le taux de location ne comprend pas les services publics, les services de bâtiment ou les dépenses immobilières.
- Aire de réception
- 1 accès plain-pied
Reception, 2 Offices, Bull Pen, Restroom, (1) GL Door, (1) Dock High Door
- Le taux de location ne comprend pas les services publics, les services de bâtiment ou les dépenses immobilières.
- 1 quai de chargement
- 1 accès plain-pied
- Aire de réception
| Espace | Taille | Terme | Taux de location | Utilisation de l’espace | Aménagement | Disponible |
| 1er étage - 1 | 3 100 pi² | Négociable | 20,89 $ CAD/pi²/an 1,74 $ CAD/pi²/mois 64 744 $ CAD/an 5 395 $ CAD/mois | Industriel | selon spécifications | Maintenant |
| 1er étage - 2 | 3 081 pi² | Négociable | 20,89 $ CAD/pi²/an 1,74 $ CAD/pi²/mois 64 347 $ CAD/an 5 362 $ CAD/mois | Industriel | construction partielle | Maintenant |
Mineral Road Industrial Center
6900 S Priest Dr - Bldg B
3 081 à 6 181 pi²
|
20,89 $ CAD/pi²/an
1,74 $ CAD/pi²/mois
224,80 $ CAD/m²/an
18,73 $ CAD/m²/mois
5 362 $ à 10 758 $ CAD/mois
64 347 $ à 129 090 $ CAD/an
Type de bâtiment
Industriel
Sous-type de bâtiment
Entrepôt
Taille du bâtiment
21 825 pi²
Taille du lot
1,52 AC
Année de construction
1982
Construction
Maçonnerie
Hauteur libre
20’
Baies d’entrée
9
Portes de quai
2
Système de gicleur
Humide
Alimentation électrique
Ampères: 200 Volts: 120-208 Phase: 3
Zonage
I-1,I-2 - Industrial, City of Tempe
6900 S Priest Dr - 1er étage - 1
Taille
3 100 pi²
Terme
Négociable
Taux de location
20,89 $ CAD/pi²/an
1,74 $ CAD/pi²/mois
64 744 $ CAD/an
5 395 $ CAD/mois
Utilisation de l’espace
Industriel
Aménagement
selon spécifications
Disponible
Maintenant
6900 S Priest Dr - 1er étage - 2
Taille
3 081 pi²
Terme
Négociable
Taux de location
20,89 $ CAD/pi²/an
1,74 $ CAD/pi²/mois
64 347 $ CAD/an
5 362 $ CAD/mois
Utilisation de l’espace
Industriel
Aménagement
construction partielle
Disponible
Maintenant
6900 S Priest Dr - 1er étage - 1
| Taille | 3 100 pi² |
| Terme | Négociable |
| Taux de location | 20,89 $ CAD/pi²/an |
| Utilisation de l’espace | Industriel |
| Aménagement | selon spécifications |
| Disponible | Maintenant |
Reception, 1 Office, 2 Restrooms, (1) GL Door
- Le taux de location ne comprend pas les services publics, les services de bâtiment ou les dépenses immobilières.
- 1 accès plain-pied
- Aire de réception
1 de 6
Vidéos
Visite extérieure 3D Matterport
Visite 3D Matterport
Photos
Vue depuis la rue
Rue
Carte
6900 S Priest Dr - 1er étage - 2
| Taille | 3 081 pi² |
| Terme | Négociable |
| Taux de location | 20,89 $ CAD/pi²/an |
| Utilisation de l’espace | Industriel |
| Aménagement | construction partielle |
| Disponible | Maintenant |
Reception, 2 Offices, Bull Pen, Restroom, (1) GL Door, (1) Dock High Door
- Le taux de location ne comprend pas les services publics, les services de bâtiment ou les dépenses immobilières.
- 1 accès plain-pied
- 1 quai de chargement
- Aire de réception
Sélectionner des locataires à cette propriété
- Étage
- Nom du locataire
- Secteur
- 1ᵉʳ
- Any Credit Auto Sales
- Détaillant
- 1ᵉʳ
- Gym Source
- Détaillant
- 1ᵉʳ
- Huss Brewing Co LLC
- Fabrication
- 1ᵉʳ
- Savage Air Conditioning
- Construction
- 1ᵉʳ
- U FOYE SHJK
- -
1 1
Assez praticable à pied
40/100
Exceptionnellement facile d’accès en voiture
100/100
Transports en commun limités
30/100
Moyennement praticable en vélo
60/100
1 de 4
Vidéos
Visite extérieure 3D Matterport
Visite 3D Matterport
Photos
Vue depuis la rue
Rue
Carte
1 de 1
Présenté par
Mineral Road Industrial Center | Tempe, AZ 85283
Vous êtes déjà membre? Connectez-vous
Hmm, il semble y avoir eu une erreur lors de l’envoi de votre message. Veuillez réessayer.
Merci! Votre message a été envoyé.






