Votre courriel a été envoyé.
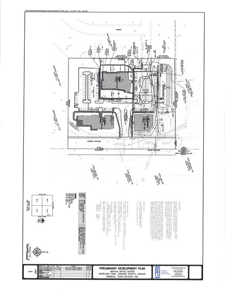
15220 Metcalf Ave
Overland Park, KS 66223
Terrain À vendre
·
0,96 AC


Certaines informations ont été traduites automatiquement.
Faits saillants de l'investissement
- Façades Metcalf.
- Peut construire jusqu'à 15 349 SF, bâtiment de 2 étages.
- Excellent emplacement pour un usage médical.
- The surrounding area supports a mix of offices and services, making this a compelling site for growth and long-term presence.
Résumé de l'annonce
Faits sur la propriété
| Type de vente | Investissement | Sous-type de propriété | Terrain commercial |
| Nombre de lots | 1 | Utilisation proposée | |
| Type de propriété | Terrain | Taille totale du lot | 0,96 AC |
| Zonage | CP-O | ||
| Type de vente | Investissement |
| Nombre de lots | 1 |
| Type de propriété | Terrain |
| Sous-type de propriété | Terrain commercial |
| Utilisation proposée | |
| Taille totale du lot | 0,96 AC |
| Zonage | CP-O |
1 Lot disponible
Lot 3
| Prix | 1 036 868 $ CAD | Taille du lot | 0,96 AC |
| Prix par AC | 1 080 070,53 $ CAD |
| Prix | 1 036 868 $ CAD |
| Prix par AC | 1 080 070,53 $ CAD |
| Taille du lot | 0,96 AC |
Ideal for medical or professional office use, the site allows for the development of a two-story building up to 15,349 square feet.
Description
Lot 3 at Veritas Office Park offers a 0.96-acre (42,003 SF) CP-O pad site with prime Metcalf Avenue frontage, providing excellent visibility and accessibility. Ideal for medical or professional office use, the site allows for the development of a two-story building up to 15,349 square feet. With zoning in place and 38 dedicated parking spaces, it’s a strong opportunity for healthcare providers or businesses seeking a strategic location in a well-established commercial corridor. The surrounding area supports a mix of offices and services, making this a compelling site for growth and long-term presence.
Impôts fonciers
| Numéro de lot | NF251407-3001 | Évaluation des bâtiments | 0 $ CAD |
| Évaluation du terrain | 54 $ CAD | Évaluation totale | 54 $ CAD |
