Se Connecter/S’inscrire
Votre courriel a été envoyé.
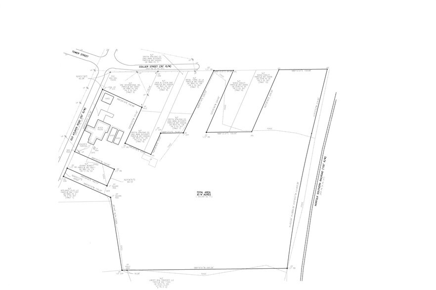
1524 Old Atlanta Rd - IOS Development Opportunity - Griffin, GA Lot • Terrain industriel • 8,14 Acres • Griffin, GA 30223



Certaines informations ont été traduites automatiquement.
Faits saillants de l'investissement
- +/- 8.14 acres of industrial land with multiple uses — i.e., IOS, laydown yard, redevelopment, salvage/recycling.
- Recent site improvements include a renovated building with a cleared yard.
- The upstairs features the owner's suite with a private bathroom.
- Phase 1 and the survey are available.
- The building's main floor includes three attached garages and a main office space that can be easily divided into two separate rooms
- The property is 28 miles from Hartsfield-Jackson Atlanta International Airport.
Résumé de l'annonce
Sands Investment Group is pleased to exclusively offer for sale or for lease the IOS Development Opportunity at 1524 Old Atlanta Rd in Griffin, GA. The offering includes a fully renovated 1,888 SF structure suitable for a variety of uses. Strategically positioned with convenient access to US 19/41, the property is zoned for Planned Industrial Development (PID), making it ideal for future growth and development.
Faits sur la propriété
1 Lot disponible
Lot
| Taille du lot | 8,14 AC |
| Taille du lot | 8,14 AC |
Description
The property consists of 8.14 acres of industrial land located at 1524 Old Atlanta Road in Griffin, Georgia. It is zoned for Planned Industrial Development and includes a renovated building with office space and attached garages. The site is positioned near US 19/41, approximately 4 miles from Downtown Griffin and 36 miles from Downtown Atlanta. Hartsfield-Jackson Atlanta International Airport is located about 28 miles from the property.
1 1
Assez practicable à pied
50/100
Exceptionnellement facile d'accès en voiture
100/100
Plutôt praticable en vélo
40/100
1 de 7
Vidéos
Visite extérieure 3D Matterport
Visite 3D Matterport
Photos
Vue depuis la rue
Rue
Carte
1 de 1
Présenté par
1524 Old Atlanta Rd - IOS Development Opportunity - Griffin, GA
Vous êtes déjà membre? Connectez-vous
Hmm, il semble y avoir eu une erreur lors de l’envoi de votre message. Veuillez réessayer.
Merci! Votre message a été envoyé.
