Se Connecter/S’inscrire
Votre courriel a été envoyé.
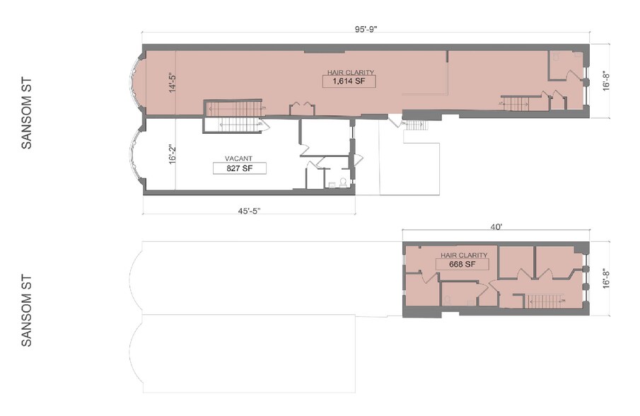
1532-1534 Sansom St
Philadelphia, PA 19102
1532-34 Sansom St · Commerce de détail Propriété À louer
·
2 282 pi²


Certaines informations ont été traduites automatiquement.
FAITS SAILLANTS
- Situé au coeur de Rittenhouse
FAITS SUR LA PROPRIÉTÉ
| Superficie totale disponible | 2 282 pi² | Superficie commerciale brute | 7 134 pi² |
| Type de propriété | Commerce de détail | Année de construction | 1920 |
| Sous-type de propriété | Bien à usage mixte |
| Superficie totale disponible | 2 282 pi² |
| Type de propriété | Commerce de détail |
| Sous-type de propriété | Bien à usage mixte |
| Superficie commerciale brute | 7 134 pi² |
| Année de construction | 1920 |
À PROPOS DE LA PROPRIÉTÉ
2,282 SF available for lease
1 de 6
VIDÉOS
VISITE EXTÉRIEURE 3D MATTERPORT
VISITE 3D MATTERPORT
PHOTOS
VUE DEPUIS LA RUE
RUE
CARTE
