Votre courriel a été envoyé.
Certaines informations ont été traduites automatiquement.
Faits saillants
- 15’8” clear height with five 12’ x 12’ grade-level doors.
- Convenient access to I-75 and I-96 for regional connectivity.
- Situated on a 2.91-acre site with ample parking.
Caractéristiques
Tous les espaces disponibles(1)
Afficher les taux de location en
- Espace
- Taille
- Terme
- Taux de location
- Utilisation de l’espace
- État
- Disponible
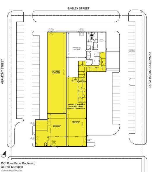
This industrial property offers 6,000 to 28,274 square feet of flexible space for lease in Detroit. The building includes approximately 3,808 square feet of office space and features a clear height of 15’8”. It is equipped with five 12’ x 12’ grade-level doors, providing excellent functionality for a variety of industrial and distribution uses. The property sits on a 2.91-acre site, allowing for ample parking and outdoor storage options. Located near major highways, including I-75 and I-96, the site offers convenient access to Detroit’s core business districts and regional transportation routes. This location is well-suited for manufacturing, warehousing, or service-based operations seeking a central Detroit address with strong logistical advantages.
- Taux de location inscrit plus part proportionnelle des services publics
- Espace en excellent état
- Comprend 3 808 pi² d’espace de bureau dédié
| Espace | Taille | Terme | Taux de location | Utilisation de l’espace | État | Disponible |
| 1er étage | 6 000 à 28 274 pi² | Négociable | 9,70 $ CAD/pi²/an 0,81 $ CAD/pi²/mois 274 164 $ CAD/an 22 847 $ CAD/mois | Industriel | construction complète | Maintenant |
1er étage
| Taille |
| 6 000 à 28 274 pi² |
| Terme |
| Négociable |
| Taux de location |
| 9,70 $ CAD/pi²/an 0,81 $ CAD/pi²/mois 274 164 $ CAD/an 22 847 $ CAD/mois |
| Utilisation de l’espace |
| Industriel |
| État |
| construction complète |
| Disponible |
| Maintenant |
1er étage
| Taille | 6 000 à 28 274 pi² |
| Terme | Négociable |
| Taux de location | 9,70 $ CAD/pi²/an |
| Utilisation de l’espace | Industriel |
| État | construction complète |
| Disponible | Maintenant |
This industrial property offers 6,000 to 28,274 square feet of flexible space for lease in Detroit. The building includes approximately 3,808 square feet of office space and features a clear height of 15’8”. It is equipped with five 12’ x 12’ grade-level doors, providing excellent functionality for a variety of industrial and distribution uses. The property sits on a 2.91-acre site, allowing for ample parking and outdoor storage options. Located near major highways, including I-75 and I-96, the site offers convenient access to Detroit’s core business districts and regional transportation routes. This location is well-suited for manufacturing, warehousing, or service-based operations seeking a central Detroit address with strong logistical advantages.
- Taux de location inscrit plus part proportionnelle des services publics
- Comprend 3 808 pi² d’espace de bureau dédié
- Espace en excellent état
Aperçu de la propriété
The property is an industrial facility located at 1551 Rosa Parks Boulevard in Detroit, Michigan. It includes warehouse and office space, multiple grade-level doors, and on-site parking. The site is positioned near major highways, including I-75 and I-96, providing access to Detroit’s central business district and surrounding areas.
Faits sur l’installation entrepôt
Sélectionner des locataires
- Étage
- Nom du locataire
- Secteur
- 1ᵉʳ
- Compas Technology Solutions
- Information
- 1ᵉʳ
- Paxahau
- Arts, divertissement et loisirs
- 1ᵉʳ
- Teen Street Skills
- Services éducatifs
Présenté par
1551 Rosa Parks Blvd
Hmm, il semble y avoir eu une erreur lors de l’envoi de votre message. Veuillez réessayer.
Merci! Votre message a été envoyé.






