Votre courriel a été envoyé.
Rockfield Business Center Irvine, CA 92618 2 500–5 000 pi² d'espace disponible • Industriel



Certaines informations ont été traduites automatiquement.
Faits saillants du parc
- Prime Location Close to Irvine Spectrum, Immediately Access to 5/405
Faits sur le parc
Caractéristiques et commodités
- Accès 24 heures
- Climatisation
- Détecteur de fumée
Tous les espaces disponibles(1)
Afficher les taux de location en
- Espace
- Taille
- Terme
- Taux de location
- Utilisation de l’espace
- Aménagement
- Disponible
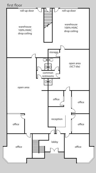
Up to 5,000 Sqft Flex Office/Industrial Warehouse/Storage Space Available For Lease *Excellent Location Near Irvine Spectrum, Immediate Access to 5 Fwy/405 Fwy/SR133 *One 2500 Sqft Warehouse Space Includes 360 Sqft Office, Kitchen, A 14-16" Ground Roll Up Loading Door *One 2500 Sqft Office/Warehouse Includes A Large Reception, Four Private Offices, Open Lab Area/Show Room, Kitchen, Electrical Room/Storage Room, Warehouse With A 14'-16' Ground Roll Up Loading Door. Open Lab Area Easy To Covert As An Additional Warehouse Space. *These Two Space Can Be Coverted to One ~5000 Sqft Flex To Accommodate Your Needs *Parking: 3:1000 Ratio - Free Surface *Asking Price: $1.55 (NNN) + $0.40 (CAM) Negotiable!!! *Prime Location Close to Irvine Spectrum, Immediately Access to 5/405/133 Fwy ***Please Call/Text 310-780-5688 For Detail and Showing, Broker/Agent are welcome
- Le taux de location ne comprend pas les services publics, les services de bâtiment ou les dépenses immobilières.
- Air central et chauffage
- Salle de bains privée
- Entreposage sécurisé
- Éclairage encastré
- Espace en excellent état
- Aire de réception
- Laboratoire
- Plafond suspendu
- Lumière naturelle
| Espace | Taille | Terme | Taux de location | Utilisation de l’espace | Aménagement | Disponible |
| 1er étage | 2 500 à 5 000 pi² | Négociable | 25,48 $ CAD/pi²/an 2,12 $ CAD/pi²/mois 127 386 $ CAD/an 10 615 $ CAD/mois | Industriel | - | Maintenant |
15540 Rockfield Blvd - 1er étage
15540 Rockfield Blvd - 1er étage
| Taille | 2 500 à 5 000 pi² |
| Terme | Négociable |
| Taux de location | 25,48 $ CAD/pi²/an |
| Utilisation de l’espace | Industriel |
| Aménagement | - |
| Disponible | Maintenant |
Up to 5,000 Sqft Flex Office/Industrial Warehouse/Storage Space Available For Lease *Excellent Location Near Irvine Spectrum, Immediate Access to 5 Fwy/405 Fwy/SR133 *One 2500 Sqft Warehouse Space Includes 360 Sqft Office, Kitchen, A 14-16" Ground Roll Up Loading Door *One 2500 Sqft Office/Warehouse Includes A Large Reception, Four Private Offices, Open Lab Area/Show Room, Kitchen, Electrical Room/Storage Room, Warehouse With A 14'-16' Ground Roll Up Loading Door. Open Lab Area Easy To Covert As An Additional Warehouse Space. *These Two Space Can Be Coverted to One ~5000 Sqft Flex To Accommodate Your Needs *Parking: 3:1000 Ratio - Free Surface *Asking Price: $1.55 (NNN) + $0.40 (CAM) Negotiable!!! *Prime Location Close to Irvine Spectrum, Immediately Access to 5/405/133 Fwy ***Please Call/Text 310-780-5688 For Detail and Showing, Broker/Agent are welcome
- Le taux de location ne comprend pas les services publics, les services de bâtiment ou les dépenses immobilières.
- Espace en excellent état
- Air central et chauffage
- Aire de réception
- Salle de bains privée
- Laboratoire
- Entreposage sécurisé
- Plafond suspendu
- Éclairage encastré
- Lumière naturelle
Plan de site
Sélectionner des locataires à cette propriété
- Étage
- Nom du locataire
- Secteur
- 1ᵉʳ
- Calico Building Service Inc
- Services
Aperçu du parc
Please call/text 310-780-5688 to show
Présenté par
Rockfield Business Center
Rockfield Business Center | Irvine, CA 92618
Hmm, il semble y avoir eu une erreur lors de l’envoi de votre message. Veuillez réessayer.
Merci! Votre message a été envoyé.
