Se Connecter/S’inscrire
Votre courriel a été envoyé.
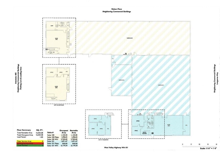
15666 W Valley Hwy
Tukwila, WA 98188
Commerce de détail Propriété À louer
·
16 503 pi²


Certaines informations ont été traduites automatiquement.
Faits sur l’installation Fabrication
Taille du bâtiment
16 503 pi²
Taille du lot
0,56 AC
Année de construction
1975
Construction
Métal
Zonage
TUC - Athletic/health
clubs, bar/nightclub,
brewery, business
services, general retail
Aperçu de la propriété
16,503 SF Total Rentable Area with High Identity Freestanding Building Available for Lease in Tukwila
Caractéristiques
Baies d’entrée
3
Places de stationnement standard
10
1 de 3
Vidéos
Visite extérieure 3D Matterport
Visite 3D Matterport
Photos
Vue depuis la rue
Rue
Carte
