Votre courriel a été envoyé.
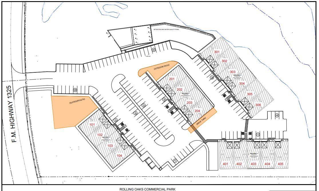
Rolling Oaks Commercial Park 15819 Farm to Market 1325 rd 1 800–7 200 pi² d'espace disponible • Commerce de détail • Austin, TX 78728



Certaines informations ont été traduites automatiquement.
Faits saillants
- Fantastic Accessibility to Austin/Round Rock Area
- Option to Lease Outside Patio Area
- Highly Visible Location with almost 25K cars/day
- Option to Have Drive-Through
Disponibilité de l’espace (1)
Afficher les taux de location en
- Espace
- Taille
- Terme
- Taux de location
- Type de loyer
| Espace | Taille | Terme | Taux de location | Type de loyer | ||
| 1er étage | 1 800 à 7 200 pi² | 3-10 ans | 43,92 $ CAD/pi²/an 3,66 $ CAD/pi²/mois 316 219 $ CAD/an 26 352 $ CAD/mois | Loyer hypernet |
1er étage
Rolling Oaks Commercial Park’s modern designed shell suites offer tenants tremendous flexibility to customize your Flex/Office space. We are offering spaces to lease from 1800 sqft up to 7,200 sqft. Each 1800 sqft unit has a 14'x12' frosted glass rollup door and a glass storefront. These flex spaces are in building 4 which is in the building away from the street but still gets tremendous visibility front FM 1325. The expansive front roof overhang is elevated 24ft above the ground and gently slopes to the back with a roof height of 21ft. The design allows for the option to add a reinforced concrete mezzanine level which can result in 33% additional usable space in the unit at an additional rental cost. The dramatic window line makes quite the impression offering the ability to showcase your business products and services. The buildings are energy efficient with perimeter wall insulation and allow for tons of natural light from the large building front/rear window system. The interior allows for almost any custom configuration for your business. Call/email/text for specific pricing on units/buildings.
- Le taux de location ne comprend pas les services publics, les services de bâtiment ou les dépenses immobilières.
- Fantastic Accessibility to Austin/Round Rock Area
- High Speed Internet Access
- Highly Visible Location with almost 25K cars/day
- 3 Phase Power
- Optional Reinforced Concrete Mezzanine Available
- Loop Around Development for Easy Semi Access
Types de loyers
Le type et le montant du loyer que le locataire (preneur) est tenu de payer au propriétaire (bailleur) sur la durée du bail sont négociés avant la signature du bail par les deux parties. Le type de loyer varie selon les services fournis. Par exemple, le prix d’un loyer hypernet est habituellement inférieur à celui d’un bail à service complet puisque le locataire est tenu d’assumer des dépenses additionnelles par rapport au loyer de base. Contactez le courtier inscripteur pour tout connaître sur les frais connexes et additionnels associés à chaque type de loyer.
1. Service complet: Un taux de location qui comprend des services standards liés à l’immeuble fournis par le propriétaire dans le cadre d’une location annuelle de base.
2. Loyer supernet: Le locataire paie seulement deux des frais de l’immeuble. Le propriétaire et le locataire déterminent ces frais spécifiques avant la signature du bail.
3. Loyer hypernet: Un bail en vertu duquel le locataire est responsable de tous les frais liés à sa part proportionnelle d’occupation de l’immeuble.
4. Brut modifié: Le loyer brut modifié désigne un type général de taux de location dans lequel le locataire est habituellement responsable de sa part proportionnelle d’un ou de plusieurs frais. C’est le propriétaire qui paie les frais restants. Considérez les structures tarifaires courantes suivantes applicables aux loyers bruts modifiés: 4. Plus les services: Un type de bail brut modifié suivant lequel le locataire est responsable de sa part proportionnelle des coûts des services publics, en plus du loyer. 4. Plus le nettoyage: Un type de bail brut modifié suivant lequel le locataire est responsable de sa part proportionnelle des coûts de nettoyage, en plus du loyer. 4. Plus l'électricité: Un type de bail brut modifié suivant lequel le locataire est responsable de sa part proportionnelle des coûts d’électricité, en plus du loyer. 4. Plus l’électricité et le nettoyage: Un type de bail brut modifié dans lequel le locataire est responsable de sa part proportionnelle des coûts d’électricité et de nettoyage, en plus du loyer. 4. Plus les services publics et le nettoyage: Un type de bail brut modifié dans lequel le locataire est responsable de sa part proportionnelle des coûts des services publics et de nettoyage, en plus du loyer. 4. Bail industriel brut: Un type de bail brut modifié dans lequel le locataire paie un ou plusieurs des frais, en plus du loyer. Le propriétaire et le locataire déterminent ces frais spécifiques avant la signature du bail.
5. L’électricité est à la charge du locataire: Le propriétaire paie pour tous les services et le locataire est responsable de sa propre utilisation de l’éclairage et des prises électriques dans l’espace qu’il occupe.
6. Négociable ou sur demande: Cette option est utilisée lorsque le contact de location ne précise pas le type de loyer ou de service.
7. À déterminer: À déterminer ; utilisé pour les immeubles dont le type de services ou de loyer n’est pas connu, souvent quand l’immeuble n’est pas encore construit.
Faits sur la propriété
| Superficie totale disponible | 7 200 pi² | Superficie commerciale brute | 10 800 pi² |
| Min. divisible | 1 800 pi² | Année de construction | 2025 |
| Type de propriété | Commerce de détail | Ratio de stationnement | 4,68/1 000 pi² |
| Sous-type de propriété | Restaurant |
| Superficie totale disponible | 7 200 pi² |
| Min. divisible | 1 800 pi² |
| Type de propriété | Commerce de détail |
| Sous-type de propriété | Restaurant |
| Superficie commerciale brute | 10 800 pi² |
| Année de construction | 2025 |
| Ratio de stationnement | 4,68/1 000 pi² |
À propos de la propriété
Le parc commercial Rolling Oaks propose des suites modernes au design épuré offrant aux locataires une flexibilité exceptionnelle pour personnaliser leur espace de vente au détail, showroom, restaurant ou bureau polyvalent. Nous proposons des espaces à louer allant de 1 800 pi² à 7 200 pi². Certains unités incluent même la possibilité d’aménager un espace patio extérieur adjacent, idéal pour un restaurant. Le surplomb du toit à l’avant s’élève à 24 pieds au-dessus du sol et descend doucement vers l’arrière avec une hauteur de toit de 21 pieds. La conception permet l’ajout d’un niveau mezzanine en béton armé, offrant jusqu’à 33 % d’espace utilisable supplémentaire dans l’unité, moyennant un coût locatif additionnel. La ligne de fenêtres impressionnante attire l’attention et offre une excellente opportunité de mettre en valeur vos produits et services. Les bâtiments sont écoénergétiques grâce à l’isolation des murs périphériques et bénéficient d’une abondance de lumière naturelle grâce au système de grandes fenêtres à l’avant et à l’arrière. L’intérieur est conçu pour permettre presque toutes les configurations personnalisées adaptées à votre entreprise. Contactez-nous par téléphone, courriel ou texto pour obtenir les prix spécifiques des unités ou des bâtiments.
- Accès 24 heures
- Mezzanine
- Affichage
- CVCA contrôlé par le locataire
- Service au volant
- Accessible aux fauteuils roulants
- Affichage sur monument
- Internet par fibre optique
Principaux détaillants à proximité
Présenté par
Rolling Oaks Commercial Park | 15819 Farm to Market 1325 rd
Hmm, il semble y avoir eu une erreur lors de l’envoi de votre message. Veuillez réessayer.
Merci! Votre message a été envoyé.



