Votre courriel a été envoyé.
Gotham Plaza 159 E 125th St 17 206 pi² d'espace disponible • Bureau/Commerce de détail • 4 étoiles • New York, NY 10035


Certaines informations ont été traduites automatiquement.
Faits saillants
- Espace de vente au détail et bureau flexible avec disponibilité à l'étage entier dans une propriété à usage mixte de premier choix.
- Faites l'expérience d'un plan d'étage ouvert avec des plafonds élevés et d'une indemnité de TI pour les locataires qualifiés, idéal pour les bureaux, les commerces de détail et les utilisations à but non lucratif.
- Les caractéristiques de l'édifice comprennent des commerces de détail au rez-de-chaussée avec des locataires nationaux tels que Bank of America, un stationnement sur place, un accès 24 heures sur 24 et un service d'ascenseur.
- Situé le long d'un corridor commercial important de Harlem avec une circulation piétonnière intense et une accessibilité facile aux autobus, au métro et au Metro-North Railroad.
Tous les espaces disponibles(1)
Afficher les taux de location en
- Espace
- Taille
- Terme
- Taux de location
- Utilisation de l’espace
- Aménagement
- Disponible
New to market. Suitable for both office or retail. Floor serviced by both elevators and escalator. TI available for qualified Tenants. Leasehold condominium opportunity is possible for non-profits. Parking in building. Subway and Metro North Railroad nearby. 24/7 day access. High ceilings.
- Entièrement construit comme Bureau standard
- Convient pour 87 à 277 personnes
- Climatisation centrale
- À long terme
- Disposition du plan d’étage ouverte en général
- Espace en excellent état
- Hauts plafonds
| Espace | Taille | Terme | Taux de location | Utilisation de l’espace | Aménagement | Disponible |
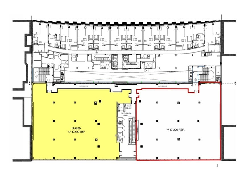
| 3e étage | 17 206 pi² | Négociable | Sur demande Sur demande Sur demande Sur demande | Bureau/Commerce de détail | construction complète | Maintenant |
3e étage
| Taille |
| 17 206 pi² |
| Terme |
| Négociable |
| Taux de location |
| Sur demande Sur demande Sur demande Sur demande |
| Utilisation de l’espace |
| Bureau/Commerce de détail |
| Aménagement |
| construction complète |
| Disponible |
| Maintenant |
3e étage
| Taille | 17 206 pi² |
| Terme | Négociable |
| Taux de location | Sur demande |
| Utilisation de l’espace | Bureau/Commerce de détail |
| Aménagement | construction complète |
| Disponible | Maintenant |
New to market. Suitable for both office or retail. Floor serviced by both elevators and escalator. TI available for qualified Tenants. Leasehold condominium opportunity is possible for non-profits. Parking in building. Subway and Metro North Railroad nearby. 24/7 day access. High ceilings.
- Entièrement construit comme Bureau standard
- Disposition du plan d’étage ouverte en général
- Convient pour 87 à 277 personnes
- Espace en excellent état
- Climatisation centrale
- Hauts plafonds
- À long terme
Aperçu de la propriété
Le 159 E 125th Street est une propriété commerciale à usage mixte idéalement située le long d'une grande voie au cœur de Harlem. La propriété à trois niveaux contient 122 900 pieds carrés du côté nord de la 125e rue Est, entre l'avenue Lexington et la Third Avenue. Les locataires nationaux de détail, tels que Taco Bell, Foot Locker et Bank of America, sont situés au rez-de-chaussée, et les étages supérieurs sont réservés aux bureaux, aux commerces de détail et aux espaces résidentiels. Les caractéristiques de la propriété comprennent l'accès à l'immeuble 24 heures sur 24, un parking sur place, de hauts plafonds et la climatisation centrale. L'ensemble du troisième étage est disponible à la location avec des divisions raisonnables prises en considération. Cet espace, desservi par un escalator et des ascenseurs, est idéal pour les bureaux professionnels, les commerces de détail et les organismes sans but lucratif. Le corridor de la 125e rue va de Broadway à Third Avenue et est l'épicentre de la culture et de l'architecture de Harlem. Avec une nouvelle vague de locataires commerciaux dans la région, il fait maintenant l'objet d'une revitalisation et d'un développement considérables. Le 159 E 125th Street est facilement accessible en voiture, plusieurs lignes de métro, autobus et le chemin de fer Metro-North Railroad.
- Banque
- Restaurant
Faits sur la propriété
Brochure marketing
Commodités à proximité
Restaurants |
|||
|---|---|---|---|
| Baskin Robbins | - | - | 2 Min. de marche |
| Dunkin' | Café | - | 2 Min. de marche |
| Q & N Food | Américain | $ | 3 Min. de marche |
Commerce de détail |
||
|---|---|---|
| Apple Bank | Banque | dans le bâtiment |
| Foot Locker | Chaussures | dans le bâtiment |
| Bank of America | Banque | dans le bâtiment |
| Health Mart Pharmacy | Pharmacie | 6 Min. de marche |
| Foodtown | Supermarché | 6 Min. de marche |
Hôtels |
|
|---|---|
| aloft Hotel |
125 Pièces
3 route min.
|
| Renaissance |
211 Pièces
3 route min.
|
| Best Western Plus |
101 Pièces
4 route min.
|
Agent de location
Barry Goodman, Senior Managing Director
À titre de représentant des propriétaires, Goodman a agi au nom de nombreux propriétaires et propriétés de premier plan, dont The Milstein Organization, Lawrence Ruben Company, The New York Power Authority, The Halpern Family, The Related Companies et Rose Associates. Parmi les représentations les plus importantes de Goodman figurent le 1 Dag Hammarskjold Plaza, le 625 Madison Avenue, le 1372 Broadway, le 600 Madison Avenue, le 123 Main Street, White Plains, les bureaux du Continental (883 Avenue of the Americas) et le 451 Park Avenue South.
Goodman représente un groupe diversifié de locataires, y compris des clients des secteurs de la finance, de la diplomatie étrangère, des organismes sans but lucratif, de la santé, du divertissement, du droit et du commerce de détail. Parmi les clients les plus remarquables avec lesquels il a travaillé figurent Emigrant Savings Bank, CIGNA, les gouvernements du Pérou, de l'Équateur, du Guatemala, du Panama et du Kenya, la New York Power Authority, Lifespire Inc., l'Université Columbia, l'hôpital Mount Sinai, l'hôpital Montefiore, la Recording Industry Association of America, Bed Bath & Beyond, Dewey Ballentine, Raymond James Financial, l'Association américaine des personnes retraitées, Lan Chile Airlines, Avianca Airlines, La Fondation Charles Wang, la famille Benetton et Cipriani.
Goodman a également organisé de nombreuses ventes, notamment la cession du 1811 Metzerott Road, un complexe multifamilial de 90 logements situé à Adelphi, au Maryland. Il a conclu des ventes à Berkshire Bank pour son siège social à New York, le New York Road Runners Club, la vente du 1180 Morris Park Avenue à l'hôpital Montefiore, le consulat du Pérou à New York, la Mission des Émirats arabes unis auprès des Nations Unies, l'Oaktree Plaza à Long Island et la vente d'un condominium commercial au gouvernement de l'Équateur au 800 Second Avenue.
Goodman est membre du Real Estate Board of New York, du New York Real Estate Board Plaza Committee, de l'Americas Society et de la division Young Men's Real Estate de l'Albert Einstein College of Medicine. Il a siégé au sous-comité sur le financement budgétaire et la fiscalité du Comité consultatif sur le développement économique du maire et siège au conseil consultatif de Neighborhood Housing Services of New York et au conseil d'administration du Shield Institute.
À propos du propriétaire
Présenté par
Gotham Plaza | 159 E 125th St
Hmm, il semble y avoir eu une erreur lors de l’envoi de votre message. Veuillez réessayer.
Merci! Votre message a été envoyé.



