Votre courriel a été envoyé.
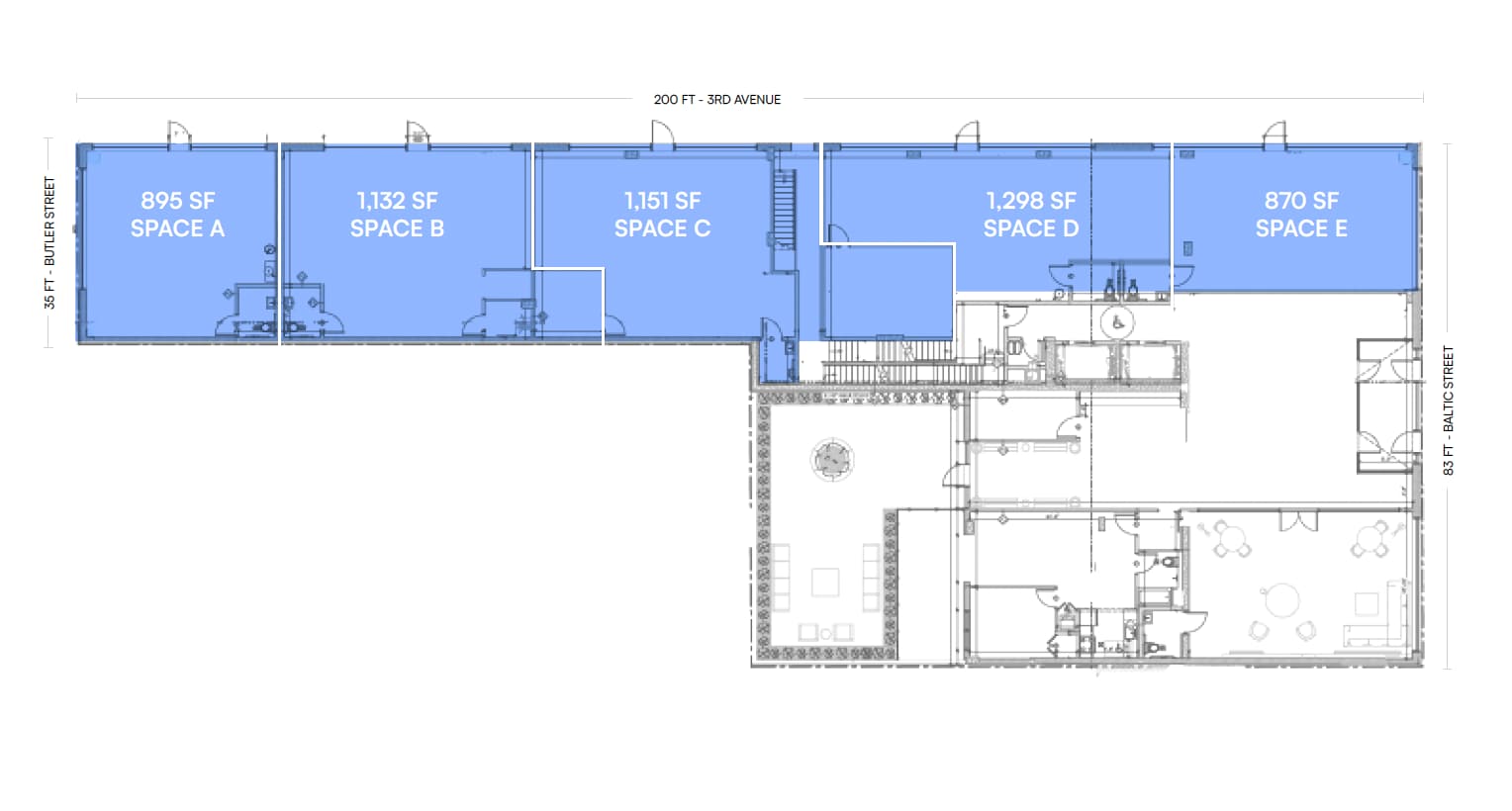
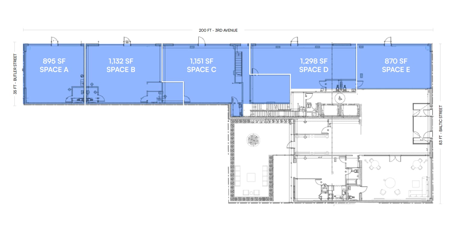
159 Third Ave 870–5 346 pi² d'espace disponible • Commerce de détail • 4 étoiles • Brooklyn, NY 11217



Certaines informations ont été traduites automatiquement.
FAITS SAILLANTS
- Located at the base of 96 newly built apartment buildings
- Steps from Union Street subway station with D, N, R service
- Positioned in the heart of Gowanus near Park Slope and Carroll Gardens
- Surrounded by high-traffic lifestyle and service tenants
- Flexible zoning supports a wide range of retail uses
TOUS LES ESPACES DISPONIBLES(5)
Afficher les taux de location en
- ESPACE
- TAILLE
- TERME
- TAUX DE LOCATION
- UTILISATION DE L’ESPACE
- ÉTAT
- DISPONIBLE
Prime Retail Opportunity in Brooklyn's Newest Apartment Buildings
- Partiellement construit comme Espace de commerce de détail standard
- Situé en ligne avec d’autres commerces de détail
Prime Retail Opportunity in Brooklyn's Newest Apartment Buildings
- Partiellement construit comme Espace de commerce de détail standard
- Space B + Space C: 2,300 SF
- Situé en ligne avec d’autres commerces de détail
Prime Retail Opportunity in Brooklyn's Newest Apartment Buildings
- Partiellement construit comme Espace de commerce de détail standard
- Space B + Space C: 2,300 SF
- Situé en ligne avec d’autres commerces de détail
Prime Retail Opportunity in Brooklyn's Newest Apartment Buildings
- Partiellement construit comme Espace de commerce de détail standard
- Situé en ligne avec d’autres commerces de détail
Prime Retail Opportunity in Brooklyn's Newest Apartment Buildings
- Partiellement construit comme Espace de commerce de détail standard
- Situé en ligne avec d’autres commerces de détail
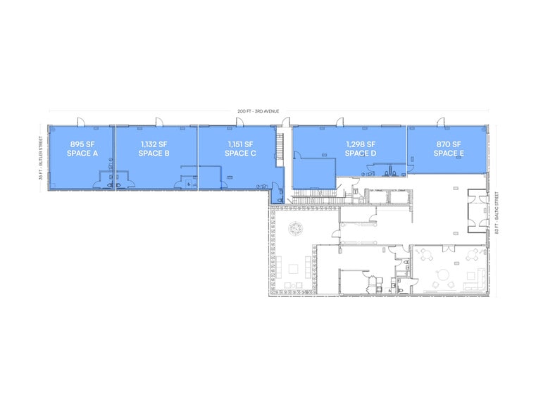
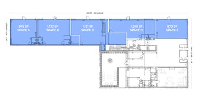
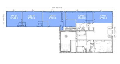
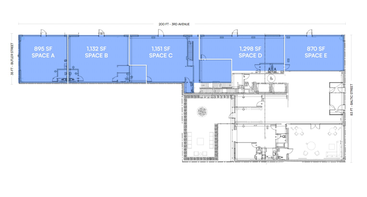
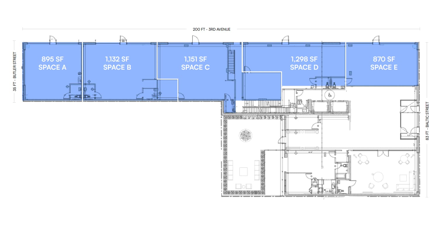
| Espace | Taille | Terme | Taux de location | Utilisation de l’espace | État | Disponible |
| 1er étage, ste A | 895 pi² | Négociable | Sur demande Sur demande Sur demande Sur demande | Commerce de détail | construction partielle | Maintenant |
| 1er étage, ste B | 1 132 pi² | Négociable | Sur demande Sur demande Sur demande Sur demande | Commerce de détail | construction partielle | Maintenant |
| 1er étage, ste C | 1 151 pi² | Négociable | Sur demande Sur demande Sur demande Sur demande | Commerce de détail | construction partielle | Maintenant |
| 1er étage, ste D | 1 298 pi² | Négociable | Sur demande Sur demande Sur demande Sur demande | Commerce de détail | construction partielle | Maintenant |
| 1er étage, ste E | 870 pi² | Négociable | Sur demande Sur demande Sur demande Sur demande | Commerce de détail | construction partielle | Maintenant |
1er étage, ste A
| Taille |
| 895 pi² |
| Terme |
| Négociable |
| Taux de location |
| Sur demande Sur demande Sur demande Sur demande |
| Utilisation de l’espace |
| Commerce de détail |
| État |
| construction partielle |
| Disponible |
| Maintenant |
1er étage, ste B
| Taille |
| 1 132 pi² |
| Terme |
| Négociable |
| Taux de location |
| Sur demande Sur demande Sur demande Sur demande |
| Utilisation de l’espace |
| Commerce de détail |
| État |
| construction partielle |
| Disponible |
| Maintenant |
1er étage, ste C
| Taille |
| 1 151 pi² |
| Terme |
| Négociable |
| Taux de location |
| Sur demande Sur demande Sur demande Sur demande |
| Utilisation de l’espace |
| Commerce de détail |
| État |
| construction partielle |
| Disponible |
| Maintenant |
1er étage, ste D
| Taille |
| 1 298 pi² |
| Terme |
| Négociable |
| Taux de location |
| Sur demande Sur demande Sur demande Sur demande |
| Utilisation de l’espace |
| Commerce de détail |
| État |
| construction partielle |
| Disponible |
| Maintenant |
1er étage, ste E
| Taille |
| 870 pi² |
| Terme |
| Négociable |
| Taux de location |
| Sur demande Sur demande Sur demande Sur demande |
| Utilisation de l’espace |
| Commerce de détail |
| État |
| construction partielle |
| Disponible |
| Maintenant |
1er étage, ste A
| Taille | 895 pi² |
| Terme | Négociable |
| Taux de location | Sur demande |
| Utilisation de l’espace | Commerce de détail |
| État | construction partielle |
| Disponible | Maintenant |
Prime Retail Opportunity in Brooklyn's Newest Apartment Buildings
- Partiellement construit comme Espace de commerce de détail standard
- Situé en ligne avec d’autres commerces de détail
1er étage, ste B
| Taille | 1 132 pi² |
| Terme | Négociable |
| Taux de location | Sur demande |
| Utilisation de l’espace | Commerce de détail |
| État | construction partielle |
| Disponible | Maintenant |
Prime Retail Opportunity in Brooklyn's Newest Apartment Buildings
- Partiellement construit comme Espace de commerce de détail standard
- Situé en ligne avec d’autres commerces de détail
- Space B + Space C: 2,300 SF
1er étage, ste C
| Taille | 1 151 pi² |
| Terme | Négociable |
| Taux de location | Sur demande |
| Utilisation de l’espace | Commerce de détail |
| État | construction partielle |
| Disponible | Maintenant |
Prime Retail Opportunity in Brooklyn's Newest Apartment Buildings
- Partiellement construit comme Espace de commerce de détail standard
- Situé en ligne avec d’autres commerces de détail
- Space B + Space C: 2,300 SF
1er étage, ste D
| Taille | 1 298 pi² |
| Terme | Négociable |
| Taux de location | Sur demande |
| Utilisation de l’espace | Commerce de détail |
| État | construction partielle |
| Disponible | Maintenant |
Prime Retail Opportunity in Brooklyn's Newest Apartment Buildings
- Partiellement construit comme Espace de commerce de détail standard
- Situé en ligne avec d’autres commerces de détail
1er étage, ste E
| Taille | 870 pi² |
| Terme | Négociable |
| Taux de location | Sur demande |
| Utilisation de l’espace | Commerce de détail |
| État | construction partielle |
| Disponible | Maintenant |
Prime Retail Opportunity in Brooklyn's Newest Apartment Buildings
- Partiellement construit comme Espace de commerce de détail standard
- Situé en ligne avec d’autres commerces de détail
FAITS SUR LA PROPRIÉTÉ
| Superficie totale disponible | 5 346 pi² | Style d’appartement | De hauteur moyenne |
| Nombre d’unités | 92 | Taille du bâtiment | 68 808 pi² |
| Type de propriété | Immeuble residentiel | Année de construction | 2026 |
| Sous-type de propriété | Appartement | État de la construction | En construction |
| Superficie totale disponible | 5 346 pi² |
| Nombre d’unités | 92 |
| Type de propriété | Immeuble residentiel |
| Sous-type de propriété | Appartement |
| Style d’appartement | De hauteur moyenne |
| Taille du bâtiment | 68 808 pi² |
| Année de construction | 2026 |
| État de la construction | En construction |
À PROPOS DE LA PROPRIÉTÉ
Located in the Gowanus neighborhood of Brooklyn between Baltic St & Butler St near the Union St subway station. Nearest Transit: D, N, & R trains at Union St and the B103, B37, & B65 bus lines. Nearby tenants include CubeSmart, Brooklyn Car and Van Rentals, Gowanus Fitness, Threes Brewing, Petri Plumbing, Heating Cooling & Drain Cleaning, Luna's Tire Shop 2, ZeroSpace, Wafels & Dinges Warehouse, Gemini and Scorpio Loft, UpFit Training Academy Brooklyn, Herboganic, Mirrors Collective, and more!
PRINCIPAUX DÉTAILLANTS À PROXIMITÉ
Présenté par
159 Third Ave
Hmm, il semble y avoir eu une erreur lors de l’envoi de votre message. Veuillez réessayer.
Merci! Votre message a été envoyé.










