Se Connecter/S’inscrire
Votre courriel a été envoyé.
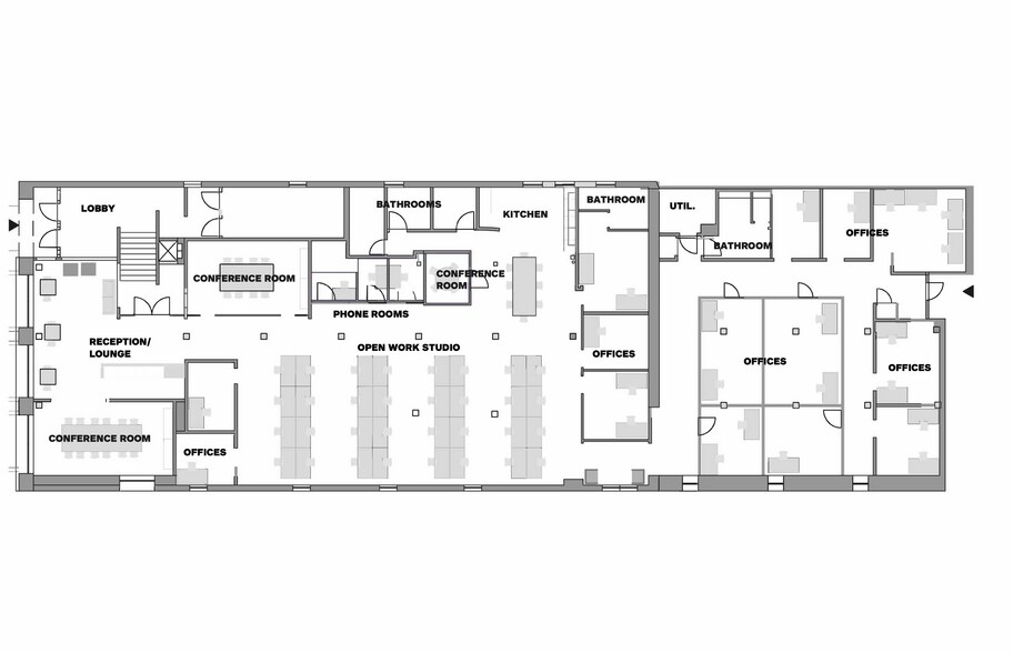
Broadway Lofts 159 W Broadway 7 400 pi² Bureau Immeuble Salt Lake City, UT 84101 3 324 576 $ CAD (449,27 $ CAD/pi²)



Certaines informations ont été traduites automatiquement.
Résumé de l'annonce
Available Square Footage: 7,400 SF - Perfect for owner operator
Prime Location: Located in Salt Lake City's Broadway District, this space offers easy access to transit, eateries, coffee shops, and cultural venues, with dedicated parking.
Work Space Flexibility: Open working format with 14 private offices and conference rooms.
Modern Amenities: Tenant to have access to high-speed internet, conference rooms, office kitchen, lobby space and a large outdoor courtyard space. This space was professional designed with up-to-date finishes and a modern vibe
Prime Location: Located in Salt Lake City's Broadway District, this space offers easy access to transit, eateries, coffee shops, and cultural venues, with dedicated parking.
Work Space Flexibility: Open working format with 14 private offices and conference rooms.
Modern Amenities: Tenant to have access to high-speed internet, conference rooms, office kitchen, lobby space and a large outdoor courtyard space. This space was professional designed with up-to-date finishes and a modern vibe
Faits sur la propriété
Type de vente
Propriétaire utilisateur
Type de propriété
Bureau
Sous-type de propriété
Loft
Taille du bâtiment
7 400 pi²
Classe d’immeuble
B
Année de construction/rénovation
1900/2012
Prix
3 324 576 $ CAD
Prix par pi²
449,27 $ CAD
Location
Unique
Hauteur du bâtiment
1 étage
Superficie de plancher typique
7 400 pi²
Coefficient d’occupation des sols de l’immeuble
1,70
Taille du lot
0,10 AC
Zone de développement économique
Oui
Zonage
D-3 - Downtown Commercial
Commodités
- Accès 24 heures
- Cour
- Réception
- Sièges extérieurs
- Climatisation
- Internet par fibre optique
1 1
Moyennement praticable à pied
60/100
Très facile d’accès en voiture
80/100
Bons transports en commun
60/100
Moyennement praticable en vélo
60/100
Impôts fonciers
| Numéro de lot | 15-01-407-061-0000 | Évaluation des bâtiments | 34 631 $ CAD |
| Évaluation du terrain | 1 856 069 $ CAD | Évaluation totale | 1 890 700 $ CAD |
Impôts fonciers
Numéro de lot
15-01-407-061-0000
Évaluation du terrain
1 856 069 $ CAD
Évaluation des bâtiments
34 631 $ CAD
Évaluation totale
1 890 700 $ CAD
1 de 15
Vidéos
Visite extérieure 3D Matterport
Visite 3D Matterport
Photos
Vue depuis la rue
Rue
Carte
1 de 1
Présenté par
Broadway Lofts | 159 W Broadway
Vous êtes déjà membre? Connectez-vous
Hmm, il semble y avoir eu une erreur lors de l’envoi de votre message. Veuillez réessayer.
Merci! Votre message a été envoyé.
