Votre courriel a été envoyé.
1590 Anderson - 2,100 SF-Best Professional Space in Fort Lee Unité de condo • Bureau/Médical • 2 100 pi² • À vendre 653 971 $ CAD • Fort Lee, NJ 07024



Certaines informations ont été traduites automatiquement.
FAITS SAILLANTS DE L'INVESTISSEMENT
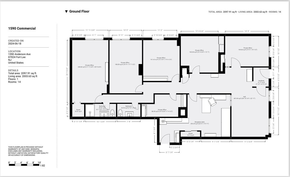
- 2,100 SF Medical / Office Suite
- Renovated in 2024
- Delivered Vacant upon Sale
- 200+ Unit Residential Building Above
- HOA Includes Taxes, Insurance, CAM Charges, Cable, etc.
- 4 Parking Spaces Deeded | 10 Common Parking Spaces
RÉSUMÉ DE L'ANNONCE
Découvrez une opportunité exceptionnelle pour propriétaire-utilisateur ou investisseur à Fort Lee, NJ! Cette propriété bien entretenue comprend un bâtiment de 2 100 pi², récemment rénové en 2024, et affiche actuellement un taux d'occupation de 100 %. Avec cette unité au rez-de-chaussée, la propriété offre une configuration idéale pour des espaces de bureaux ou médicaux, attirant à la fois les propriétaires-utilisateurs et les investisseurs à la recherche d'une opportunité lucrative dans la région du nord du New Jersey. Rénovée en 2020 et zonée R-2, elle présente un potentiel d'investissement solide et stable. Ne manquez pas cette propriété clé en main avec un fort potentiel de croissance future et des rendements attrayants.
FAITS SUR LA PROPRIÉTÉ Sous contrat
| Taille totale du bâtiment | 264 363 pi² | Superficie de plancher typique | 12 237 pi² |
| Type de propriété | Immeuble residentiel (Condo) | Année de construction | 1972 |
| Sous-type de propriété | Appartement | Taille du lot | 1,81 AC |
| Classe d’immeuble | C | Ratio de stationnement | 1,23/1 000 pi² |
| Planchers | 22 | ||
| Zonage | R2 - Espace commercial de 2 000 pi² au rez-de-chaussée, zoné pour usage de bureau et médical. | ||
| Taille totale du bâtiment | 264 363 pi² |
| Type de propriété | Immeuble residentiel (Condo) |
| Sous-type de propriété | Appartement |
| Classe d’immeuble | C |
| Planchers | 22 |
| Superficie de plancher typique | 12 237 pi² |
| Année de construction | 1972 |
| Taille du lot | 1,81 AC |
| Ratio de stationnement | 1,23/1 000 pi² |
| Zonage | R2 - Espace commercial de 2 000 pi² au rez-de-chaussée, zoné pour usage de bureau et médical. |
COMMODITÉS
COMMODITÉS DES UNITÉS
- Climatisation
- Balcon
- Lave-vaisselle
- Chauffage
- Cuisine
- Réfrigérateur
- Four
- Congélateur
COMMODITÉS DU SITE
- Accès 24 heures
- Centre de conditionnement physique
- Installations de lessive
- Piscine
- Portier
- Solarium
1 UNITÉ DISPONIBLE
Unité 101
| Taille de l’unité | 2 100 pi² | Statut de la vente | Sous contrat |
| Prix | 653 971 $ CAD | Taux de capitalisation | 11,52% |
| Prix par pi² | 311,41 $ CAD | Revenu net d’exploitation | 75 353,24 $ CAD |
| Utilisation du condo | Bureau/Médical | Nbre d’espaces de stationnement | 10 |
| Type de vente | Investissement ou propriétaire utilisateur |
| Taille de l’unité | 2 100 pi² |
| Prix | 653 971 $ CAD |
| Prix par pi² | 311,41 $ CAD |
| Utilisation du condo | Bureau/Médical |
| Type de vente | Investissement ou propriétaire utilisateur |
| Statut de la vente | Sous contrat |
| Taux de capitalisation | 11,52% |
| Revenu net d’exploitation | 75 353,24 $ CAD |
| Nbre d’espaces de stationnement | 10 |
DESCRIPTION
First floor of The Hampshire House office or medical suite available for immediate occupancy. Bring doctors, lawyers, surveyors, engineers, med spa, plastic surgeon, medical professionals, and all professional service industries.
NOTES SUR LA VENTE
Positioned in the heart of Fort Lee, NJ, this turnkey medical office suite offers a rare opportunity for owner-users or investors seeking a stable, income-generating asset in Northern New Jersey. Located on the ground floor of a 200+ unit residential building, the 2,100 SF suite has been fully renovated in 2024 and is delivered vacant, allowing immediate occupancy or leasing flexibility. The property benefits from a strong HOA structure that includes taxes, insurance, CAM charges, and cable, streamlining operational costs for owners.
Présenté par
1590 Anderson - 2,100 SF-Best Professional Space in Fort Lee
Hmm, il semble y avoir eu une erreur lors de l’envoi de votre message. Veuillez réessayer.
Merci! Votre message a été envoyé.

