Se Connecter/S’inscrire
Votre courriel a été envoyé.
Entitled Central Coast Hotel Dev Site 1598 El Camino Real 91 Pièce Hôtel Grover Beach, CA 93433 À vendre 7% Taux de capitalisation



Certaines informations ont été traduites automatiquement.
Faits saillants de l'investissement
- Elite Coastal Location: Situated less than 2 miles from downtown Pismo Beach, the Pismo Pier, Oceano Dunes, and beach access.
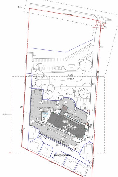
- Dual-Hotel Strategy: Entitled for two separate hotels totaling up to 186 units for maximized operational synergy and multi-segment market capture.
- Aggressive Development Incentives: Significant financial support via negotiated key money, deferred DIFs, and TOT reimbursements.
- Fully Entitled & Shovel-Ready: A rare ±7.29-acre site with active entitlements, environmental permits, and a Vesting Tentative Tract Map.
- High-Barrier Market: Capitalizes on the permanent scarcity of lodging supply and the notoriously difficult, multi-year approval process.
- Built-in Liquidity: Includes seven single-family residential lots that can be developed, converted or sold separately to generate early ROI.
Résumé de l'annonce
THE OFFERING
Darshan Patel is pleased to exclusively present the rare opportunity to acquire a prime ±7.29-acre mixed-use hospitality development site in the highly coveted and supply-constrained Central Coast of California. Situated in Grover Beach at the heart of the Central Coast, this fully entitled, shovel-ready project is primed to capitalize on the consistent demand of the San Luis Obispo regional and coastal market. Its proximity to Pismo Beach and Arroyo Grande ensures high visibility in one of California’s most sought after hospitality and residential sectors. The offering includes all active entitlements for the two hotels and SFRs, permits, and construction-ready drawings, providing an investor with an immediate path to ground-breaking in a high barrier-to-entry market and significant savings on the typical multi-year coastal planning timeline.
Asking: Market Value - Unpriced. Seller is seeking market-based offers and is prepared to review proposals that reflect current underwriting and development environments.
Broker Co-Op Available: Yes
PROJECT HIGHLIGHTS
Shovel-Ready Coastal Development: The project is fully entitled for a high-density mix including two individual hotels totaling up to 186 units and seven single-family residential lots.
Immediate Scale (Phase 1): Phase 1 construction documents for a 93-unit La Quinta Inn & Suites by Wyndham and sitewide improvements are currently in the final stages of building permit review.
Secondary Flag Potential: Hotel A is entitled for 91 to 93 units, offering the flexibility to brand with a premier global flag such as Hilton, Marriott, IHG, or Hyatt.
Aggressive Incentives: The project benefits from significant development incentives negotiated with the City of Grover Beach, "key money" contributions by Wyndham, deferred Development Impact Fees (DIFs), and Transient Occupancy Tax (TOT) reimbursements.
Premier Visibility & Access: Situated directly along the major US Highway 101 corridor, the site features rare approvals for two 50-foot pylon signs, ensuring permanent and maximum brand exposure to millions of annual coastal travelers further enhancing market share and capture.
Please inquire for additional project files and available due diligence package.
LOCATION OVERVIEW
The subject property is strategically located less than 2 miles from the world-renowned Pismo State Beach and Pismo Pier. The Central Coast market is characterized by extremely high barriers to entry and a limited supply of new lodging inventory.
Tourism Synergy: Adjacent to popular dining and brewery destinations, and just 15 minutes from the rapidly expanding San Luis Obispo County Airport, which is nearing 1,000,000 annual passengers.
Strong Fundamentals: Local STR (Smith Travel Research) data indicates a resilient hospitality market with consistent year-round occupancy from leisure, group, and business travel.
STRATEGIC FLEXIBILITY
This project offers multiple exit and liquidity strategies. An investor may choose to build and operate the entire portfolio for maximum synergy, or sell the seven residential lots during construction to generate immediate liquidity and enhance the overall return on investment. With hard construction bids in hand and several lenders already indicating interest via conventional, SBA, and USDA funding routes, this represents a rare, de-risked entry into a premier California submarket.
Investment Highlights
Phase 1 Immediacy: Construction drawings for the 93-unit La Quinta Inn & Suites are in their third round of city review, allowing for a condensed timeline to groundbreaking.
Brand Versatility: Hotel A remains open for branding with top-tier flags like Hilton, Marriott, IHG, or Hyatt.
Unrivaled Visibility: Unique approvals are in place for two 50-foot highway-oriented pylon signs along the US Highway 101 corridor.
Demonstrated Capital Interest: The project’s economics and location have secured willingness to lend from several regional and national lenders, offering a clear path to both construction and permanent financing.
Darshan Patel is acting as principal and broker for this offering and eventual transaction.
Darshan Patel is pleased to exclusively present the rare opportunity to acquire a prime ±7.29-acre mixed-use hospitality development site in the highly coveted and supply-constrained Central Coast of California. Situated in Grover Beach at the heart of the Central Coast, this fully entitled, shovel-ready project is primed to capitalize on the consistent demand of the San Luis Obispo regional and coastal market. Its proximity to Pismo Beach and Arroyo Grande ensures high visibility in one of California’s most sought after hospitality and residential sectors. The offering includes all active entitlements for the two hotels and SFRs, permits, and construction-ready drawings, providing an investor with an immediate path to ground-breaking in a high barrier-to-entry market and significant savings on the typical multi-year coastal planning timeline.
Asking: Market Value - Unpriced. Seller is seeking market-based offers and is prepared to review proposals that reflect current underwriting and development environments.
Broker Co-Op Available: Yes
PROJECT HIGHLIGHTS
Shovel-Ready Coastal Development: The project is fully entitled for a high-density mix including two individual hotels totaling up to 186 units and seven single-family residential lots.
Immediate Scale (Phase 1): Phase 1 construction documents for a 93-unit La Quinta Inn & Suites by Wyndham and sitewide improvements are currently in the final stages of building permit review.
Secondary Flag Potential: Hotel A is entitled for 91 to 93 units, offering the flexibility to brand with a premier global flag such as Hilton, Marriott, IHG, or Hyatt.
Aggressive Incentives: The project benefits from significant development incentives negotiated with the City of Grover Beach, "key money" contributions by Wyndham, deferred Development Impact Fees (DIFs), and Transient Occupancy Tax (TOT) reimbursements.
Premier Visibility & Access: Situated directly along the major US Highway 101 corridor, the site features rare approvals for two 50-foot pylon signs, ensuring permanent and maximum brand exposure to millions of annual coastal travelers further enhancing market share and capture.
Please inquire for additional project files and available due diligence package.
LOCATION OVERVIEW
The subject property is strategically located less than 2 miles from the world-renowned Pismo State Beach and Pismo Pier. The Central Coast market is characterized by extremely high barriers to entry and a limited supply of new lodging inventory.
Tourism Synergy: Adjacent to popular dining and brewery destinations, and just 15 minutes from the rapidly expanding San Luis Obispo County Airport, which is nearing 1,000,000 annual passengers.
Strong Fundamentals: Local STR (Smith Travel Research) data indicates a resilient hospitality market with consistent year-round occupancy from leisure, group, and business travel.
STRATEGIC FLEXIBILITY
This project offers multiple exit and liquidity strategies. An investor may choose to build and operate the entire portfolio for maximum synergy, or sell the seven residential lots during construction to generate immediate liquidity and enhance the overall return on investment. With hard construction bids in hand and several lenders already indicating interest via conventional, SBA, and USDA funding routes, this represents a rare, de-risked entry into a premier California submarket.
Investment Highlights
Phase 1 Immediacy: Construction drawings for the 93-unit La Quinta Inn & Suites are in their third round of city review, allowing for a condensed timeline to groundbreaking.
Brand Versatility: Hotel A remains open for branding with top-tier flags like Hilton, Marriott, IHG, or Hyatt.
Unrivaled Visibility: Unique approvals are in place for two 50-foot highway-oriented pylon signs along the US Highway 101 corridor.
Demonstrated Capital Interest: The project’s economics and location have secured willingness to lend from several regional and national lenders, offering a clear path to both construction and permanent financing.
Darshan Patel is acting as principal and broker for this offering and eventual transaction.
Salle de données Cliquez ici pour accéder à
- Offering Memorandum
Faits sur la propriété
| Type de vente | Investissement | État de la construction | Planification finale |
| Taux de capitalisation | 7% | Taille du bâtiment | 52 500 pi² |
| Type de propriété | Services hôteliers | Nombre de pièces | 91 |
| Sous-type de propriété | Hôtel | Nombre d’étages | 4 |
| Classe d’immeuble | B | Année de construction | 2028 |
| Taille du lot | 7,29 AC | Corridor | Intérieur |
| Zonage | RC & OS - Approved Planned Development Overlay, Vesting Tentative Tract Map, and entitlements allow for the planned hospitality and residential development. | ||
| Type de vente | Investissement |
| Taux de capitalisation | 7% |
| Type de propriété | Services hôteliers |
| Sous-type de propriété | Hôtel |
| Classe d’immeuble | B |
| Taille du lot | 7,29 AC |
| État de la construction | Planification finale |
| Taille du bâtiment | 52 500 pi² |
| Nombre de pièces | 91 |
| Nombre d’étages | 4 |
| Année de construction | 2028 |
| Corridor | Intérieur |
| Zonage | RC & OS - Approved Planned Development Overlay, Vesting Tentative Tract Map, and entitlements allow for the planned hospitality and residential development. |
Commodités
- Centre d’affaires
- Accès contrôlé
- Centre de conditionnement physique
- Piscine
- Spa
- Accessible aux fauteuils roulants
- Bar sur place
- Espaces de réunion
- Accès Wi-Fi public
- Sans fumée
- Internet par fibre optique
- Détecteur de fumée
Pièce renseignements sur le mélange
| Description | Nombre de pièces | Taux quotidien | pi² |
|---|---|---|---|
| Suite | 28 | 351,26 $ CAD | - |
| Guest Room | 63 | 282,39 $ CAD | - |
1 1
Assez praticable à pied
40/100
Exceptionnellement facile d’accès en voiture
100/100
Transports en commun limités
20/100
Plutôt praticable en vélo
40/100
Impôts fonciers
| Numéros de lot | Évaluation des bâtiments | 277 031 $ CAD | |
| Évaluation du terrain | 1 266 434 $ CAD | Évaluation totale | 1 543 465 $ CAD |
Impôts fonciers
Numéros de lot
Évaluation du terrain
1 266 434 $ CAD
Évaluation des bâtiments
277 031 $ CAD
Évaluation totale
1 543 465 $ CAD
1 de 11
Vidéos
Visite extérieure 3D Matterport
Visite 3D Matterport
Photos
Vue depuis la rue
Rue
Carte
1 de 1
Présenté par
Darshan Patel
Entitled Central Coast Hotel Dev Site | 1598 El Camino Real
Vous êtes déjà membre? Connectez-vous
Hmm, il semble y avoir eu une erreur lors de l’envoi de votre message. Veuillez réessayer.
Merci! Votre message a été envoyé.
