Votre courriel a été envoyé.
1599 US Highway 9 - Reich Farm Lot • Terrain commercial • 22,7 Acres • 24 820 740 $ CAD • Toms River, NJ 08755



Certaines informations ont été traduites automatiquement.
FAITS SAILLANTS DE L'INVESTISSEMENT
- 22.7 acres total land
- Warehouse potential
- Zoned light industrial
- Multiple permitted uses
RÉSUMÉ DE L'ANNONCE
Light manufacturing, the ware housing & storage of goods & products, excluding the warehousing of storage of hazardous chemicals, Wholesaling or distributing establishments except for used automobiles, Scientific or research laboratories, Executive or administrative office of an industrial or business concern which are not normally involved in conducting business w/ the general public, Federal/State/County & Municipal building grounds. Essential services. Motor vehicle repair garages. Child-Care Centers. Hotels & Motels containing 100 or more units. Mini Warehouse facilities, including one dwelling.
FAITS SUR LA PROPRIÉTÉ
1 LOT DISPONIBLE
Lot
| Prix | 24 820 740 $ CAD | Taille du lot | 22,70 AC |
| Prix par AC | 1 093 424,65 $ CAD |
| Prix | 24 820 740 $ CAD |
| Prix par AC | 1 093 424,65 $ CAD |
| Taille du lot | 22,70 AC |
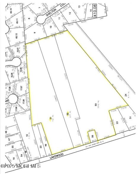
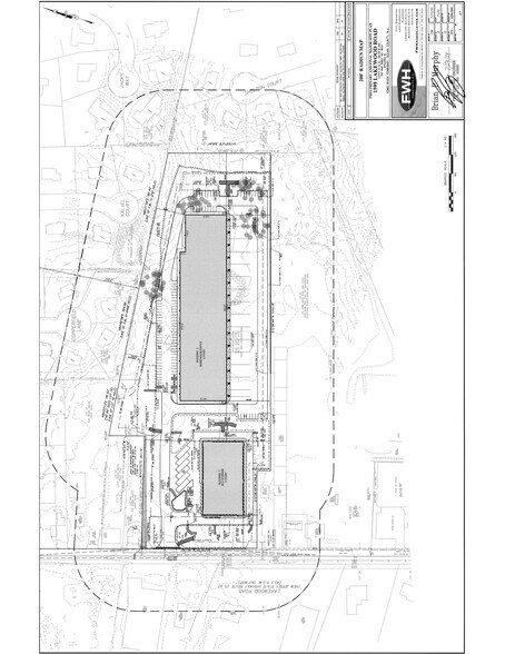
22.7-acre Light Industrial parcel on Rt 9 in Toms River with approved plans for self-storage, warehouse, and office; additional land offers future development potential.
DESCRIPTION
Reich Farm offre une opportunité de développement importante dans la zone industrielle légère de Toms River, le long de la route Highway 9. Le site s'étend sur environ 22,7 acres, incluant des parcelles approuvées aux adresses 1593 et 1599 Rt 9 totalisant 12,08 acres, avec des autorisations pour 91 650 pieds carrés de stockage en libre-service, 73 686 pieds carrés d'espace d'entrepôt et 11 252 pieds carrés d'espace de bureaux. Une parcelle adjacente de 10,62 acres n'a actuellement pas d'approbations, mais pourrait accueillir jusqu'à 152 000 pieds carrés d'entrepôt ou d'utilisation similaire. Des parcelles supplémentaires non approuvées incluent 1579 Rt 9 (10,42 acres) et 1581 Rt 9 (0,2 acre). Les usages permis pour la propriété incluent la fabrication légère, l'entreposage et le stockage (à l'exclusion des produits chimiques dangereux), la distribution en gros, les laboratoires de recherche, les bureaux exécutifs ou administratifs, les installations gouvernementales, les services essentiels, les garages de réparation de véhicules motorisés, les centres de garde d'enfants, les hôtels ou motels avec 100 unités ou plus, ainsi que les installations de mini-entrepôts avec une habitation.
Présenté par
1599 US Highway 9 - Reich Farm
Hmm, il semble y avoir eu une erreur lors de l’envoi de votre message. Veuillez réessayer.
Merci! Votre message a été envoyé.

