Se Connecter/S’inscrire
Votre courriel a été envoyé.
Certaines informations ont été traduites automatiquement.
Faits saillants de l'investissement
- Situé à Pearland avec un accès rapide au Beltway 8 et à l'autoroute 35
Résumé de l'annonce
Bureau : Construit sur les besoins
Hauteur dégagée : ±22' - 29'
Énergie : livraison en mai 2025
Chargement : Niveau de niveau et niveau élevé du quai
Construction : Paroi inclinable
Système d'arrosage : Gicleurs ESFR
Zonage : M1
Emplacement : Situé à Pearland avec un accès rapide au Beltway 8 et à l'autoroute 35
Hauteur dégagée : ±22' - 29'
Énergie : livraison en mai 2025
Chargement : Niveau de niveau et niveau élevé du quai
Construction : Paroi inclinable
Système d'arrosage : Gicleurs ESFR
Zonage : M1
Emplacement : Situé à Pearland avec un accès rapide au Beltway 8 et à l'autoroute 35
Faits sur la propriété
| Type de vente | Propriétaire utilisateur | Aire du bâtiment louable | 14 000 pi² |
| Condition de vente | Option du bail | Nombre d’étages | 1 |
| Type de propriété | Industriel | Année de construction | 2024 |
| Sous-type de propriété | Centre de distribution | Effacer hauteur du plafond | 29’ |
| Classe d’immeuble | B | Nbre de quais à portes élevées/de chargement | 1 |
| Taille du lot | 9,60 AC | Nbre d’entrées dans les portes/au niveau du sol | 1 |
| Zonage | M1 - Industriel léger | ||
| Type de vente | Propriétaire utilisateur |
| Condition de vente | Option du bail |
| Type de propriété | Industriel |
| Sous-type de propriété | Centre de distribution |
| Classe d’immeuble | B |
| Taille du lot | 9,60 AC |
| Aire du bâtiment louable | 14 000 pi² |
| Nombre d’étages | 1 |
| Année de construction | 2024 |
| Effacer hauteur du plafond | 29’ |
| Nbre de quais à portes élevées/de chargement | 1 |
| Nbre d’entrées dans les portes/au niveau du sol | 1 |
| Zonage | M1 - Industriel léger |
Commodités
- Espace d'entreposage
Services publics
- Éclairage
Disponibilité des espaces
- Espace
- Taille
- Utilisation de l’espace
- Aménagement
- Disponible
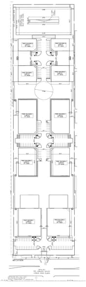
BÂTIMENT 4 SUPERFICIE ±14 000 pi² PORTES AU SOL Une (1) PORTES DE QUAI Une (1) PUITS DE QUAI Un (1) HAUTEUR LIBRE ±29’
| Espace | Taille | Utilisation de l’espace | Aménagement | Disponible |
| 1er Ét. - Bldg 4 | 14 000 pi² | Industriel | espace cloisonné | Maintenant |
1er Ét. - Bldg 4
| Taille |
| 14 000 pi² |
| Utilisation de l’espace |
| Industriel |
| Aménagement |
| espace cloisonné |
| Disponible |
| Maintenant |
1 de 1
Vidéos
Visite extérieure 3D Matterport
Visite 3D Matterport
Photos
Vue depuis la rue
Rue
Carte
1er Ét. - Bldg 4
| Taille | 14 000 pi² |
| Utilisation de l’espace | Industriel |
| Aménagement | espace cloisonné |
| Disponible | Maintenant |
BÂTIMENT 4 SUPERFICIE ±14 000 pi² PORTES AU SOL Une (1) PORTES DE QUAI Une (1) PUITS DE QUAI Un (1) HAUTEUR LIBRE ±29’
Plutôt praticable à pied
30/100
Exceptionnellement facile d’accès en voiture
100/100
Assez praticable en vélo
20/100
Impôts fonciers
| Numéro de lot | 0542-0033-000 | Évaluation des bâtiments | 16 436 814 $ CAD |
| Évaluation du terrain | 1 149 735 $ CAD | Évaluation totale | 17 586 549 $ CAD |
Impôts fonciers
Numéro de lot
0542-0033-000
Évaluation du terrain
1 149 735 $ CAD
Évaluation des bâtiments
16 436 814 $ CAD
Évaluation totale
17 586 549 $ CAD
1 de 5
Vidéos
Visite extérieure 3D Matterport
Visite 3D Matterport
Photos
Vue depuis la rue
Rue
Carte
Présenté par
Bldg 4 | 1613 N Main St
Vous êtes déjà membre? Connectez-vous
Hmm, il semble y avoir eu une erreur lors de l’envoi de votre message. Veuillez réessayer.
Merci! Votre message a été envoyé.






