Votre courriel a été envoyé.
Palm Valley Office Plaza Goodyear, AZ 85395 1 219–6 460 pi² d'espace disponible • Bureau



Certaines informations ont été traduites automatiquement.
Faits saillants du parc
- Situated at the gateway to the Palm Valley master-planned community.
- Tenant Improvement Allowance Available
- Only one minute from I-10; Litchfield Road full-diamond interchange.
- Highest quality building in Goodyear.
- Amenities nearby include retail, banks, restaurants, gyms and theaters.
Faits sur le parc
| Superficie totale disponible | 6 460 pi² | Type de parc | Parc de bureaux |
| Max. contigu | 3 760 pi² | Caractéristiques | Affichage |
| Superficie totale disponible | 6 460 pi² |
| Max. contigu | 3 760 pi² |
| Type de parc | Parc de bureaux |
| Caractéristiques | Affichage |
Tous les espaces disponibles(3)
Afficher les taux de location en
- Espace
- Taille
- Terme
- Taux de location
- Utilisation de l’espace
- Aménagement
- Disponible
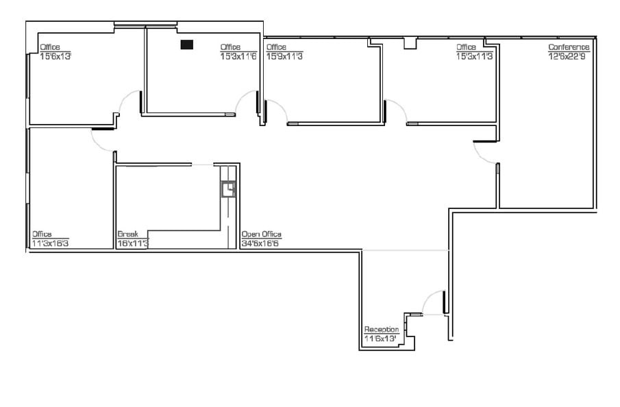
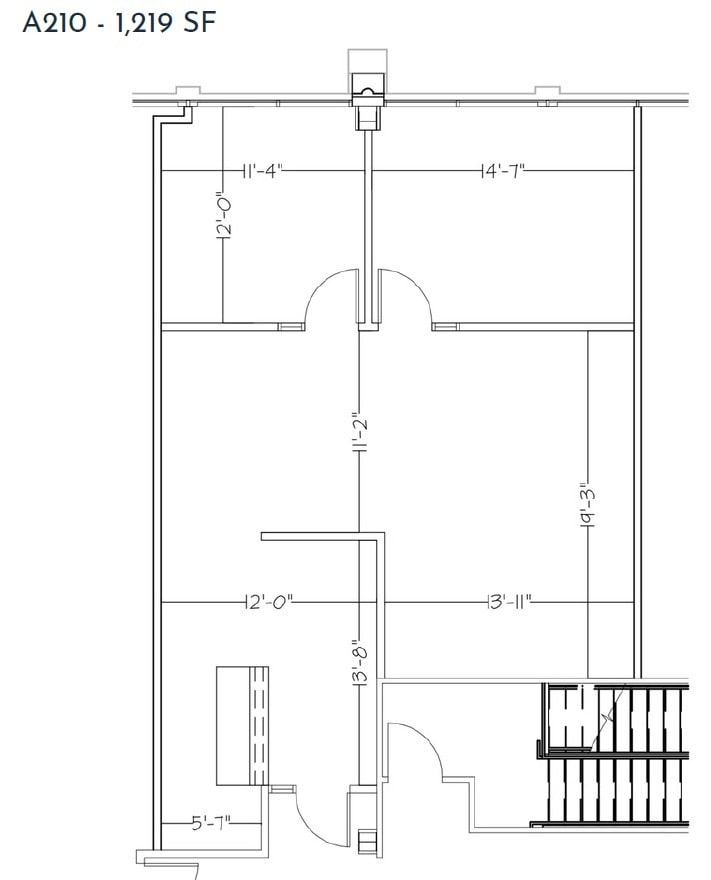
Suite A210 is now available with 1,219 SF with2 private offices, lobby and open bull pen.
- Le taux comprend les services publics, les services de bâtiment et les dépenses immobilières.
- Convient pour 4 à 10 personnes
- Peut être associé à un ou plusieurs espaces supplémentaires pour obtenir jusqu’à 3 760 pi² d’espace adjacent.
- Disposition du plan d’étage ouverte
- 2 bureaux privés
- Climatisation centrale
second gen, available 4/1/2026
- Le taux comprend les services publics, les services de bâtiment et les dépenses immobilières.
- Convient pour 7 à 21 personnes
- 1 salle de conférence
- Climatisation centrale
- Disposition du plan d’étage ouverte
- 4 bureaux privés
- Peut être associé à un ou plusieurs espaces supplémentaires pour obtenir jusqu’à 3 760 pi² d’espace adjacent.
| Espace | Taille | Terme | Taux de location | Utilisation de l’espace | Aménagement | Disponible |
| 2e étage, ste A-210 | 1 219 pi² | Négociable | 53,43 $ CAD/pi²/an 4,45 $ CAD/pi²/mois 65 131 $ CAD/an 5 428 $ CAD/mois | Bureau | construction partielle | Maintenant |
| 2e étage, ste A-215 | 2 541 pi² | Négociable | 53,43 $ CAD/pi²/an 4,45 $ CAD/pi²/mois 135 766 $ CAD/an 11 314 $ CAD/mois | Bureau | - | Maintenant |
1616 N Litchfield Rd - 2e étage - ste A-210
1616 N Litchfield Rd - 2e étage - ste A-215
- Espace
- Taille
- Terme
- Taux de location
- Utilisation de l’espace
- Aménagement
- Disponible
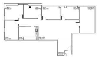
second gen, available 11/1/2026 sporting a layout of 5 offices, reception, conference room, and break room.
- Le taux comprend les services publics, les services de bâtiment et les dépenses immobilières.
- Convient pour 7 à 22 personnes
- 1 salle de conférence
- Aire de réception
- Disposition du plan d’étage ouverte
- 5 bureaux privés
- Climatisation centrale
| Espace | Taille | Terme | Taux de location | Utilisation de l’espace | Aménagement | Disponible |
| 2e étage, ste B-235 | 2 700 pi² | Négociable | 50,69 $ CAD/pi²/an 4,22 $ CAD/pi²/mois 136 863 $ CAD/an 11 405 $ CAD/mois | Bureau | - | 2026-11-01 |
1646 N Litchfield Rd - 2e étage - ste B-235
1616 N Litchfield Rd - 2e étage - ste A-210
| Taille | 1 219 pi² |
| Terme | Négociable |
| Taux de location | 53,43 $ CAD/pi²/an |
| Utilisation de l’espace | Bureau |
| Aménagement | construction partielle |
| Disponible | Maintenant |
Suite A210 is now available with 1,219 SF with2 private offices, lobby and open bull pen.
- Le taux comprend les services publics, les services de bâtiment et les dépenses immobilières.
- Disposition du plan d’étage ouverte
- Convient pour 4 à 10 personnes
- 2 bureaux privés
- Peut être associé à un ou plusieurs espaces supplémentaires pour obtenir jusqu’à 3 760 pi² d’espace adjacent.
- Climatisation centrale
1616 N Litchfield Rd - 2e étage - ste A-215
| Taille | 2 541 pi² |
| Terme | Négociable |
| Taux de location | 53,43 $ CAD/pi²/an |
| Utilisation de l’espace | Bureau |
| Aménagement | - |
| Disponible | Maintenant |
second gen, available 4/1/2026
- Le taux comprend les services publics, les services de bâtiment et les dépenses immobilières.
- Disposition du plan d’étage ouverte
- Convient pour 7 à 21 personnes
- 4 bureaux privés
- 1 salle de conférence
- Peut être associé à un ou plusieurs espaces supplémentaires pour obtenir jusqu’à 3 760 pi² d’espace adjacent.
- Climatisation centrale
1646 N Litchfield Rd - 2e étage - ste B-235
| Taille | 2 700 pi² |
| Terme | Négociable |
| Taux de location | 50,69 $ CAD/pi²/an |
| Utilisation de l’espace | Bureau |
| Aménagement | - |
| Disponible | 2026-11-01 |
second gen, available 11/1/2026 sporting a layout of 5 offices, reception, conference room, and break room.
- Le taux comprend les services publics, les services de bâtiment et les dépenses immobilières.
- Disposition du plan d’étage ouverte
- Convient pour 7 à 22 personnes
- 5 bureaux privés
- 1 salle de conférence
- Climatisation centrale
- Aire de réception
Sélectionner des locataires à cette propriété
- Étage
- Nom du locataire
- Secteur
- 2ᵉ
- American Wealth Advisers
- -
- 1ᵉʳ
- Coldwell Banker Residential Brokerage
- -
- 1ᵉʳ
- Edward Jones
- Finance et assurances
- 1ᵉʳ
- First Arizona Title Agency
- Services professionnels, scientifiques et techniques
- 2ᵉ
- Laughton and Laughton, PLLC
- -
- 1ᵉʳ
- Lincoln & Wenk, PLLC
- Services professionnels, scientifiques et techniques
- 1ᵉʳ
- Saratoga Capital Management
- Finance et assurances
- 2ᵉ
- SC Dental Group
- Soins de santé et assistance sociale
- 2ᵉ
- Stewart Title Company dba Empire West Title
- -
- 2ᵉ
- The Garcia Group
- Immobilier
Aperçu du parc
Bureau de classe A sur la North West Company de Litchfield Road et McDowell. Magnifique intérieur et extérieur, emplacement très recherché.
- Affichage
Présenté par
Palm Valley Office Plaza | Goodyear, AZ 85395
Hmm, il semble y avoir eu une erreur lors de l’envoi de votre message. Veuillez réessayer.
Merci! Votre message a été envoyé.






