Se Connecter/S’inscrire
Votre courriel a été envoyé.
1621 N Beck St 9 000 pi² Industriel Immeuble Salt Lake City, UT 84116 3 450 269 $ CAD (383,36 $ CAD/pi²)



Certaines informations ont été traduites automatiquement.
Visite 3D Matterport
Faits saillants de l'investissement
- Highly visible property on Beck Street, surrounded by established industrial users and supported by strong transportation infrastructure.
- Heavy power access with 240-volt 3-phase service, modern security system, smart lighting, newer roof, new pavement, and extensive recent upgrades.
- 9,000-square-foot property on 0.5 acres with showroom, shop, warehouse, office space, four 10' by 10' doors, 12’ clear height, and secure fenced yard.
- Excellent access to Interstate 15, Salt Lake Central Station, and just 13 miles from SLC International Airport, serving over 540,000 residents.
Résumé de l'annonce
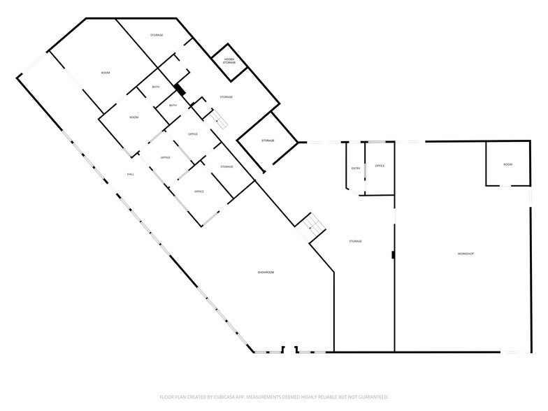
Discover 1621 N Beck Street, a highly visible 9,000-square-foot industrial building that sits on a 0.5-acre lot for sale. It features a highly functional layout comprising approximately 820 square feet of office space, 2,551 square feet of front-facing showroom space with excellent natural light, 2,208 square feet of shop area, and roughly 3,421 square feet of warehouse space. The showroom is prominently located at the front of the building, creating an ideal environment for customer-facing industrial, service, or distribution users seeking both operational efficiency and strong street presence in Salt Lake City’s industrial corridor.
The property features four 10-foot by 10-foot grade-level doors that provide direct access to the warehouse, showroom, shop, and a secure storage yard, enabling efficient logistical use. The building offers a 12-foot clear height and is equipped with heavy power, including 240-volt, 3-phase electrical service. Utilities include lighting, gas, water, sewer, and heating, with office areas currently heated via efficient mini-split systems.
Positioned directly along Beck Street with outstanding frontage, the property benefits from exposure to approximately 23,770 vehicles. Additionally, the building has benefited from numerous capital improvements that enhance both functionality and long-term value. The roof was replaced around 2020, with additional flashing installed in 2022, insulated garage doors installed in 2023, new exterior paint completed in 2023, and new pavement installed in front of the building in 2023. The water heater was replaced in 2024, and the property is outfitted with updated smart lighting, smart locks, and a comprehensive security system featuring full camera coverage with tracking capabilities for people, vehicles, and movement, all accessible via mobile application. A walk-in safe provides an added layer of security, ideal for specialized industrial or secure storage.
1621 N Beck Street benefits from exceptional connectivity and logistics advantages, including proximity to Salt Lake Central Station commuter rail, strong access to Interstate 15, and a location approximately 13 miles from Salt Lake City International Airport, supporting regional and national shipping operations. With its combination of high visibility, versatile layout, heavy power, secure yard, and extensive recent upgrades, 1621 N Beck Street presents a compelling opportunity for an owner/user seeking a well-located industrial asset in Salt Lake City.
The property features four 10-foot by 10-foot grade-level doors that provide direct access to the warehouse, showroom, shop, and a secure storage yard, enabling efficient logistical use. The building offers a 12-foot clear height and is equipped with heavy power, including 240-volt, 3-phase electrical service. Utilities include lighting, gas, water, sewer, and heating, with office areas currently heated via efficient mini-split systems.
Positioned directly along Beck Street with outstanding frontage, the property benefits from exposure to approximately 23,770 vehicles. Additionally, the building has benefited from numerous capital improvements that enhance both functionality and long-term value. The roof was replaced around 2020, with additional flashing installed in 2022, insulated garage doors installed in 2023, new exterior paint completed in 2023, and new pavement installed in front of the building in 2023. The water heater was replaced in 2024, and the property is outfitted with updated smart lighting, smart locks, and a comprehensive security system featuring full camera coverage with tracking capabilities for people, vehicles, and movement, all accessible via mobile application. A walk-in safe provides an added layer of security, ideal for specialized industrial or secure storage.
1621 N Beck Street benefits from exceptional connectivity and logistics advantages, including proximity to Salt Lake Central Station commuter rail, strong access to Interstate 15, and a location approximately 13 miles from Salt Lake City International Airport, supporting regional and national shipping operations. With its combination of high visibility, versatile layout, heavy power, secure yard, and extensive recent upgrades, 1621 N Beck Street presents a compelling opportunity for an owner/user seeking a well-located industrial asset in Salt Lake City.
Visite 3D Matterport
1 de 1
Vidéos
Visite extérieure 3D Matterport
Visite 3D Matterport
Photos
Vue depuis la rue
Rue
Carte
Taxes et dépenses d’exploitation (Réel - 2025) Cliquez ici pour accéder à |
Annuel (CAD) | Annuel par pi² (CAD) |
|---|---|---|
| Taxes |
$99,999
|
$9.99
|
| Dépenses d’exploitation |
$99,999
|
$9.99
|
| Total des dépenses |
$99,999
|
$9.99
|
Taxes et dépenses d’exploitation (Réel - 2025) Cliquez ici pour accéder à
| Taxes (CAD) | |
|---|---|
| Annuel | $99,999 |
| Annuel par pi² | $9.99 |
| Dépenses d’exploitation (CAD) | |
|---|---|
| Annuel | $99,999 |
| Annuel par pi² | $9.99 |
| Total des dépenses (CAD) | |
|---|---|
| Annuel | $99,999 |
| Annuel par pi² | $9.99 |
Faits sur la propriété
Commodités
- Terrain clôturé
- Cour
Services publics
- Éclairage
- Gaz
- Eau
- Égout
- Chauffage
Plutôt practicable à pied
20/100
Exceptionnellement facile d'accès en voiture
100/100
Transports en commun relativement accessibles
40/100
Assez praticable en vélo
20/100
Données démographiques
Accessibilité régionale
Ville
Population
Milles
Temps de conduite
Las Vegas
644 644
425
7 h 14 m
Denver
716 492
528
9 h 10 m
Aurora
374 114
536
9 h 10 m
Colorado Springs
472 688
590
10 h 19 m
Albuquerque
560 218
603
12 h 15 m
Phoenix
1 660 272
656
12 h 17 m
Accès et main-d’œuvre
10 Milles
Population totale
541 041
Effectif total
317 183
Taux de chômage
3,58%
Revenu médian par ménage
$84,881
Employés de l’entrepôt
47 080
Enseignement secondaire ou supérieur
91,20%
Valeurs en dollars américains
Impôts fonciers
| Numéro de lot | 08-23-426-018-0000 | Évaluation totale | 1 397 504 $ CAD |
| Évaluation du terrain | 539 976 $ CAD | Impôts annuels | (9 000 $) CAD ((1,00 $) CAD/pi²) |
| Évaluation des bâtiments | 857 528 $ CAD | Année d’imposition | 2025 Payable 2026 |
Impôts fonciers
Numéro de lot
08-23-426-018-0000
Évaluation du terrain
539 976 $ CAD
Évaluation des bâtiments
857 528 $ CAD
Évaluation totale
1 397 504 $ CAD
Impôts annuels
(9 000 $) CAD ((1,00 $) CAD/pi²)
Année d’imposition
2025 Payable 2026
1 de 24
Vidéos
Visite extérieure 3D Matterport
Visite 3D Matterport
Photos
Vue depuis la rue
Rue
Carte
Présenté par
1621 N Beck St
Vous êtes déjà membre? Connectez-vous
Hmm, il semble y avoir eu une erreur lors de l’envoi de votre message. Veuillez réessayer.
Merci! Votre message a été envoyé.

