Votre courriel a été envoyé.
16227 D Street - 42 lots - Shovel Ready Lot • Résidentiel • 9,12 Acres • 2 188 544 $ CAD • Madera, CA 93638



Certaines informations ont été traduites automatiquement.
Faits saillants de l'investissement
- Shovel Ready
- Improvement Plans will be complete and the Final Map will be ready to record
- Tentative Map Approved
Résumé de l'annonce
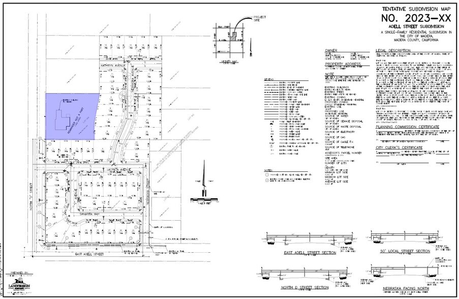
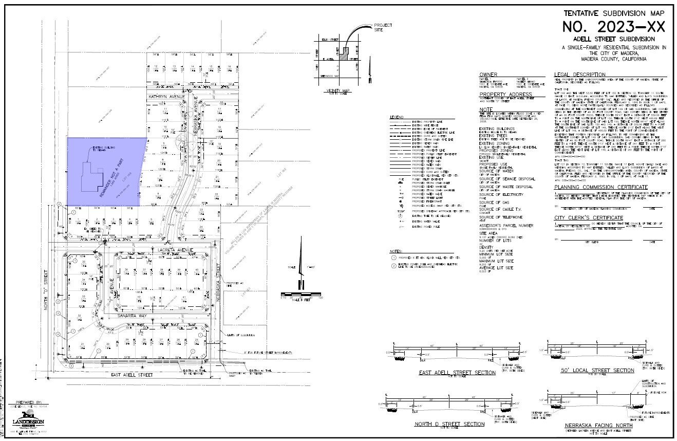
An exceptional opportunity to acquire approximately 8 acres of fully annexed land with an Approved Tentative Subdivision Map for 42 single-family residential lots (50' x 100'). Annexation has been completed and officially recorded, the subdivision improvement plans are in their second submittal and are anticipated to be approved, with the final map ready for recording in the coming months. This project encompasses two APNs being sold together, totaling 9.12 acres. APN# 038-090-010 comprises 5 acres of vacant land and is offered in conjunction with the adjacent northern property, APN# 038-090-009 (4.12 acres).
Please note, the red house on APN# 038-090-009, located at 16255 North D Street, is not included in the sale. The seller will retain the home along with approximately 1 acre of land, leaving roughly 8 acres of land available for subdivision into 42 lots, perfect for new single-family residential construction.
Take advantage of this remarkable investment opportunity in a desirable location, ideal for creating a vibrant residential community. For more information please contact us today.
Faits sur la propriété
| Prix | 2 188 544 $ CAD | Sous-type de propriété | Résidentiel |
| Type de vente | Investissement ou propriétaire utilisateur | Utilisation proposée | Développement familial unique |
| Condition de vente | 1031 Échange | Taille totale du lot | 9,12 AC |
| Nombre de lots | 1 | Rues transversales | Adell |
| Type de propriété | Terrain | ||
| Zonage | R - Résidentiel | ||
| Prix | 2 188 544 $ CAD |
| Type de vente | Investissement ou propriétaire utilisateur |
| Condition de vente | 1031 Échange |
| Nombre de lots | 1 |
| Type de propriété | Terrain |
| Sous-type de propriété | Résidentiel |
| Utilisation proposée | Développement familial unique |
| Taille totale du lot | 9,12 AC |
| Rues transversales | Adell |
| Zonage | R - Résidentiel |
1 Lot disponible
Lot
| Prix | 2 188 544 $ CAD | Taille du lot | 9,12 AC |
| Prix par AC | 239 971,94 $ CAD |
| Prix | 2 188 544 $ CAD |
| Prix par AC | 239 971,94 $ CAD |
| Taille du lot | 9,12 AC |
Irregular lot comprised of two parcels on a hard corder. Vacant undeveloped land to be subdivided into 42 residential single family home lots of 50'x100'.
Description
**Occasion de Développement Résidentiel de Premier Plan - Lotissement de 42 Parcelles Approuvé** Une opportunité exceptionnelle d'acquérir environ 8 acres de terrain entièrement annexé avec une carte de lotissement provisoire approuvée pour 42 parcelles résidentielles unifamiliales (50' x 100'). L'annexion a été complétée et officiellement enregistrée, les plans d'amélioration du lotissement sont en deuxième soumission et devraient être approuvés, avec la carte finale prête à être enregistrée dans les mois à venir. Ce projet comprend deux numéros de parcelle (APN) vendus ensemble, totalisant 9,12 acres. Le numéro de parcelle APN# 038-090-010 comprend 5 acres de terrain vacant et est proposé en conjonction avec la propriété adjacente au nord, APN# 038-090-009 (4,12 acres). Veuillez noter que la maison rouge située sur le numéro de parcelle APN# 038-090-009, au 16255 North D Street, n'est pas incluse dans la vente. Le vendeur conservera la maison ainsi qu'environ 1 acre de terrain, laissant environ 8 acres disponibles pour le lotissement en 42 parcelles, parfaites pour la construction de nouvelles résidences unifamiliales. Profitez de cette opportunité d'investissement remarquable dans un emplacement recherché, idéal pour créer une communauté résidentielle dynamique. Pour plus d'informations, veuillez nous contacter dès aujourd'hui.
Impôts fonciers
| Numéros de lot | Évaluation des bâtiments | 416 596 $ CAD | |
| Évaluation du terrain | 609 656 $ CAD | Évaluation totale | 1 026 252 $ CAD |
Impôts fonciers
Présenté par
Andrew Leonardo Properties
16227 D Street - 42 lots - Shovel Ready
Hmm, il semble y avoir eu une erreur lors de l’envoi de votre message. Veuillez réessayer.
Merci! Votre message a été envoyé.
