Votre courriel a été envoyé.
Urban District Flex Lofts 1624 E Washington St 635–4 213 pi² d'espace disponible • Phoenix, AZ 85034



Certaines informations ont été traduites automatiquement.
Faits saillants
- Édification de dessins industriels
- Utilisations créatives bienvenues
- Nouveau CVC, plomberie et électricité, et toiture
- Propriétaire local
Caractéristiques
Tous les espaces disponibles(3)
Afficher les taux de location en
- Espace
- Taille
- Terme
- Taux de location
- Utilisation de l’espace
- Aménagement
- Disponible
$2,750/Mo rent. Restaurant or bar use with large outdoor patio.
- Le taux comprend les services publics, les services de bâtiment et les dépenses immobilières.
- Climatisation centrale
- Partiellement construit comme Espace pour un restaurant ou un café
- Convient pour 3 à 8 personnes
2,063 SF
- Le taux comprend les services publics, les services de bâtiment et les dépenses immobilières.
- Climatisation centrale
- Disposition du plan d’étage ouverte
Rent is $1,475 per month. Small kitchenette with fridge and range. Studio space includes a private restroom with shower.
- Le taux comprend les services publics, les services de bâtiment et les dépenses immobilières.
- Cuisine
- Disposition du plan d’étage ouverte
- Salle de bains privée
| Espace | Taille | Terme | Taux de location | Utilisation de l’espace | Aménagement | Disponible |
| 1er étage, ste 100 | 878 pi² | Négociable | 51,50 $ CAD/pi²/an 4,29 $ CAD/pi²/mois 45 216 $ CAD/an 3 768 $ CAD/mois | Commerce de détail | construction partielle | Maintenant |
| 1er étage, ste 105 | 2 700 pi² | Négociable | 27,40 $ CAD/pi²/an 2,28 $ CAD/pi²/mois 73 980 $ CAD/an 6 165 $ CAD/mois | Bureau/Commerce de détail | construction partielle | Maintenant |
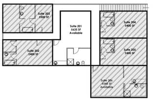
| 2e étage, ste 201 | 635 pi² | Négociable | 38,20 $ CAD/pi²/an 3,18 $ CAD/pi²/mois 24 254 $ CAD/an 2 021 $ CAD/mois | Bureau/Commerce de détail | selon spécifications | Maintenant |
1er étage, ste 100
| Taille |
| 878 pi² |
| Terme |
| Négociable |
| Taux de location |
| 51,50 $ CAD/pi²/an 4,29 $ CAD/pi²/mois 45 216 $ CAD/an 3 768 $ CAD/mois |
| Utilisation de l’espace |
| Commerce de détail |
| Aménagement |
| construction partielle |
| Disponible |
| Maintenant |
1er étage, ste 105
| Taille |
| 2 700 pi² |
| Terme |
| Négociable |
| Taux de location |
| 27,40 $ CAD/pi²/an 2,28 $ CAD/pi²/mois 73 980 $ CAD/an 6 165 $ CAD/mois |
| Utilisation de l’espace |
| Bureau/Commerce de détail |
| Aménagement |
| construction partielle |
| Disponible |
| Maintenant |
2e étage, ste 201
| Taille |
| 635 pi² |
| Terme |
| Négociable |
| Taux de location |
| 38,20 $ CAD/pi²/an 3,18 $ CAD/pi²/mois 24 254 $ CAD/an 2 021 $ CAD/mois |
| Utilisation de l’espace |
| Bureau/Commerce de détail |
| Aménagement |
| selon spécifications |
| Disponible |
| Maintenant |
1er étage, ste 100
| Taille | 878 pi² |
| Terme | Négociable |
| Taux de location | 51,50 $ CAD/pi²/an |
| Utilisation de l’espace | Commerce de détail |
| Aménagement | construction partielle |
| Disponible | Maintenant |
$2,750/Mo rent. Restaurant or bar use with large outdoor patio.
- Le taux comprend les services publics, les services de bâtiment et les dépenses immobilières.
- Partiellement construit comme Espace pour un restaurant ou un café
- Climatisation centrale
- Convient pour 3 à 8 personnes
1er étage, ste 105
| Taille | 2 700 pi² |
| Terme | Négociable |
| Taux de location | 27,40 $ CAD/pi²/an |
| Utilisation de l’espace | Bureau/Commerce de détail |
| Aménagement | construction partielle |
| Disponible | Maintenant |
2,063 SF
- Le taux comprend les services publics, les services de bâtiment et les dépenses immobilières.
- Disposition du plan d’étage ouverte
- Climatisation centrale
2e étage, ste 201
| Taille | 635 pi² |
| Terme | Négociable |
| Taux de location | 38,20 $ CAD/pi²/an |
| Utilisation de l’espace | Bureau/Commerce de détail |
| Aménagement | selon spécifications |
| Disponible | Maintenant |
Rent is $1,475 per month. Small kitchenette with fridge and range. Studio space includes a private restroom with shower.
- Le taux comprend les services publics, les services de bâtiment et les dépenses immobilières.
- Disposition du plan d’étage ouverte
- Cuisine
- Salle de bains privée
Aperçu de la propriété
Urban District est un réaménagement créatif de bureaux à l'aspect industriel. La propriété a un nouveau CVC en 2023, une nouvelle plomberie en 2023, une nouvelle électricité en 2024, un nouveau toit en 2022 et de nouvelles peintures murales à la fin de 2024. Chaque espace à louer a ses propres toilettes privées et au moins une place de stationnement. Les créatifs sont les bienvenus !
Faits sur l’installation entrepôt
Présenté par
Urban District Flex Lofts | 1624 E Washington St
Hmm, il semble y avoir eu une erreur lors de l’envoi de votre message. Veuillez réessayer.
Merci! Votre message a été envoyé.





