Se Connecter/S’inscrire
Votre courriel a été envoyé.
Certaines informations ont été traduites automatiquement.
Faits saillants de l'investissement
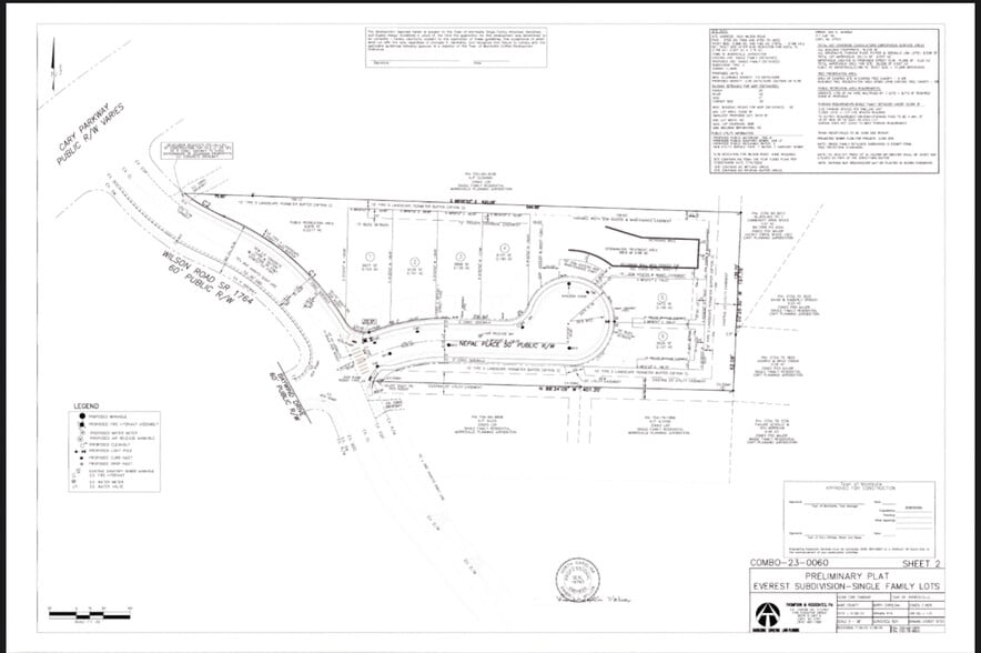
- Frontage on Wilson Rd.
- Approved Use: 6-lot single-family residential subdivision
Résumé de l'annonce
Looking for a small neighborhood developer/builder for a prime location in Morrisville. This parcel is waiting for final approval.
The price per buildable lot would be $191,667. Price point of homes could be $1,300,000 to $1,500,000 per home.
The price per buildable lot would be $191,667. Price point of homes could be $1,300,000 to $1,500,000 per home.
Faits sur la propriété Sous contrat
1 Lot disponible
Lot
| Prix | 1 587 805 $ CAD | Taille du lot | 1,83 AC |
| Prix par AC | 867 653,00 $ CAD |
| Prix | 1 587 805 $ CAD |
| Prix par AC | 867 653,00 $ CAD |
| Taille du lot | 1,83 AC |
Location: 1624 Wilson Rd 27513 Size: 1.83 acres Approved Use: 6-lot single-family residential subdivision Approved sewer permit, water permit, Letter of Conditional Construction Plan Approval, and Final Plan Set available
Description
Emplacement : 1624 Wilson Rd 27513 Superficie : 1,83 acres Permis d'égout approuvé, permis d'eau approuvé, lettre d'approbation conditionnelle du plan de construction et ensemble final des plans disponibles.
1 1
1 de 8
Vidéos
Visite extérieure 3D Matterport
Visite 3D Matterport
Photos
Vue depuis la rue
Rue
Carte
1 de 1
Présenté par
1624 Wilson Rd
Vous êtes déjà membre? Connectez-vous
Hmm, il semble y avoir eu une erreur lors de l’envoi de votre message. Veuillez réessayer.
Merci! Votre message a été envoyé.



