Votre courriel a été envoyé.
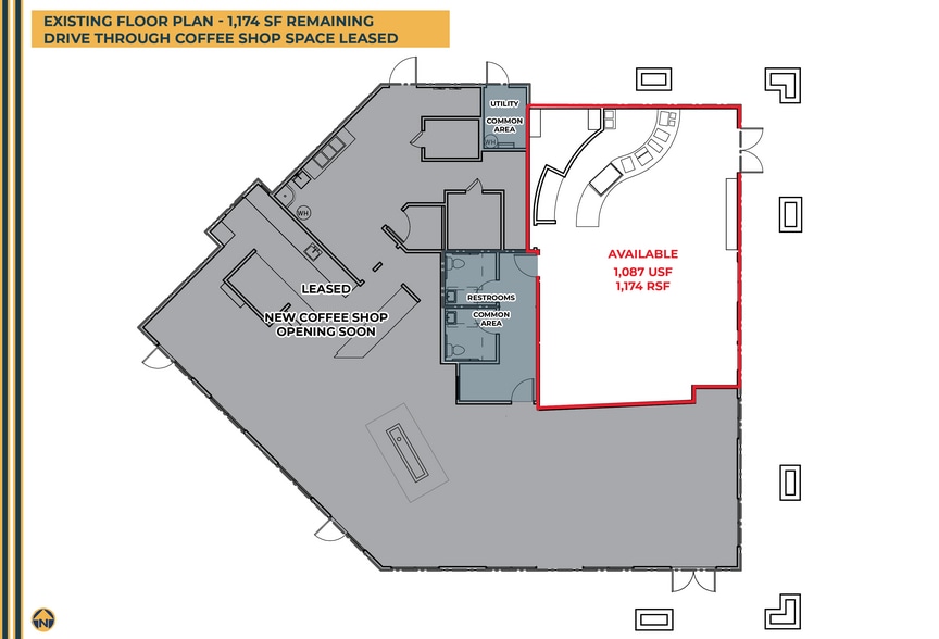
Join REV Collective - 1,174 SF Remaining 1630 S Eagle Rd 1 174 pi² d'espace disponible • Commerce de détail • Meridian, ID 83642



Certaines informations ont été traduites automatiquement.
Faits saillants
- Ancien espace de café et de vente au détail Lucky Perk
- Capot, piège à graisse, 2 toilettes, stationnement sur place, aires de signalisation des bâtiments et des monuments, aires de restauration en terrasse
- Les utilisations potentielles comprennent la conduite dans un restaurant, un café, des ventes au détail, des bureaux et d'autres utilisations liées aux services
- Angle dur signalisé des routes Eagle et Overland
- Promenade existante et accès à partir des routes Eagle et Overland
- Ne dérangez pas le locataire actuel, communiquez avec les agents pour discuter du taux de location négociable, des conditions, de l'allocation d'amélioration du locataire - en attente de vente
Disponibilité de l’espace (1)
Afficher les taux de location en
- Espace
- Taille
- Terme
- Taux de location
- Type de loyer
| Espace | Taille | Terme | Taux de location | Type de loyer | ||
| 1er étage, ste 175 | 1 174 pi² | Négociable | Sur demande Sur demande Sur demande Sur demande | Loyer hypernet |
1er étage, ste 175
Join REV Collective - A New Kind of Gathering Place - Amenities include dedicated entry, large open sales floors, large storefront glass, sales counter, 2 common area restrooms, on-site parking, building & monument signage areas, patio dining areas, and access from both Eagle & Overland Roads. Drive-thru space leased - new coffee shop opening soon
- Le taux de location ne comprend pas les services publics, les services de bâtiment ou les dépenses immobilières.
- Entièrement construit comme Espace de commerce de détail standard
- L’espace est une parcelle de terrain de cette propriété
- 1,174 SF REMAINING
- LEASE RATE & TERMS NEGOTIABLE
- FORMER LUCKY PERK SPACE LEASED TO REV COLLECTIVE
- 30 ON-SITE PARKING STALLS - 7.2/1,000 SF
- CITY OF MERIDIAN-C-C ZONING
- PATIO, SALES COUNTER, MONUMNENT SIGNAGE
Types de loyers
Le type et le montant du loyer que le locataire (preneur) est tenu de payer au propriétaire (bailleur) sur la durée du bail sont négociés avant la signature du bail par les deux parties. Le type de loyer varie selon les services fournis. Par exemple, le prix d’un loyer hypernet est habituellement inférieur à celui d’un bail à service complet puisque le locataire est tenu d’assumer des dépenses additionnelles par rapport au loyer de base. Contactez le courtier inscripteur pour tout connaître sur les frais connexes et additionnels associés à chaque type de loyer.
1. Service complet: Un taux de location qui comprend des services standards liés à l’immeuble fournis par le propriétaire dans le cadre d’une location annuelle de base.
2. Loyer supernet: Le locataire paie seulement deux des frais de l’immeuble. Le propriétaire et le locataire déterminent ces frais spécifiques avant la signature du bail.
3. Loyer hypernet: Un bail en vertu duquel le locataire est responsable de tous les frais liés à sa part proportionnelle d’occupation de l’immeuble.
4. Brut modifié: Le loyer brut modifié désigne un type général de taux de location dans lequel le locataire est habituellement responsable de sa part proportionnelle d’un ou de plusieurs frais. C’est le propriétaire qui paie les frais restants. Considérez les structures tarifaires courantes suivantes applicables aux loyers bruts modifiés: 4. Plus les services: Un type de bail brut modifié suivant lequel le locataire est responsable de sa part proportionnelle des coûts des services publics, en plus du loyer. 4. Plus le nettoyage: Un type de bail brut modifié suivant lequel le locataire est responsable de sa part proportionnelle des coûts de nettoyage, en plus du loyer. 4. Plus l'électricité: Un type de bail brut modifié suivant lequel le locataire est responsable de sa part proportionnelle des coûts d’électricité, en plus du loyer. 4. Plus l’électricité et le nettoyage: Un type de bail brut modifié dans lequel le locataire est responsable de sa part proportionnelle des coûts d’électricité et de nettoyage, en plus du loyer. 4. Plus les services publics et le nettoyage: Un type de bail brut modifié dans lequel le locataire est responsable de sa part proportionnelle des coûts des services publics et de nettoyage, en plus du loyer. 4. Bail industriel brut: Un type de bail brut modifié dans lequel le locataire paie un ou plusieurs des frais, en plus du loyer. Le propriétaire et le locataire déterminent ces frais spécifiques avant la signature du bail.
5. L’électricité est à la charge du locataire: Le propriétaire paie pour tous les services et le locataire est responsable de sa propre utilisation de l’éclairage et des prises électriques dans l’espace qu’il occupe.
6. Négociable ou sur demande: Cette option est utilisée lorsque le contact de location ne précise pas le type de loyer ou de service.
7. À déterminer: À déterminer ; utilisé pour les immeubles dont le type de services ou de loyer n’est pas connu, souvent quand l’immeuble n’est pas encore construit.
Sélectionner des locataires à Join REV Collective - 1,174 SF Remaining
- REV Collective
Faits sur la propriété
| Superficie totale disponible | 1 174 pi² | Superficie totale du terrain | 0,87 AC |
| Type de propriété | Commerce de détail | Année de construction | 2004 |
| Sous-type de propriété | Restaurant | Ratio de stationnement | 7,2/1 000 pi² |
| Superficie commerciale brute | 4 167 pi² |
| Superficie totale disponible | 1 174 pi² |
| Type de propriété | Commerce de détail |
| Sous-type de propriété | Restaurant |
| Superficie commerciale brute | 4 167 pi² |
| Superficie totale du terrain | 0,87 AC |
| Année de construction | 2004 |
| Ratio de stationnement | 7,2/1 000 pi² |
À propos de la propriété
Ancien espace de café et de vente au détail Lucky Perk disponible à la location dans le coin dur signalisé d'Eagle & Overland Roads. Les équipements comprennent cinq entrées, de grands étages de vente ouverts, de grandes vitrines, une hotte, un piège à graisse, 2 toilettes, un parking sur place, des zones de signalisation pour les bâtiments et les monuments, des aires de restauration sur le patio, un accès à la route existante et un accès depuis les routes Eagle et Overland. Les utilisations possibles comprennent la conduite par l'entremise de restaurants, de cafés, de ventes au détail, de bureaux et d'autres utilisations liées aux services. Les détaillants, restaurants et générateurs de trafic environnants comprennent les parcs d'affaires Silverstone et El Dorado, Courtyard by Marriott, Topgolf, Hyatt Place, WoodSpring Suites, TownePlace Suites, Taco Bell, Jimmy John's, Jack in the Box et Chicago Connection. Situé à la sortie 46 de l'Interstate 84, entre Meridian Road et le connecteur Flying Y/I184 menant au centre-ville de Boise. Forte démographie : 54 116 employés dans un rayon de 3 milles et 79 355 employés dans un temps de conduite de 10 minutes. Ne dérangez pas le locataire actuel, communiquez avec les agents pour discuter du taux de location négociable, des conditions, de l'allocation d'amélioration des locataires, des utilisations potentielles et pour planifier une visite dès aujourd'hui ! Vente en attente.
- Lot de coin
- Enseigne sur pylône
- Restaurant
- Affichage
- Intersection avec signalisation
- Service au volant
- Affichage sur monument
- Climatisation
Principaux détaillants à proximité
Présenté par
Join REV Collective - 1,174 SF Remaining | 1630 S Eagle Rd
Hmm, il semble y avoir eu une erreur lors de l’envoi de votre message. Veuillez réessayer.
Merci! Votre message a été envoyé.
