Votre courriel a été envoyé.
Certaines informations ont été traduites automatiquement.
Faits saillants du parc
- Nouvelle construction avec des finitions haut de gamme en place et un plan d'étage efficace disponible
- Parfaitement placé sur Prosper Trail
- Possibilités de suite simple et double disponibles
- À proximité de la communauté planifiée de Star Trail
- Proximité de la voie de péage Dallas North, de l'autoroute 380 des États-Unis et du « corridor North Platinum » de Frisco
- Abondance de signalisation pour le stationnement et le bâtiment disponibles
Faits sur le parc
Tous les espaces disponibles(4)
Afficher les taux de location en
- Espace
- Taille
- Terme
- Taux de location
- Utilisation de l’espace
- Aménagement
- Disponible
Located in Prosper, The Offices at Prosper Trail will consist of 14 professional office buildings upon completion. It is located near the northwest intersection of Prosper Trail and Shawnee Trail and minutes from the Dallas North Tollway and US Hwy 380. This double suite provides six offices (with the option to make the second entrance an additional office or open area), two conference rooms, two restrooms, two storage closets, and an open kitchen. Tenant controlled HVAC to meet the needs of the business. Building signage available. Call today for a tour!
- Le taux de location ne comprend pas les services publics, les services de bâtiment ou les dépenses immobilières.
- Convient pour 6 à 19 personnes
- 2 salles de conférence
- Aire de réception
- Salle de bains privée
- Éclairage encastré
- Planchers de bois franc
- Accessible aux fauteuils roulants
- Double office opportunity
- Entièrement construit comme Bureau standard
- 6 bureaux privés
- Espace en excellent état
- Air central et chauffage
- Hauts plafonds
- CVCA disponible après les heures de travail
- Détecteur de fumée
- $8,200 - $8,400 + Elec. for Lease
- Tenant controlled HVAC
Located in Prosper, The Offices at Prosper Trail consists of 14 professional office buildings. It is located near the northwest intersection of Prosper Trail and Shawnee Trail and minutes from the Dallas North Tollway and US Hwy 380. This single corner suite provides three offices, one conference room, a restroom, a storage closet, and a kitchen. Tenant controlled HVAC to meet the needs of the business. Building signage available. Call today for a tour!
- Le taux de location ne comprend pas les services publics, les services de bâtiment ou les dépenses immobilières.
- Convient pour 3 à 10 personnes
- 1 salle de conférence
- Clé en main
- Aire de réception
- Lumière naturelle
- Planchers de bois franc
- Entièrement construit comme Bureau standard
- 3 bureaux privés
- Plafonds finis: 10’
- Air central et chauffage
- Espace en coin
- CVCA disponible après les heures de travail
| Espace | Taille | Terme | Taux de location | Utilisation de l’espace | Aménagement | Disponible |
| 1er étage, ste 1320 | 2 374 pi² | 3-10 ans | 43,79 $ CAD/pi²/an 3,65 $ CAD/pi²/mois 103 962 $ CAD/an 8 664 $ CAD/mois | Bureau/Médical | construction complète | Maintenant |
| 1er étage, ste 1340 | 1 187 pi² | 3-10 ans | 43,79 $ CAD/pi²/an 3,65 $ CAD/pi²/mois 51 981 $ CAD/an 4 332 $ CAD/mois | Bureau | construction complète | Maintenant |
1630 W Prosper Trl - 1er étage - ste 1320
1630 W Prosper Trl - 1er étage - ste 1340
- Espace
- Taille
- Terme
- Taux de location
- Utilisation de l’espace
- Aménagement
- Disponible
Located in Prosper, The Offices at Prosper Trail consists of 14 professional office buildings. It is located near the northwest intersection of Prosper Trail and Shawnee Trail and minutes from the Dallas North Tollway and US Hwy 380. This is the perfect sublease opportunity with the ability to expand the lease term. This single corner suite provides three offices, one conference room, a restroom, a storage closet, and a kitchen. Tenant controlled HVAC to meet the needs of the business. Building signage available. Call today for a tour!
- Le taux de location ne comprend pas les services publics, les services de bâtiment ou les dépenses immobilières.
- 3 bureaux privés
- Espace en excellent état
- Aire de réception
- Complètement tapissé
- Éclairage encastré
- CVCA disponible après les heures de travail
- Détecteur de fumée
- $3,465.00 + Electric for Sublease
- Convient pour 3 à 10 personnes
- 1 salle de conférence
- Air central et chauffage
- Salle de bains privée
- Hauts plafonds
- Lumière naturelle
- Planchers de bois franc
- Accessible aux fauteuils roulants
| Espace | Taille | Terme | Taux de location | Utilisation de l’espace | Aménagement | Disponible |
| 1er étage, ste 440 | 1 187 pi² | Négociable | 34,90 $ CAD/pi²/an 2,91 $ CAD/pi²/mois 41 422 $ CAD/an 3 452 $ CAD/mois | Bureau | construction complète | Maintenant |
1630 W Prosper Trl - 1er étage - ste 440
- Espace
- Taille
- Terme
- Taux de location
- Utilisation de l’espace
- Aménagement
- Disponible
Located in Prosper, The Offices at Prosper Trail will consist of 14 professional office buildings upon completion. It is located near the northwest intersection of Prosper Trail and Shawnee Trail and minutes from the Dallas North Tollway and US Hwy 380. This single suite provides three offices, one conference room, a restroom, a storage closet, and a kitchen. Tenant controlled HVAC to meet the needs of the business. Building signage available. Call today for a tour!
- Le taux de location ne comprend pas les services publics, les services de bâtiment ou les dépenses immobilières.
- Convient pour 3 à 10 personnes
- 1 salle de conférence
- Aire de réception
- Salle de bains privée
- Hauts plafonds
- CVCA disponible après les heures de travail
- Détecteur de fumée
- $3,900 - $4,200 + E for Lease
- Entièrement construit comme Bureau standard
- 3 bureaux privés
- Espace en excellent état
- Air central et chauffage
- Complètement tapissé
- Éclairage encastré
- Planchers de bois franc
- Accessible aux fauteuils roulants
- Tenant controlled HVAC
| Espace | Taille | Terme | Taux de location | Utilisation de l’espace | Aménagement | Disponible |
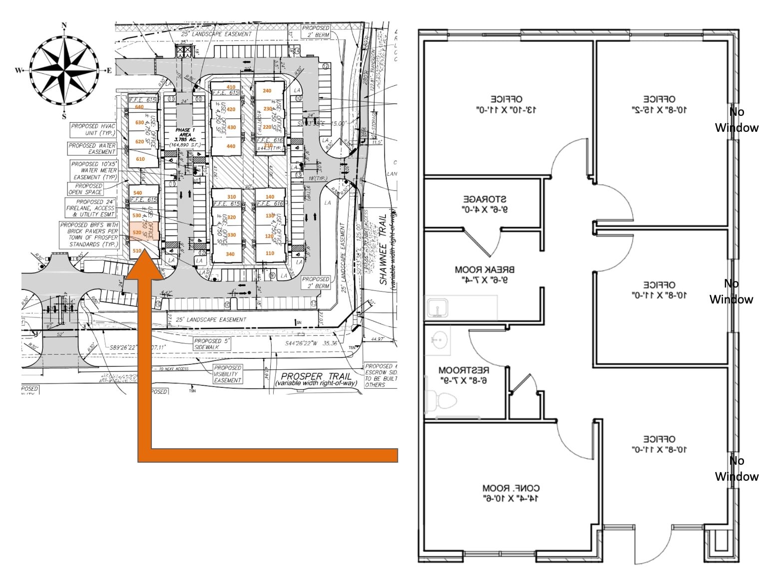
| 1er étage, ste 520 | 1 187 pi² | 3-10 ans | 41,05 $ CAD/pi²/an 3,42 $ CAD/pi²/mois 48 732 $ CAD/an 4 061 $ CAD/mois | Bureau/Médical | construction complète | Maintenant |
1630 W Prosper Trl - 1er étage - ste 520
1630 W Prosper Trl - 1er étage - ste 1320
| Taille | 2 374 pi² |
| Terme | 3-10 ans |
| Taux de location | 43,79 $ CAD/pi²/an |
| Utilisation de l’espace | Bureau/Médical |
| Aménagement | construction complète |
| Disponible | Maintenant |
Located in Prosper, The Offices at Prosper Trail will consist of 14 professional office buildings upon completion. It is located near the northwest intersection of Prosper Trail and Shawnee Trail and minutes from the Dallas North Tollway and US Hwy 380. This double suite provides six offices (with the option to make the second entrance an additional office or open area), two conference rooms, two restrooms, two storage closets, and an open kitchen. Tenant controlled HVAC to meet the needs of the business. Building signage available. Call today for a tour!
- Le taux de location ne comprend pas les services publics, les services de bâtiment ou les dépenses immobilières.
- Entièrement construit comme Bureau standard
- Convient pour 6 à 19 personnes
- 6 bureaux privés
- 2 salles de conférence
- Espace en excellent état
- Aire de réception
- Air central et chauffage
- Salle de bains privée
- Hauts plafonds
- Éclairage encastré
- CVCA disponible après les heures de travail
- Planchers de bois franc
- Détecteur de fumée
- Accessible aux fauteuils roulants
- $8,200 - $8,400 + Elec. for Lease
- Double office opportunity
- Tenant controlled HVAC
1630 W Prosper Trl - 1er étage - ste 1340
| Taille | 1 187 pi² |
| Terme | 3-10 ans |
| Taux de location | 43,79 $ CAD/pi²/an |
| Utilisation de l’espace | Bureau |
| Aménagement | construction complète |
| Disponible | Maintenant |
Located in Prosper, The Offices at Prosper Trail consists of 14 professional office buildings. It is located near the northwest intersection of Prosper Trail and Shawnee Trail and minutes from the Dallas North Tollway and US Hwy 380. This single corner suite provides three offices, one conference room, a restroom, a storage closet, and a kitchen. Tenant controlled HVAC to meet the needs of the business. Building signage available. Call today for a tour!
- Le taux de location ne comprend pas les services publics, les services de bâtiment ou les dépenses immobilières.
- Entièrement construit comme Bureau standard
- Convient pour 3 à 10 personnes
- 3 bureaux privés
- 1 salle de conférence
- Plafonds finis: 10’
- Clé en main
- Air central et chauffage
- Aire de réception
- Espace en coin
- Lumière naturelle
- CVCA disponible après les heures de travail
- Planchers de bois franc
1630 W Prosper Trl - 1er étage - ste 440
| Taille | 1 187 pi² |
| Terme | Négociable |
| Taux de location | 34,90 $ CAD/pi²/an |
| Utilisation de l’espace | Bureau |
| Aménagement | construction complète |
| Disponible | Maintenant |
Located in Prosper, The Offices at Prosper Trail consists of 14 professional office buildings. It is located near the northwest intersection of Prosper Trail and Shawnee Trail and minutes from the Dallas North Tollway and US Hwy 380. This is the perfect sublease opportunity with the ability to expand the lease term. This single corner suite provides three offices, one conference room, a restroom, a storage closet, and a kitchen. Tenant controlled HVAC to meet the needs of the business. Building signage available. Call today for a tour!
- Le taux de location ne comprend pas les services publics, les services de bâtiment ou les dépenses immobilières.
- Convient pour 3 à 10 personnes
- 3 bureaux privés
- 1 salle de conférence
- Espace en excellent état
- Air central et chauffage
- Aire de réception
- Salle de bains privée
- Complètement tapissé
- Hauts plafonds
- Éclairage encastré
- Lumière naturelle
- CVCA disponible après les heures de travail
- Planchers de bois franc
- Détecteur de fumée
- Accessible aux fauteuils roulants
- $3,465.00 + Electric for Sublease
1630 W Prosper Trl - 1er étage - ste 520
| Taille | 1 187 pi² |
| Terme | 3-10 ans |
| Taux de location | 41,05 $ CAD/pi²/an |
| Utilisation de l’espace | Bureau/Médical |
| Aménagement | construction complète |
| Disponible | Maintenant |
Located in Prosper, The Offices at Prosper Trail will consist of 14 professional office buildings upon completion. It is located near the northwest intersection of Prosper Trail and Shawnee Trail and minutes from the Dallas North Tollway and US Hwy 380. This single suite provides three offices, one conference room, a restroom, a storage closet, and a kitchen. Tenant controlled HVAC to meet the needs of the business. Building signage available. Call today for a tour!
- Le taux de location ne comprend pas les services publics, les services de bâtiment ou les dépenses immobilières.
- Entièrement construit comme Bureau standard
- Convient pour 3 à 10 personnes
- 3 bureaux privés
- 1 salle de conférence
- Espace en excellent état
- Aire de réception
- Air central et chauffage
- Salle de bains privée
- Complètement tapissé
- Hauts plafonds
- Éclairage encastré
- CVCA disponible après les heures de travail
- Planchers de bois franc
- Détecteur de fumée
- Accessible aux fauteuils roulants
- $3,900 - $4,200 + E for Lease
- Tenant controlled HVAC
Aperçu du parc
Les bureaux de Prosper Trail sont un environnement de bureaux haut de gamme et professionnel composé de 6 immeubles. Les bureaux de Prosper Trail sont parfaitement situés sur Prosper Trail, à l'intersection nord-est de Prosper Trail et Shawnee Trail. Il se trouve juste à l'ouest de la voie de péage Dallas North. Cet emplacement est idéal pour tout cabinet professionnel ou médical grâce à sa proximité de la route à péage nord de Dallas et de la route 380 américaine pour desservir les marchés Prosper, Celina, McKinney et Frisco. Ce bureau offre un emplacement privilégié près de plusieurs commerces de détail et restaurants et lieux d'événements, dont The Gates of Prosper et le siège social de la PGA. Signalisation du bâtiment disponible. Communiquez avec nous dès aujourd'hui pour une visite !
- Accès 24 heures
- Accès contrôlé
- Lot de coin
- Affichage
- CVCA contrôlé par le locataire
- Climatisation
Présenté par
The Offices at Prosper Trail | Prosper, TX 75078
Hmm, il semble y avoir eu une erreur lors de l’envoi de votre message. Veuillez réessayer.
Merci! Votre message a été envoyé.













