Se Connecter/S’inscrire
Votre courriel a été envoyé.
16321 Slater Rd - 2.5 Acre Ag-2 Zoned - with Dual Residences! Immeuble de 3 284 pi² • Spécialité • À vendre 1 227 158 $ CAD • North Fort Myers, FL 33917



Certaines informations ont été traduites automatiquement.
Faits saillants de l'investissement
- Egress from both Slater Rd. and Shelby Lane
- Great for Small business/living onsite
- Fully fenced with gated access
Résumé de l'annonce
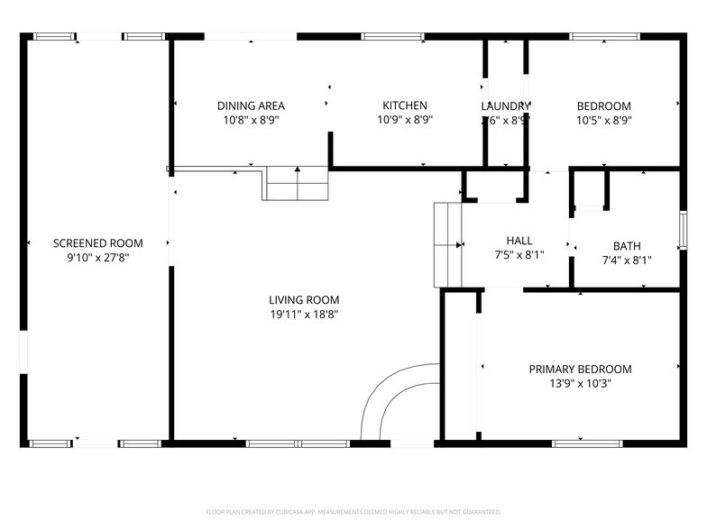
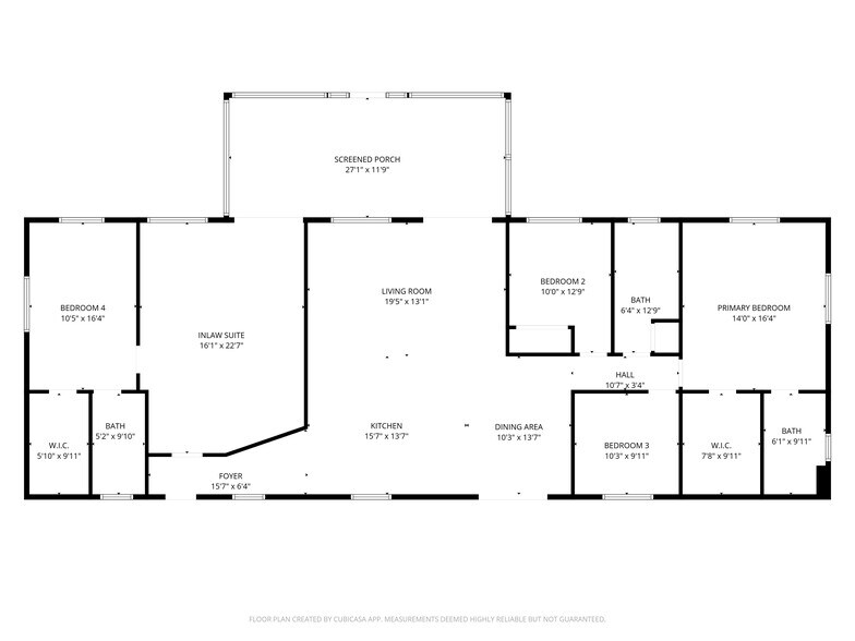
2.5-Acre AG-2 Zoned Property with Dual Residences – Ideal for Church, Retreat, or Live/Work Use
Two separate residential structures, main house has pool and separate apartment
AG-2 zoning
Suitable for:
Small business operations
Religious facility
Retreat center
Group housing / recovery use
2 miles from I75 exit 143
Two separate residential structures, main house has pool and separate apartment
AG-2 zoning
Suitable for:
Small business operations
Religious facility
Retreat center
Group housing / recovery use
2 miles from I75 exit 143
Faits sur la propriété
1 1
Plutôt praticable à pied
30/100
Exceptionnellement facile d’accès en voiture
100/100
Transports en commun limités
20/100
Plutôt praticable en vélo
50/100
Impôts fonciers
| Numéro de lot | 30-43-25-00-00001.0310 | Évaluation des bâtiments | 667 138 $ CAD |
| Évaluation du terrain | 160 915 $ CAD | Évaluation totale | 828 052 $ CAD |
Impôts fonciers
Numéro de lot
30-43-25-00-00001.0310
Évaluation du terrain
160 915 $ CAD
Évaluation des bâtiments
667 138 $ CAD
Évaluation totale
828 052 $ CAD
1 de 6
Vidéos
Visite extérieure 3D Matterport
Visite 3D Matterport
Photos
Vue depuis la rue
Rue
Carte
1 de 1
Présenté par
16321 Slater Rd - 2.5 Acre Ag-2 Zoned - with Dual Residences!
Vous êtes déjà membre? Connectez-vous
Hmm, il semble y avoir eu une erreur lors de l’envoi de votre message. Veuillez réessayer.
Merci! Votre message a été envoyé.
