Votre courriel a été envoyé.
Fort Lee Towne Center 1638-1642 Schlosser St 1 700–6 000 pi² d'espace disponible • Commerce de détail • Fort Lee, NJ 07024



Certaines informations ont été traduites automatiquement.
Faits saillants
- Stationnement sur le site sur deux niveaux. Le niveau inférieur est couvert.
Disponibilité des espaces (2)
Afficher les taux de location en
- Espace
- Taille
- Terme
- Taux de location
- Type de loyer
| Espace | Taille | Terme | Taux de location | Type de loyer | ||
| RDC | 1 700 à 4 000 pi² | Négociable | Sur demande Sur demande Sur demande Sur demande | À déterminer | ||
| RDC, ste 176 Main Street | 2 000 pi² | Négociable | Sur demande Sur demande Sur demande Sur demande | À déterminer |
1638-1642 Schlosser St - RDC
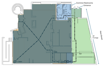
Delivery with KITCHEN HOOD/VENTING. The best signage/visibility within the Center. Surface parking.
- Entièrement construit comme Espace de commerce de détail standard
- Situé en ligne avec d’autres commerces de détail
- Air central et chauffage
- Détecteur de fumée
1638-1642 Schlosser St - RDC - ste 176 Main Street
90' FRONTAGE, FULLY VENTED/HOODED, LIQUOR LICENSE (if needed) on Main Street in downtown Fort Lee sitting at the foot of the George Washington Bridge, surrounded by dense and affluent neighborhood of northern Bergen County. SURFACE PARKING. Across of Hudson Lights complex anchored by iPIC. Surrounded by thousands of apartments, The Modern (900 units), Fiat House (309 units), Twenty50 (194 units), Hudson Lights (276 units), to name a few!
- Entièrement construit comme Espace pour un restaurant ou un café
- Espace embout très recherché
Types de loyers
Le type et le montant du loyer que le locataire (preneur) est tenu de payer au propriétaire (bailleur) sur la durée du bail sont négociés avant la signature du bail par les deux parties. Le type de loyer varie selon les services fournis. Par exemple, le prix d’un loyer hypernet est habituellement inférieur à celui d’un bail à service complet puisque le locataire est tenu d’assumer des dépenses additionnelles par rapport au loyer de base. Contactez le courtier inscripteur pour tout connaître sur les frais connexes et additionnels associés à chaque type de loyer.
1. Service complet: Un taux de location qui comprend des services standards liés à l’immeuble fournis par le propriétaire dans le cadre d’une location annuelle de base.
2. Loyer supernet: Le locataire paie seulement deux des frais de l’immeuble. Le propriétaire et le locataire déterminent ces frais spécifiques avant la signature du bail.
3. Loyer hypernet: Un bail en vertu duquel le locataire est responsable de tous les frais liés à sa part proportionnelle d’occupation de l’immeuble.
4. Brut modifié: Le loyer brut modifié désigne un type général de taux de location dans lequel le locataire est habituellement responsable de sa part proportionnelle d’un ou de plusieurs frais. C’est le propriétaire qui paie les frais restants. Considérez les structures tarifaires courantes suivantes applicables aux loyers bruts modifiés: 4. Plus les services: Un type de bail brut modifié suivant lequel le locataire est responsable de sa part proportionnelle des coûts des services publics, en plus du loyer. 4. Plus le nettoyage: Un type de bail brut modifié suivant lequel le locataire est responsable de sa part proportionnelle des coûts de nettoyage, en plus du loyer. 4. Plus l'électricité: Un type de bail brut modifié suivant lequel le locataire est responsable de sa part proportionnelle des coûts d’électricité, en plus du loyer. 4. Plus l’électricité et le nettoyage: Un type de bail brut modifié dans lequel le locataire est responsable de sa part proportionnelle des coûts d’électricité et de nettoyage, en plus du loyer. 4. Plus les services publics et le nettoyage: Un type de bail brut modifié dans lequel le locataire est responsable de sa part proportionnelle des coûts des services publics et de nettoyage, en plus du loyer. 4. Bail industriel brut: Un type de bail brut modifié dans lequel le locataire paie un ou plusieurs des frais, en plus du loyer. Le propriétaire et le locataire déterminent ces frais spécifiques avant la signature du bail.
5. L’électricité est à la charge du locataire: Le propriétaire paie pour tous les services et le locataire est responsable de sa propre utilisation de l’éclairage et des prises électriques dans l’espace qu’il occupe.
6. Négociable ou sur demande: Cette option est utilisée lorsque le contact de location ne précise pas le type de loyer ou de service.
7. À déterminer: À déterminer ; utilisé pour les immeubles dont le type de services ou de loyer n’est pas connu, souvent quand l’immeuble n’est pas encore construit.
Sélectionner des locataires à Fort Lee Towne Center
- Locataire
- Description
- Emplacements US
- Portée
- Above All Fitness
- Entraînement physique
- 1
- Local
- BCD Tofu House
- Restaurant
- 16
- National
- Choice Total Pain Clinic Professional
- Soins de santé et assistance sociale
- 1
- Local
- Cosmos Boutique
- Autres détaillants
- 1
- National
- Hudson Wine Market Inc
- Alcool
- -
- Local
- Sprint Store
- Autres détaillants
- 5 619
- International
| Locataire | Description | Emplacements US | Portée |
| Above All Fitness | Entraînement physique | 1 | Local |
| BCD Tofu House | Restaurant | 16 | National |
| Choice Total Pain Clinic Professional | Soins de santé et assistance sociale | 1 | Local |
| Cosmos Boutique | Autres détaillants | 1 | National |
| Hudson Wine Market Inc | Alcool | - | Local |
| Sprint Store | Autres détaillants | 5 619 | International |
Faits sur la propriété
| Superficie totale disponible | 6 000 pi² | Propriétés du centre | 1 |
| Min. divisible | 1 700 pi² | Superficie commerciale brute | 64 716 pi² |
| Type de centre | Centre de voisinage | Superficie totale du terrain | 2,60 AC |
| Stationnement | 150 places | Année de construction | 2002 |
| Superficie totale disponible | 6 000 pi² |
| Min. divisible | 1 700 pi² |
| Type de centre | Centre de voisinage |
| Stationnement | 150 places |
| Propriétés du centre | 1 |
| Superficie commerciale brute | 64 716 pi² |
| Superficie totale du terrain | 2,60 AC |
| Année de construction | 2002 |
À propos de la propriété
Emplacement rare au centre-ville de Fort Lee offrant une visibilité exceptionnelle. Situé au pied du pont George Washington (GWB), avec des milliers d'appartements à quelques pâtés de maisons. Local commercial au rez-de-chaussée de 4950 pi² disponible, ainsi qu’un espace commercial au 2e étage de 12 864 pi². Le 2e étage est entièrement aménagé en restaurant/bar (anciennement utilisé pour un concept de simulateur de golf). Permis d’alcool disponible. Stationnement sur place. Ce centre de quartier est adjacent au complexe Hudson Lights, qui comprend 150 000 pi² de commerces de détail avec iPic Theaters et Paris Baguette comme locataires principaux, ainsi que 376 appartements de luxe au-dessus. Le complexe The Modern offre environ 2000 unités de luxe à un pâté de maisons. Opportunité idéale pour divers concepts de divertissement avec permis d’alcool.
- Climatisation
Principaux détaillants à proximité
Présenté par
Fort Lee Towne Center | 1638-1642 Schlosser St
Hmm, il semble y avoir eu une erreur lors de l’envoi de votre message. Veuillez réessayer.
Merci! Votre message a été envoyé.







