Votre courriel a été envoyé.
1650 Rue Saint François Xavier
Trois-Rivières, QC G9A 3M2
Industriel Propriété À louer
·
29 168 pi²

Certaines informations ont été traduites automatiquement.
Faits saillants
- Emplacement de choix près du centre-ville de Trois-Rivières avec un accès facile aux services de la ville.
- Des hauteurs de plafond dégagées de 16 à 18 pieds conviennent à une variété d'usages industriels.
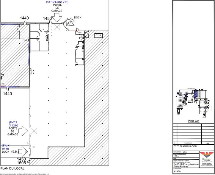
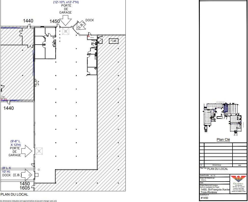
- Équipé de plusieurs portes de garage, quais de chargement et une porte d'accès pour véhicules pour une flexibilité opérationnelle.
- Des tailles de baies polyvalentes de 30’ x 30’, 30’ x 37’ et 25’ x 16’ sont idéales pour l'entreposage ou la fabrication légère.
Caractéristiques
Aperçu de la propriété
Cette installation industrielle et d'entreposage est idéalement située près du centre-ville de Trois-Rivières, offrant un accès pratique aux services municipaux et aux principales routes de transport. Le bâtiment dispose de plusieurs portes de garage et quais de chargement, ainsi qu'une porte au niveau du sol pour des opérations flexibles. Avec des hauteurs libres sous plafond variant de 16 à 18 pieds, l'espace peut accueillir une variété d'usages industriels. Les baies sont disponibles dans des configurations de 30’ x 30’, 30’ x 37’ et 25’ x 16’, offrant des aménagements adaptables pour les besoins d'entreposage, de fabrication légère ou de distribution. La propriété est actuellement disponible et prête à être occupée.
