Votre courriel a été envoyé.
1660 Waterville Rd
Macon-Bibb, GA 31206
1660 Waterville Road · Industriel Propriété À louer
·
24 000 pi²


Certaines informations ont été traduites automatiquement.
Faits saillants
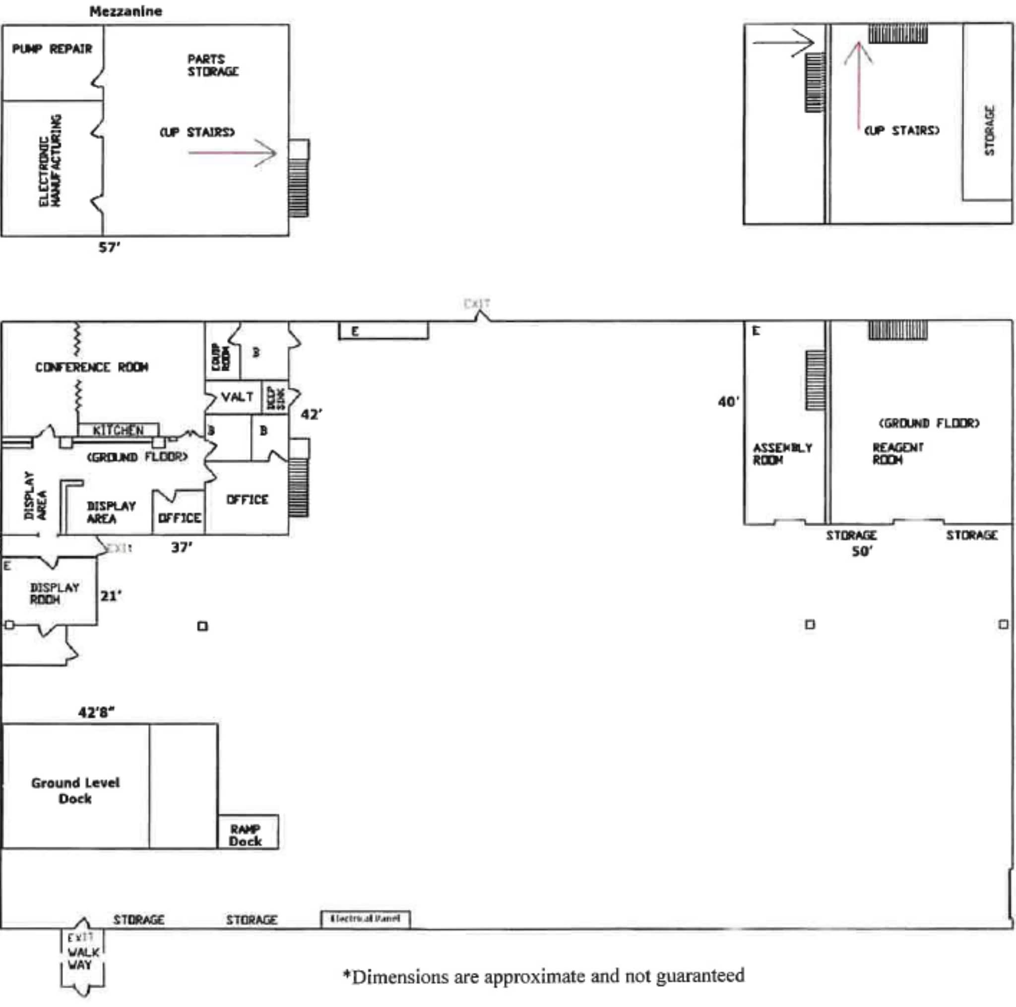
- Warehouse Space 21000 SF and Office Area 3000 SF
- Three Phase Power On-Site
- Two 12' X 15' Doors with One 8' X 8' Rear Door with Rail Access
- Additional Office Space with 22000 SF of Space Adjacent to Warehouse
- Ceiling Height 20'
- Air Conditioned Office Space
Caractéristiques
Aperçu de la propriété
Warehouse area is 21,000 SF and office area is 3,000 SF for a total of 24,000 SF. There is an additional 22,000 SF office building located adjacent to the warehouse that can be utilized as and additional office space or removed to accommodate a large lay down yard, equipment storage, or truck parking. Three phase power to site with LED throughout, an infrared heating system and a Dry sprinkler system. Ceiling height is approximately 20’ with 40’ X 60’ column spacing supporting a flexible warehouse layout. The building does feature two 12’ X 15’ doors where the center column can be raised to create one large opening for oversized access. Loading includes one ground-level door and one ramped dock for versatile truck and equipment access. There is an additional 8’ X 8’ rear door with rail access/rail spur capability (the service can be restored). The yard is accessible for 53’ trailers with a fenced parking area in front of the building.
