Votre courriel a été envoyé.
5,700SF FOR LEASE (3EA) 14’X14’ DID’S 16726 Cherry Creek Ct 5 700 pi² d'espace disponible • Industriel • Joliet, IL 60433



Certaines informations ont été traduites automatiquement.
Faits saillants
- (3EA) QUADAS DE 14 PI X 14 PI — CONDUIRE PAR LA BAIE JUSQU'À L'ESPACE DE LA COUR ARRIÈRE
- espace dans la cour arrière (76 pi x 42 pi)
- Plafonds de 18 pi
- In floor heat
Caractéristiques
Tous les espaces disponibles(1)
Afficher les taux de location en
- Espace
- Taille
- Terme
- Taux de location
- Utilisation de l’espace
- Aménagement
- Disponible
- Le taux inscrit peut ne pas comprendre certains services publics, les services de bâtiment et les dépenses immobilières.
- 3 accès plain-pied
- Comprend 700 pi² d’espace de bureau dédié
- Espace en excellent état
| Espace | Taille | Terme | Taux de location | Utilisation de l’espace | Aménagement | Disponible |
| 1er étage | 5 700 pi² | Négociable | 16,50 $ CAD/pi²/an 1,37 $ CAD/pi²/mois 94 047 $ CAD/an 7 837 $ CAD/mois | Industriel | - | Maintenant |
1er étage
| Taille |
| 5 700 pi² |
| Terme |
| Négociable |
| Taux de location |
| 16,50 $ CAD/pi²/an 1,37 $ CAD/pi²/mois 94 047 $ CAD/an 7 837 $ CAD/mois |
| Utilisation de l’espace |
| Industriel |
| Aménagement |
| - |
| Disponible |
| Maintenant |
1er étage
| Taille | 5 700 pi² |
| Terme | Négociable |
| Taux de location | 16,50 $ CAD/pi²/an |
| Utilisation de l’espace | Industriel |
| Aménagement | - |
| Disponible | Maintenant |
- Le taux inscrit peut ne pas comprendre certains services publics, les services de bâtiment et les dépenses immobilières.
- Comprend 700 pi² d’espace de bureau dédié
- 3 accès plain-pied
- Espace en excellent état
Aperçu de la propriété
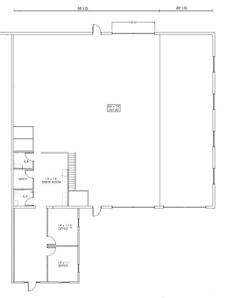
Entrepôt de 5 700 p2. 13,50 $sf brut modifié ou 6 412,50$ par mois 16726 Ouest Cherry Creek Ct Joliet, Il 60433 Parc d'affaires Cherry Creek (3ea) Portes basculantes de 14 pi x 14 pi avec ouvertures, une baie d'entraînement menant à l'espace de la cour arrière (76 pi x 42 pi), plafonds de 18 pi, entrepôt (76 pi x 66 pi) chauffant au sol dans le sol des ateliers en béton, baie séparée de 20 pi x 66 pi pouvant être enlevée, éclairage LED, électricité triphasée de 200 ampères, bureaux de 700 +/-pi2. (2ea) bureaux privés, aire de réception, salle de repos, deux toilettes pour personnes handicapées, entreposage en mezzanine au-dessus du bureau et bureau privé du 2e étage, allée en béton et stationnement. I-1 Zonage non constitué en société Comté de Wil Pas de semi-réparation ou de semi-réparation
Faits sur l’installation entrepôt
Présenté par
5,700SF FOR LEASE (3EA) 14’X14’ DID’S | 16726 Cherry Creek Ct
Hmm, il semble y avoir eu une erreur lors de l’envoi de votre message. Veuillez réessayer.
Merci! Votre message a été envoyé.

