Votre courriel a été envoyé.
170 Maiden Ln 7 329–22 021 pi² d'espace disponible • Bureau • San Francisco, CA 94108



Certaines informations ont été traduites automatiquement.
Faits saillants
- Emplacement de Union Square
- Large operable windows provide abundant natural light throughout the space.
- Convenient parking options located nearby for added accessibility.
- Accès facile aux transports en commun
- High ceilings and open layouts allow for flexible workspace design.
Tous les espaces disponibles(3)
Afficher les taux de location en
- Espace
- Taille
- Terme
- Taux de location
- Utilisation de l’espace
- Aménagement
- Disponible
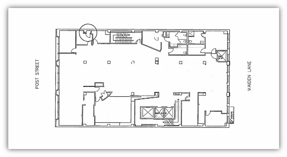
Full floors are available for lease in a prime Union Square location, offering easy access to public transportation and a variety of nearby amenities. The space features large operable windows that provide abundant natural light, along with high ceilings that enhance the open, airy atmosphere. On-site property management ensures seamless service, while direct access to Maiden Lane offers convenience. Strong ownership and convenient parking nearby further add to the appeal of these available floors on both the 3rd and 6th levels.
- Le taux comprend les services publics, les services de bâtiment et les dépenses immobilières.
- Disposition du plan d’étage ouverte en général
- 4 salles de conférence
- Plafonds finis: 11’
- Climatisation centrale
- Partiellement construit comme Bureau standard
- 2 bureaux privés
- 2 postes de travail
- Espace en excellent état
- prime Union Square location
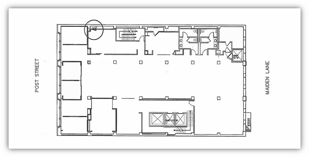
Full floors are available for lease in a prime Union Square location, offering easy access to public transportation and a variety of nearby amenities. The space features large operable windows that provide abundant natural light, along with high ceilings that enhance the open, airy atmosphere. On-site property management ensures seamless service, while direct access to Maiden Lane offers convenience. Strong ownership and convenient parking nearby further add to the appeal of these available floors on both the 3rd and 6th levels.
- Le taux comprend les services publics, les services de bâtiment et les dépenses immobilières.
- Disposition du plan d’étage ouverte
- 5 salles de conférence
- Plafonds finis: 11’
- Peut être associé à un ou plusieurs espaces supplémentaires pour obtenir jusqu’à 14 686 pi² d’espace adjacent.
- Cuisine
- Partiellement construit comme Bureau standard
- 10 bureaux privés
- 10 postes de travail
- Espace en excellent état
- Climatisation centrale
- Hauts plafonds
- Le taux comprend les services publics, les services de bâtiment et les dépenses immobilières.
- Peut être associé à un ou plusieurs espaces supplémentaires pour obtenir jusqu’à 14 686 pi² d’espace adjacent.
| Espace | Taille | Terme | Taux de location | Utilisation de l’espace | Aménagement | Disponible |
| 3e étage | 7 335 pi² | Négociable | 52,99 $ CAD/pi²/an 4,42 $ CAD/pi²/mois 388 697 $ CAD/an 32 391 $ CAD/mois | Bureau | construction partielle | Maintenant |
| 6e étage | 7 357 pi² | Négociable | 52,99 $ CAD/pi²/an 4,42 $ CAD/pi²/mois 389 862 $ CAD/an 32 489 $ CAD/mois | Bureau | construction partielle | Maintenant |
| 7e étage | 7 329 pi² | Négociable | 52,99 $ CAD/pi²/an 4,42 $ CAD/pi²/mois 388 379 $ CAD/an 32 365 $ CAD/mois | Bureau | - | Maintenant |
3e étage
| Taille |
| 7 335 pi² |
| Terme |
| Négociable |
| Taux de location |
| 52,99 $ CAD/pi²/an 4,42 $ CAD/pi²/mois 388 697 $ CAD/an 32 391 $ CAD/mois |
| Utilisation de l’espace |
| Bureau |
| Aménagement |
| construction partielle |
| Disponible |
| Maintenant |
6e étage
| Taille |
| 7 357 pi² |
| Terme |
| Négociable |
| Taux de location |
| 52,99 $ CAD/pi²/an 4,42 $ CAD/pi²/mois 389 862 $ CAD/an 32 489 $ CAD/mois |
| Utilisation de l’espace |
| Bureau |
| Aménagement |
| construction partielle |
| Disponible |
| Maintenant |
7e étage
| Taille |
| 7 329 pi² |
| Terme |
| Négociable |
| Taux de location |
| 52,99 $ CAD/pi²/an 4,42 $ CAD/pi²/mois 388 379 $ CAD/an 32 365 $ CAD/mois |
| Utilisation de l’espace |
| Bureau |
| Aménagement |
| - |
| Disponible |
| Maintenant |
3e étage
| Taille | 7 335 pi² |
| Terme | Négociable |
| Taux de location | 52,99 $ CAD/pi²/an |
| Utilisation de l’espace | Bureau |
| Aménagement | construction partielle |
| Disponible | Maintenant |
Full floors are available for lease in a prime Union Square location, offering easy access to public transportation and a variety of nearby amenities. The space features large operable windows that provide abundant natural light, along with high ceilings that enhance the open, airy atmosphere. On-site property management ensures seamless service, while direct access to Maiden Lane offers convenience. Strong ownership and convenient parking nearby further add to the appeal of these available floors on both the 3rd and 6th levels.
- Le taux comprend les services publics, les services de bâtiment et les dépenses immobilières.
- Partiellement construit comme Bureau standard
- Disposition du plan d’étage ouverte en général
- 2 bureaux privés
- 4 salles de conférence
- 2 postes de travail
- Plafonds finis: 11’
- Espace en excellent état
- Climatisation centrale
- prime Union Square location
6e étage
| Taille | 7 357 pi² |
| Terme | Négociable |
| Taux de location | 52,99 $ CAD/pi²/an |
| Utilisation de l’espace | Bureau |
| Aménagement | construction partielle |
| Disponible | Maintenant |
Full floors are available for lease in a prime Union Square location, offering easy access to public transportation and a variety of nearby amenities. The space features large operable windows that provide abundant natural light, along with high ceilings that enhance the open, airy atmosphere. On-site property management ensures seamless service, while direct access to Maiden Lane offers convenience. Strong ownership and convenient parking nearby further add to the appeal of these available floors on both the 3rd and 6th levels.
- Le taux comprend les services publics, les services de bâtiment et les dépenses immobilières.
- Partiellement construit comme Bureau standard
- Disposition du plan d’étage ouverte
- 10 bureaux privés
- 5 salles de conférence
- 10 postes de travail
- Plafonds finis: 11’
- Espace en excellent état
- Peut être associé à un ou plusieurs espaces supplémentaires pour obtenir jusqu’à 14 686 pi² d’espace adjacent.
- Climatisation centrale
- Cuisine
- Hauts plafonds
7e étage
| Taille | 7 329 pi² |
| Terme | Négociable |
| Taux de location | 52,99 $ CAD/pi²/an |
| Utilisation de l’espace | Bureau |
| Aménagement | - |
| Disponible | Maintenant |
- Le taux comprend les services publics, les services de bâtiment et les dépenses immobilières.
- Peut être associé à un ou plusieurs espaces supplémentaires pour obtenir jusqu’à 14 686 pi² d’espace adjacent.
Aperçu de la propriété
170 Maiden Lane offers full-floor office availabilities in the heart of San Francisco’s Union Square district. This premier location provides immediate access to world-class retail, dining, and cultural amenities, as well as excellent connectivity to public transportation, including a short walk to Montgomery BART and Muni stations. The building features large operable windows that flood the interiors with natural light, creating an inviting and productive work environment. High ceilings and open floor plans allow for flexible configurations, while select floors include multiple conference rooms, custom kitchenettes, and the potential for furnished workstations. On-site property management ensures responsive service, and nearby parking options add convenience for employees and visitors. With long-term stable ownership and a prestigious address on Maiden Lane, this property is an exceptional opportunity for businesses seeking a central, accessible, and well-managed office environment in San Francisco’s most vibrant commercial hub.
- Métro
Faits sur la propriété
Présenté par
170 Maiden Ln
Hmm, il semble y avoir eu une erreur lors de l’envoi de votre message. Veuillez réessayer.
Merci! Votre message a été envoyé.









