Votre courriel a été envoyé.
170 S Lincoln St - Freeman Center Condos Unités de condo • Bureau • 4 200 pi² • À vendre 724 185 $ CAD par unité • Spokane, WA 99201



Certaines informations ont été traduites automatiquement.
FAITS SAILLANTS DE L'INVESTISSEMENT
- Briques et poutres exposées
RÉSUMÉ DE L'ANNONCE
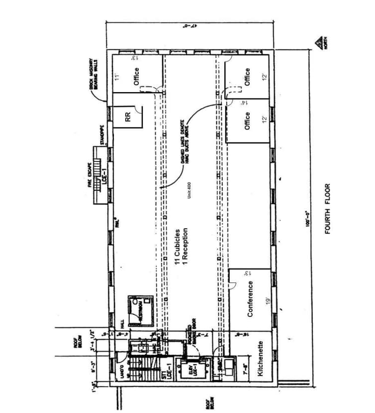
À vendre : Individuel ou combiné de deux étages au Freeman Center. Découvrez une occasion de choix au Freeman Center, situé au 170 S Lincoln Street, bureau 300 et 400, Spokane, Washington. Ce condo à bureaux est vraiment un joyau, offrant une taille combinée de 8 400 ± SF aux 3e et 4e étages. Le 3e étage est spacieux et comprend une salle de conférence, des suites pour bureaux exécutifs et une salle de vente ouverte avec des postes de travail. Au 4e étage, profitez d'une autre salle de conférence, de suites de bureaux pour cadres supérieurs et d'espaces de travail supplémentaires. Les équipements de l'immeuble comprennent une entrée sécurisée, un accès par ascenseur, un parking sur place dans un garage sécurisé, et plus encore. Cette propriété est idéale pour diverses utilisations commerciales et présente une excellente occasion d'investissement. Agissez dès maintenant pour sécuriser cet espace incroyable à un prix réduit. Ne manquez pas de faire de **Freeman Center** votre nouveau domicile d'affaires à Spokane.
FAITS SUR LA PROPRIÉTÉ
COMMODITÉS
- Accès 24 heures
- Ligne d'autobus
- Accès contrôlé
- Affichage
- Cuisine
- Chauffage central
- Hauts plafonds
- Exposition directe à l'ascenseur
- Lumière naturelle
- Clef en main
- Planchers de bois franc
- Climatisation
2 UNITÉS DISPONIBLES
Unité 300
| Taille de l’unité | 4 200 pi² | Utilisation du condo | Bureau |
| Prix | 724 185 $ CAD | Type de vente | Propriétaire utilisateur |
| Prix par pi² | 172,43 $ CAD |
| Taille de l’unité | 4 200 pi² |
| Prix | 724 185 $ CAD |
| Prix par pi² | 172,43 $ CAD |
| Utilisation du condo | Bureau |
| Type de vente | Propriétaire utilisateur |
Floor Plan
Unité 400
| Taille de l’unité | 4 200 pi² | Utilisation du condo | Bureau |
| Prix | 724 185 $ CAD | Type de vente | Propriétaire utilisateur |
| Prix par pi² | 172,43 $ CAD |
| Taille de l’unité | 4 200 pi² |
| Prix | 724 185 $ CAD |
| Prix par pi² | 172,43 $ CAD |
| Utilisation du condo | Bureau |
| Type de vente | Propriétaire utilisateur |
Floor Plan
Présenté par
Mark Wilkerson
170 S Lincoln St - Freeman Center Condos
Hmm, il semble y avoir eu une erreur lors de l’envoi de votre message. Veuillez réessayer.
Merci! Votre message a été envoyé.


