Votre courriel a été envoyé.
Certaines informations ont été traduites automatiquement.
Tous les espaces disponibles(4)
Afficher les taux de location en
- Espace
- Taille
- Terme
- Taux de location
- Utilisation de l’espace
- Aménagement
- Disponible
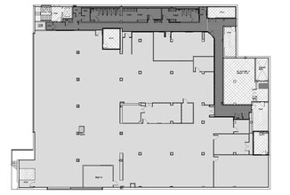
5000 to 14,484 s/f of space available. Space can be broken down into smaller units.
- Le taux inscrit peut ne pas comprendre certains services publics, les services de bâtiment et les dépenses immobilières.
- Disposition du plan d’étage ouverte
- Lumière naturelle
- Partiellement construit comme Bureau standard
- Peut être associé à un ou plusieurs espaces supplémentaires pour obtenir jusqu’à 33 860 pi² d’espace adjacent.
19,376 total s/f on 2nd floor. Space can be subdivided into two units.
- Le taux inscrit peut ne pas comprendre certains services publics, les services de bâtiment et les dépenses immobilières.
- Disposition du plan d’étage ouverte en général
- Lumière naturelle
- Partiellement construit comme Bureau standard
- Peut être associé à un ou plusieurs espaces supplémentaires pour obtenir jusqu’à 33 860 pi² d’espace adjacent.
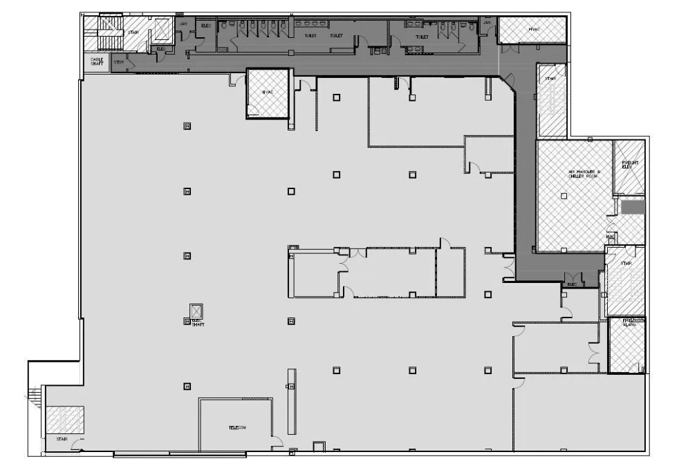
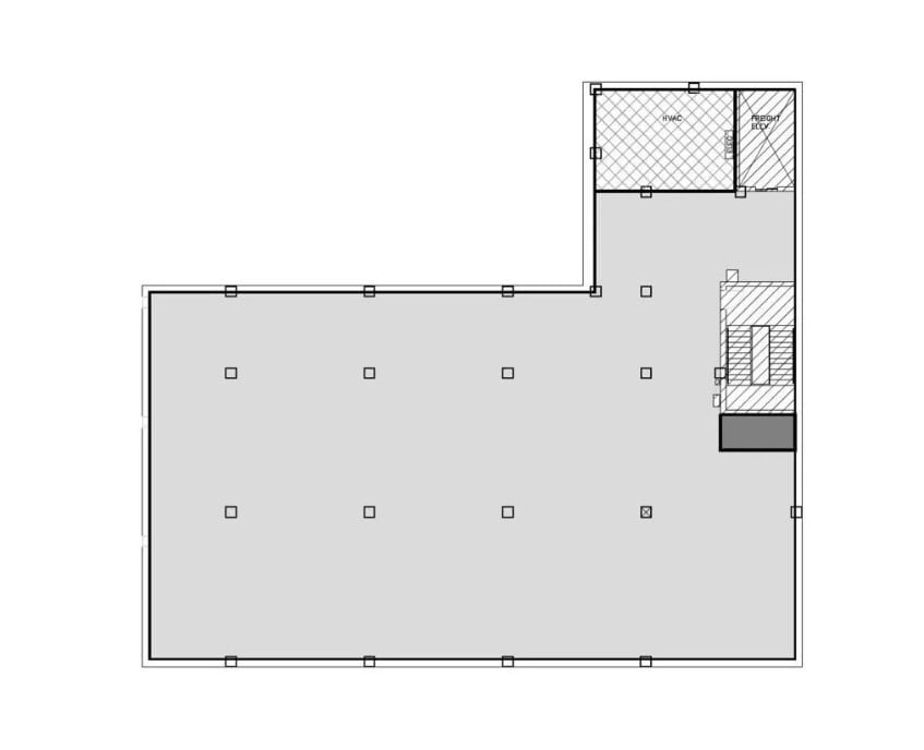
6,856 s/f of office space.
- Le taux inscrit peut ne pas comprendre certains services publics, les services de bâtiment et les dépenses immobilières.
- Disposition du plan d’étage ouverte en général
- Partiellement construit comme Bureau standard
- Lumière naturelle
6,856 s/f of office space.
- Le taux inscrit peut ne pas comprendre certains services publics, les services de bâtiment et les dépenses immobilières.
- Disposition du plan d’étage ouverte en général
- Partiellement construit comme Bureau standard
- Lumière naturelle
| Espace | Taille | Terme | Taux de location | Utilisation de l’espace | Aménagement | Disponible |
| 1er étage, ste 1 | 5 000 à 14 484 pi² | Négociable | 32,74 $ CAD/pi²/an 2,73 $ CAD/pi²/mois 474 232 $ CAD/an 39 519 $ CAD/mois | Bureau | construction partielle | Maintenant |
| 2e étage, ste 2 | 8 000 à 19 376 pi² | Négociable | 24,56 $ CAD/pi²/an 2,05 $ CAD/pi²/mois 475 803 $ CAD/an 39 650 $ CAD/mois | Bureau | construction partielle | Maintenant |
| 5e étage, ste 5 | 6 856 pi² | Négociable | 35,47 $ CAD/pi²/an 2,96 $ CAD/pi²/mois 243 184 $ CAD/an 20 265 $ CAD/mois | Bureau | construction partielle | Maintenant |
| 6e étage, ste 6 | 6 856 pi² | Négociable | 38,20 $ CAD/pi²/an 3,18 $ CAD/pi²/mois 261 890 $ CAD/an 21 824 $ CAD/mois | Bureau | construction partielle | Maintenant |
1er étage, ste 1
| Taille |
| 5 000 à 14 484 pi² |
| Terme |
| Négociable |
| Taux de location |
| 32,74 $ CAD/pi²/an 2,73 $ CAD/pi²/mois 474 232 $ CAD/an 39 519 $ CAD/mois |
| Utilisation de l’espace |
| Bureau |
| Aménagement |
| construction partielle |
| Disponible |
| Maintenant |
2e étage, ste 2
| Taille |
| 8 000 à 19 376 pi² |
| Terme |
| Négociable |
| Taux de location |
| 24,56 $ CAD/pi²/an 2,05 $ CAD/pi²/mois 475 803 $ CAD/an 39 650 $ CAD/mois |
| Utilisation de l’espace |
| Bureau |
| Aménagement |
| construction partielle |
| Disponible |
| Maintenant |
5e étage, ste 5
| Taille |
| 6 856 pi² |
| Terme |
| Négociable |
| Taux de location |
| 35,47 $ CAD/pi²/an 2,96 $ CAD/pi²/mois 243 184 $ CAD/an 20 265 $ CAD/mois |
| Utilisation de l’espace |
| Bureau |
| Aménagement |
| construction partielle |
| Disponible |
| Maintenant |
6e étage, ste 6
| Taille |
| 6 856 pi² |
| Terme |
| Négociable |
| Taux de location |
| 38,20 $ CAD/pi²/an 3,18 $ CAD/pi²/mois 261 890 $ CAD/an 21 824 $ CAD/mois |
| Utilisation de l’espace |
| Bureau |
| Aménagement |
| construction partielle |
| Disponible |
| Maintenant |
1er étage, ste 1
| Taille | 5 000 à 14 484 pi² |
| Terme | Négociable |
| Taux de location | 32,74 $ CAD/pi²/an |
| Utilisation de l’espace | Bureau |
| Aménagement | construction partielle |
| Disponible | Maintenant |
5000 to 14,484 s/f of space available. Space can be broken down into smaller units.
- Le taux inscrit peut ne pas comprendre certains services publics, les services de bâtiment et les dépenses immobilières.
- Partiellement construit comme Bureau standard
- Disposition du plan d’étage ouverte
- Peut être associé à un ou plusieurs espaces supplémentaires pour obtenir jusqu’à 33 860 pi² d’espace adjacent.
- Lumière naturelle
2e étage, ste 2
| Taille | 8 000 à 19 376 pi² |
| Terme | Négociable |
| Taux de location | 24,56 $ CAD/pi²/an |
| Utilisation de l’espace | Bureau |
| Aménagement | construction partielle |
| Disponible | Maintenant |
19,376 total s/f on 2nd floor. Space can be subdivided into two units.
- Le taux inscrit peut ne pas comprendre certains services publics, les services de bâtiment et les dépenses immobilières.
- Partiellement construit comme Bureau standard
- Disposition du plan d’étage ouverte en général
- Peut être associé à un ou plusieurs espaces supplémentaires pour obtenir jusqu’à 33 860 pi² d’espace adjacent.
- Lumière naturelle
5e étage, ste 5
| Taille | 6 856 pi² |
| Terme | Négociable |
| Taux de location | 35,47 $ CAD/pi²/an |
| Utilisation de l’espace | Bureau |
| Aménagement | construction partielle |
| Disponible | Maintenant |
6,856 s/f of office space.
- Le taux inscrit peut ne pas comprendre certains services publics, les services de bâtiment et les dépenses immobilières.
- Partiellement construit comme Bureau standard
- Disposition du plan d’étage ouverte en général
- Lumière naturelle
6e étage, ste 6
| Taille | 6 856 pi² |
| Terme | Négociable |
| Taux de location | 38,20 $ CAD/pi²/an |
| Utilisation de l’espace | Bureau |
| Aménagement | construction partielle |
| Disponible | Maintenant |
6,856 s/f of office space.
- Le taux inscrit peut ne pas comprendre certains services publics, les services de bâtiment et les dépenses immobilières.
- Partiellement construit comme Bureau standard
- Disposition du plan d’étage ouverte en général
- Lumière naturelle
Caractéristiques et commodités
- Ligne d'autobus
- Affichage
Faits sur la propriété
Présenté par
Frontier | 1701-1709 Ringling Blvd
Hmm, il semble y avoir eu une erreur lors de l’envoi de votre message. Veuillez réessayer.
Merci! Votre message a été envoyé.











