Se Connecter/S’inscrire
Votre courriel a été envoyé.
1702 S Alameda St
Corpus Christi, TX 78404
Six Points Shopping Center · Commerce de détail Propriété À louer
·
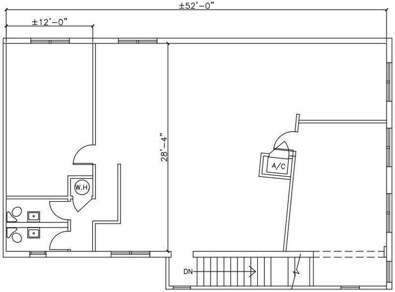
1 520 pi²


Certaines informations ont été traduites automatiquement.
Faits saillants
- Stationnement arrière disponible.
Faits sur la propriété
| Superficie totale disponible | 1 520 pi² | Superficie commerciale brute | 17 890 pi² |
| Type de centre | Centre commercial à ciel ouvert | Superficie totale du terrain | 0,44 AC |
| Stationnement | 20 places | Année de construction | 1937 |
| Propriétés du centre | 1 | Rues transversales | Ayers and Staples |
| Superficie totale disponible | 1 520 pi² |
| Type de centre | Centre commercial à ciel ouvert |
| Stationnement | 20 places |
| Propriétés du centre | 1 |
| Superficie commerciale brute | 17 890 pi² |
| Superficie totale du terrain | 0,44 AC |
| Année de construction | 1937 |
| Rues transversales | Ayers and Staples |
À propos de la propriété
Situé à Six Points, à côté de Hester's et Blue Frog Mercantile. Marchands de la région comprennent Lucianos, chef Price, Institut Aveda, Nuevo Cafe. Près du centre-ville et du district médical de Corpus Christi.
1 de 3
Vidéos
Visite extérieure 3D Matterport
Visite 3D Matterport
Photos
Vue depuis la rue
Rue
Carte
