Se Connecter/S’inscrire
Votre courriel a été envoyé.
1709 Spielbusch Ave
Toledo, OH 43604
Bureau Propriété À louer
·
3 890 pi²


Certaines informations ont été traduites automatiquement.
Faits saillants
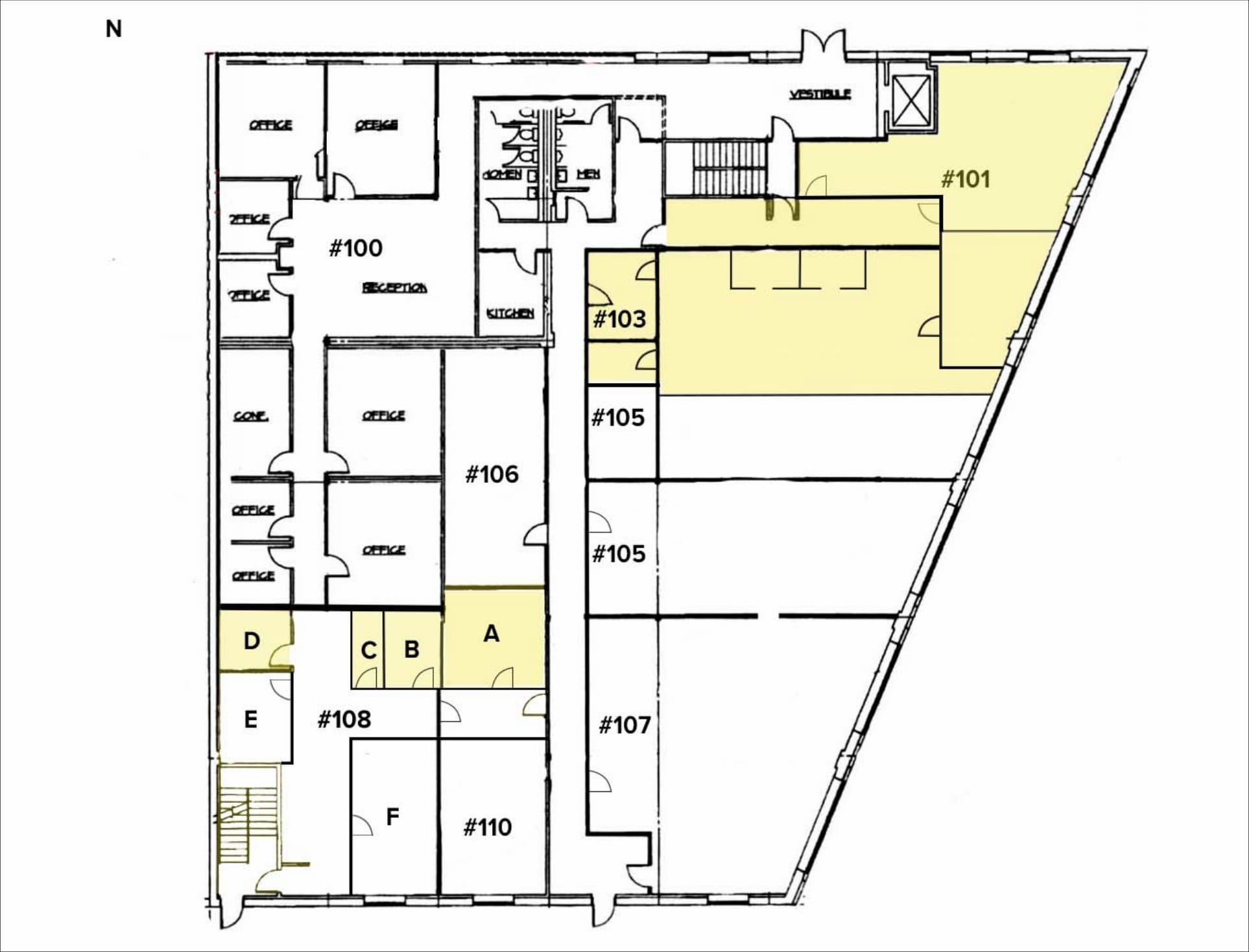
- 4,390 SF of available office space with flexible suite configurations.
- Secure entry system and common restrooms with security codes.
- Adjacent surface and street parking with additional secured basement storage available.
- Recently remodeled executive offices with kitchenette in Suite 101.
- Prime downtown location near courts, government offices, and legal services.
Aperçu de la propriété
Located in the heart of downtown Toledo, the building is directly across from key government and legal institutions, providing a convenient location for law firms, professional services, and businesses seeking proximity to the courthouse district. The property includes secure entry, common restrooms, and adjacent parking options.
- Banque
- Ligne d'autobus
- Affichage
Faits sur la propriété
Type de bâtiment
Bureau
Année de construction/rénovation
1907/1994
Hauteur du bâtiment
2 étages
Taille du bâtiment
25 016 pi²
Classe d’immeuble
B
Superficie de plancher typique
11 971 pi²
Hauteur du plafond non finie
11’
Stationnement
Stationnement Surface
1 de 9
Vidéos
Visite extérieure 3D Matterport
Visite 3D Matterport
Photos
Vue depuis la rue
Rue
Carte
