Se Connecter/S’inscrire
Votre courriel a été envoyé.
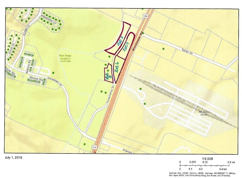
171 Hospitality Dr Lot • Terrain commercial • 10,36 Acres • 811 878 $ CAD • Front Royal, VA 22630



Certaines informations ont été traduites automatiquement.
Faits saillants de l'investissement
- 10.36 Acres Zoned Agricultural
- Minutes from I-66
- Prime for Commercial Development. Excellent Access and Road Visibility
Résumé de l'annonce
10.36 Acres Zoned Agricultural. 4 lots total. Hotel & Restaurant next door to property located in front of Blue Ridge Shadows Development and Golf Course. Prime for commercial development with excellent access & road visibility. Minutes from I-66
Faits sur la propriété
| Prix | 811 878 $ CAD | Sous-type de propriété | Terrain commercial |
| Type de vente | Investissement ou propriétaire utilisateur | Utilisation proposée | Commercial |
| Nombre de lots | 1 | Taille totale du lot | 10,36 AC |
| Type de propriété | Terrain | Nombre d’étages | 1 |
| Zonage | Agricultural | ||
| Prix | 811 878 $ CAD |
| Type de vente | Investissement ou propriétaire utilisateur |
| Nombre de lots | 1 |
| Type de propriété | Terrain |
| Sous-type de propriété | Terrain commercial |
| Utilisation proposée | Commercial |
| Taille totale du lot | 10,36 AC |
| Nombre d’étages | 1 |
| Zonage | Agricultural |
1 Lot disponible
Lot 5, 6, 8, 9
| Prix | 811 878 $ CAD | Taille du lot | 10,36 AC |
| Prix par AC | 78 366,56 $ CAD |
| Prix | 811 878 $ CAD |
| Prix par AC | 78 366,56 $ CAD |
| Taille du lot | 10,36 AC |
10.36 Acres Zoned Agricultural. 4 lots total. Hotel & Restaurant next door to property located in front of Blue Ridge Shadows Development and Golf Course. Prime for commercial development with excellent access & road visibility. Minutes from I-66
Impôts fonciers
| Numéros de lot | Évaluation des bâtiments | 13 676 $ CAD | |
| Évaluation du terrain | 1 672 064 $ CAD | Évaluation totale | 1 685 741 $ CAD |
Impôts fonciers
Numéros de lot
Évaluation du terrain
1 672 064 $ CAD
Évaluation des bâtiments
13 676 $ CAD
Évaluation totale
1 685 741 $ CAD
1 de 6
Vidéos
Visite extérieure 3D Matterport
Visite 3D Matterport
Photos
Vue depuis la rue
Rue
Carte
Présenté par
171 Hospitality Dr
Vous êtes déjà membre? Connectez-vous
Hmm, il semble y avoir eu une erreur lors de l’envoi de votre message. Veuillez réessayer.
Merci! Votre message a été envoyé.
Votre message a été envoyé !
Activez votre compte LoopNet dès maintenant pour suivre les propriétés, recevoir des alertes en temps réel, gagner du temps sur vos demandes futures et bien plus encore.

