Votre courriel a été envoyé.
Certaines informations ont été traduites automatiquement.
Faits saillants
- Peut être loué séparément, compteurs séparés
- Entièrement clôturé et clôturé
- HVAC À 100 %
- Jamais inondé
Caractéristiques
Tous les espaces disponibles(2)
Afficher les taux de location en
- Espace
- Taille
- Terme
- Taux de location
- Utilisation de l’espace
- Aménagement
- Disponible
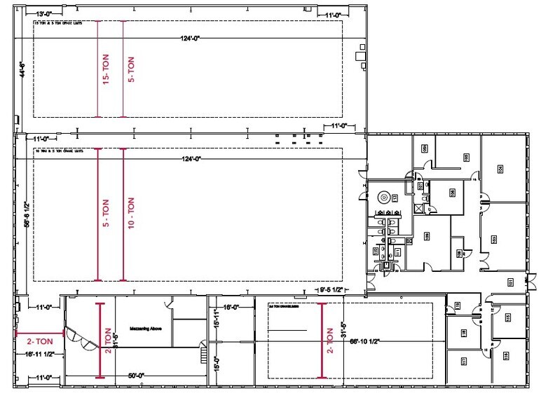
• ±25,143 SF total • ±17,205 SF climate controlled, crane served warehouse • ±7,938 SF office (1st floor | 3,969 SF and 2nd floor | 3,969 SF) • 3-phase heavy power • (3) 2-ton, (2) 5-ton, (1) 10-ton and (1) 15-ton cranes • Geothermal HVAC • Covered parking • Compressed airlines throughout • Mezzanine storage • Louvered overhead ventilation system for temperate weather • 3 Phase, 480V, 2,400 Amp (Needs to be confirmed by an electrician)
- Climatisation centrale
• ±20,538 SF total • ±19, 131 SF climate controlled crane served warehouse • ±1,407 SF office • 3-phase heavy power • (3) 5-ton, (1) 10-ton cranes, (1) 10-ton exterior crane • LED lighting • 8" slab • Compressed airlines throughout • Louvered cross ventilation system for temperate weather • 3 Phase, 480V, 1,600 Amp (Needs to be confirmed by an electrician)
- Comprend 1 407 pi² d’espace de bureau dédié
| Espace | Taille | Terme | Taux de location | Utilisation de l’espace | Aménagement | Disponible |
| 1er étage - Bldg A | 25 143 pi² | Négociable | Sur demande Sur demande Sur demande Sur demande | Industriel | - | Maintenant |
| 1er étage - Bldg B | 20 538 pi² | Négociable | Sur demande Sur demande Sur demande Sur demande | Industriel | - | Maintenant |
1er étage - Bldg A
| Taille |
| 25 143 pi² |
| Terme |
| Négociable |
| Taux de location |
| Sur demande Sur demande Sur demande Sur demande |
| Utilisation de l’espace |
| Industriel |
| Aménagement |
| - |
| Disponible |
| Maintenant |
1er étage - Bldg B
| Taille |
| 20 538 pi² |
| Terme |
| Négociable |
| Taux de location |
| Sur demande Sur demande Sur demande Sur demande |
| Utilisation de l’espace |
| Industriel |
| Aménagement |
| - |
| Disponible |
| Maintenant |
1er étage - Bldg A
| Taille | 25 143 pi² |
| Terme | Négociable |
| Taux de location | Sur demande |
| Utilisation de l’espace | Industriel |
| Aménagement | - |
| Disponible | Maintenant |
• ±25,143 SF total • ±17,205 SF climate controlled, crane served warehouse • ±7,938 SF office (1st floor | 3,969 SF and 2nd floor | 3,969 SF) • 3-phase heavy power • (3) 2-ton, (2) 5-ton, (1) 10-ton and (1) 15-ton cranes • Geothermal HVAC • Covered parking • Compressed airlines throughout • Mezzanine storage • Louvered overhead ventilation system for temperate weather • 3 Phase, 480V, 2,400 Amp (Needs to be confirmed by an electrician)
- Climatisation centrale
1er étage - Bldg B
| Taille | 20 538 pi² |
| Terme | Négociable |
| Taux de location | Sur demande |
| Utilisation de l’espace | Industriel |
| Aménagement | - |
| Disponible | Maintenant |
• ±20,538 SF total • ±19, 131 SF climate controlled crane served warehouse • ±1,407 SF office • 3-phase heavy power • (3) 5-ton, (1) 10-ton cranes, (1) 10-ton exterior crane • LED lighting • 8" slab • Compressed airlines throughout • Louvered cross ventilation system for temperate weather • 3 Phase, 480V, 1,600 Amp (Needs to be confirmed by an electrician)
- Comprend 1 407 pi² d’espace de bureau dédié
Aperçu de la propriété
APERÇU DE LA PROPRIÉTÉ • ±45 681 pieds carrés au total dans deux bâtiments • ± 36 336 336 SF à température contrôlée, grue desservie, entrepôt • bureaux de ±9 345 pieds 2 • ±9,83 AC • Peut être loué séparément, compteurs séparés • Paroi inclinable • Hauteur de l'aube : ±24' - ±30' • 12 grues : • (3) 2 tonnes, (5) 5 tonnes, (3) 10 tonnes et (1) 15 tonnes • Puissance lourde triphasée • Gaz naturel • 100 % CVC • Capacités de conduite • Compagnies aériennes comprimées partout • Entièrement clôturé et clôturé • Jamais inondé • Chargement de camion couvert accessible par grue extérieure DONNÉES ÉCONOMIQUES Tarif de location : Appelez pour plus d'informations
Faits sur l’installation fabrication
Présenté par
1717 Brittmoore Rd
Hmm, il semble y avoir eu une erreur lors de l’envoi de votre message. Veuillez réessayer.
Merci! Votre message a été envoyé.










