Votre courriel a été envoyé.
Certaines informations ont été traduites automatiquement.
Faits saillants de l'investissement
- ±3,758 SF office building on ±0.52-acre site in Columbia, SC.
- 27 onsite parking spaces provide excellent accessibility.
- Available for sale at $896,000 or for lease at $23.00 per SF, Net of E.
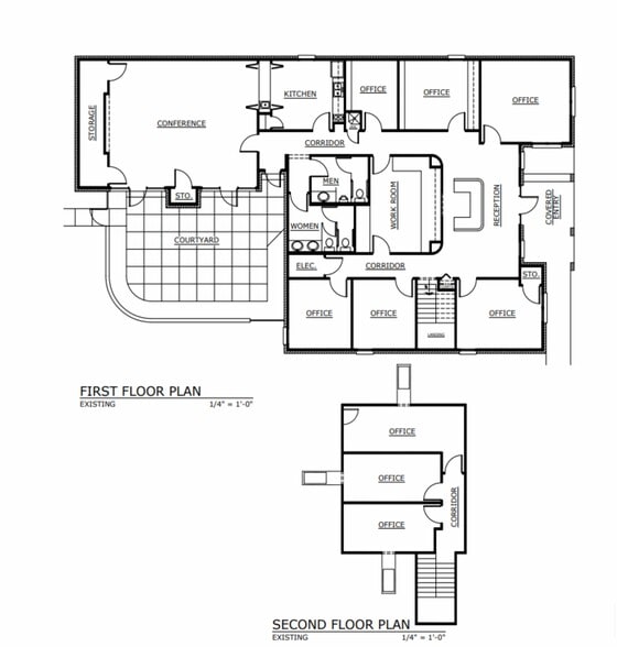
- Includes conference room, kitchen/breakroom, and landscaped courtyard.
- Convenient location near Forest Acres with access to retail and services.
Résumé de l'annonce
The site features 27 onsite parking spaces, ensuring convenient access for staff and visitors. Located in a well-established area near Forest Acres, the property benefits from proximity to major roadways, retail centers, and business services. This asset presents an opportunity for an owner-occupant or investor seeking a stable office property in a strong Columbia submarket.
Faits sur la propriété
Commodités
- Affichage
Disponibilité des espaces
- Espace
- Taille
- Utilisation de l’espace
- Aménagement
- Disponible
This ±3,758 SF office building at 1717 St. Julian Place is available for lease at $23.00 per SF, Net of E. The property offers a flexible floor plan with multiple offices, a large conference room, and a reception area, ideal for professional service firms or corporate users. Additional features include a kitchen/breakroom, landscaped courtyard, and ample natural light throughout the space. With 27 onsite parking spaces and easy access to major thoroughfares, the location provides convenience for employees and clients. The property is positioned near Forest Acres, offering close proximity to retail, dining, and essential services.
| Espace | Taille | Utilisation de l’espace | Aménagement | Disponible |
| 1er étage | 3 758 pi² | Bureau | construction complète | 30 jours |
1er étage
| Taille |
| 3 758 pi² |
| Utilisation de l’espace |
| Bureau |
| Aménagement |
| construction complète |
| Disponible |
| 30 jours |
1er étage
| Taille | 3 758 pi² |
| Utilisation de l’espace | Bureau |
| Aménagement | construction complète |
| Disponible | 30 jours |
This ±3,758 SF office building at 1717 St. Julian Place is available for lease at $23.00 per SF, Net of E. The property offers a flexible floor plan with multiple offices, a large conference room, and a reception area, ideal for professional service firms or corporate users. Additional features include a kitchen/breakroom, landscaped courtyard, and ample natural light throughout the space. With 27 onsite parking spaces and easy access to major thoroughfares, the location provides convenience for employees and clients. The property is positioned near Forest Acres, offering close proximity to retail, dining, and essential services.
Impôts fonciers
| Numéro de lot | 11513-07-43 | Évaluation des bâtiments | 0 $ CAD |
| Évaluation du terrain | 0 $ CAD | Évaluation totale | 591 385 $ CAD |
Impôts fonciers
Présenté par
1717 St Julian Pl
Hmm, il semble y avoir eu une erreur lors de l’envoi de votre message. Veuillez réessayer.
Merci! Votre message a été envoyé.



