Se Connecter/S’inscrire
Votre courriel a été envoyé.
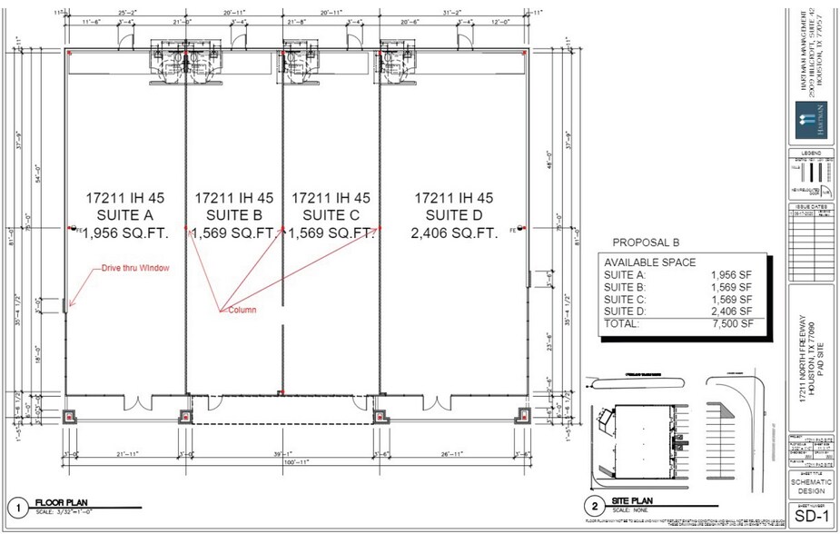
17211 North Fwy
Houston, TX 77090
Pad Site · Commerce de détail Propriété À vendre


Certaines informations ont été traduites automatiquement.
FAITS SUR LA PROPRIÉTÉ Sous contrat
Type de vente
Investissement ou propriétaire utilisateur
Type de propriété
Commerce de détail
Sous-type de propriété
Boutique
Taille du bâtiment
7 500 pi²
Classe d’immeuble
B
Année de construction
2020
Prix
2 063 430 $ CAD
Prix par pi²
275,12 $ CAD
Pourcentage loué
100%
Location
Multiples
Hauteur du bâtiment
1 étage
Coefficient d’occupation des sols de l’immeuble
0,24
Taille du lot
0,71 AC
Impôts fonciers
| Numéro de lot | 1258790010001 | Évaluation des bâtiments | 779 283 $ CAD |
| Évaluation du terrain | 435 495 $ CAD | Évaluation totale | 1 214 779 $ CAD |
Impôts fonciers
Numéro de lot
1258790010001
Évaluation du terrain
435 495 $ CAD
Évaluation des bâtiments
779 283 $ CAD
Évaluation totale
1 214 779 $ CAD
1 de 3
VIDÉOS
VISITE EXTÉRIEURE 3D MATTERPORT
VISITE 3D MATTERPORT
PHOTOS
VUE DEPUIS LA RUE
RUE
CARTE
